← Trafford Council

Status

Awaiting decision House extension
Received
22 Dec 2025
New homes
0

Full proposal

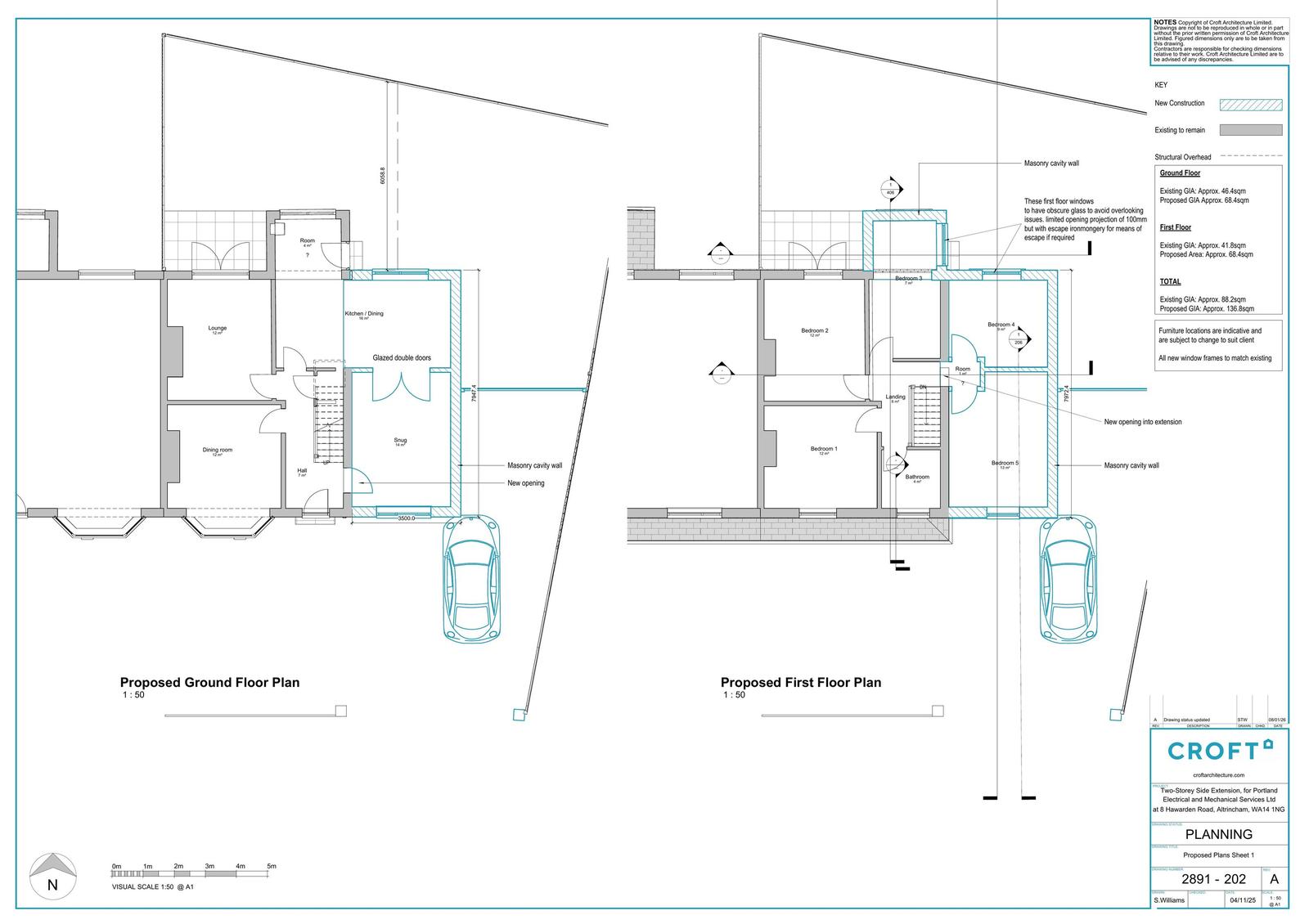
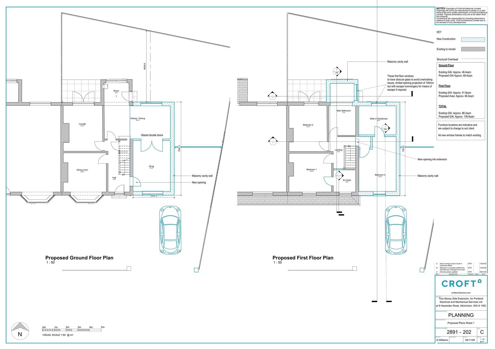
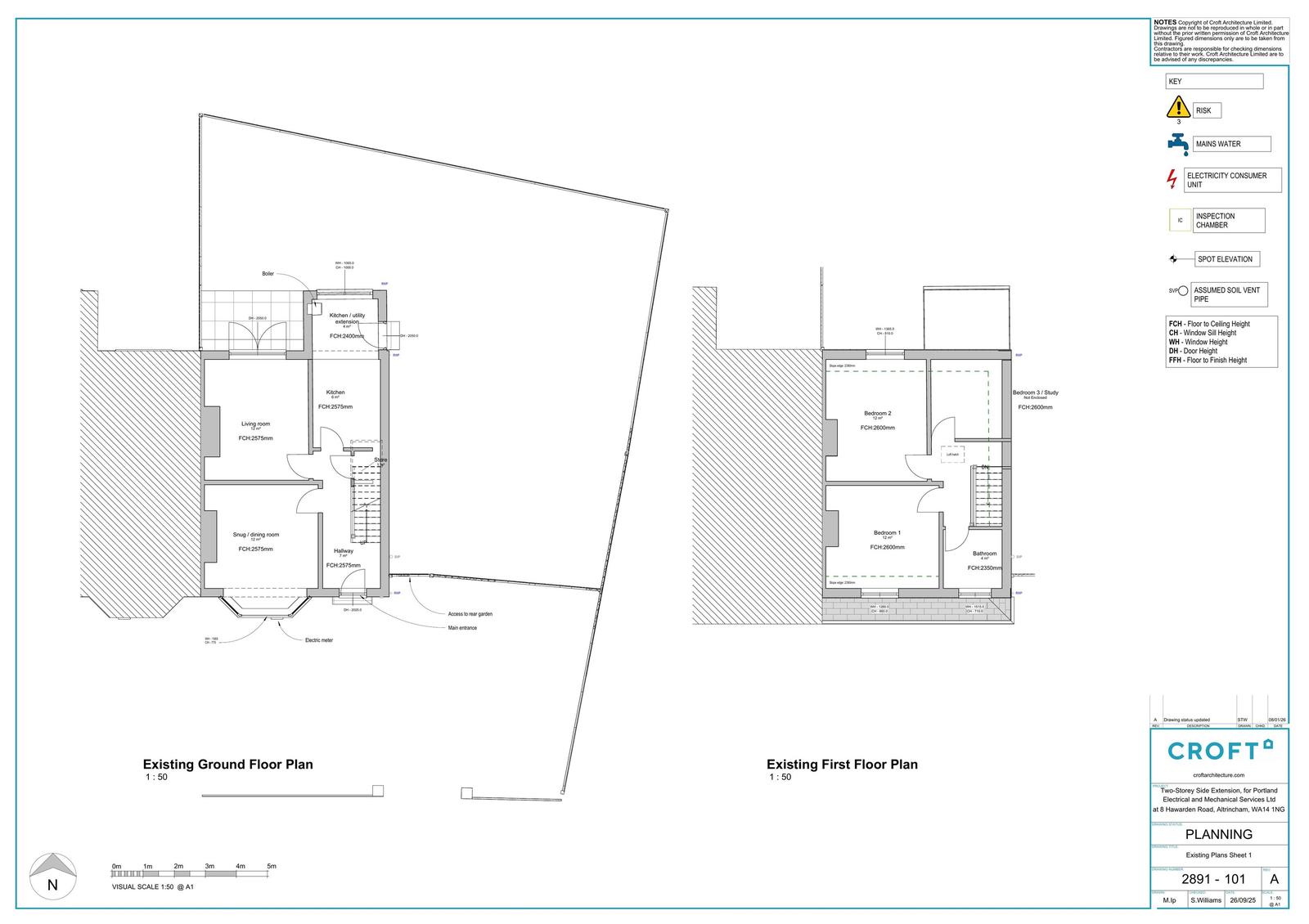
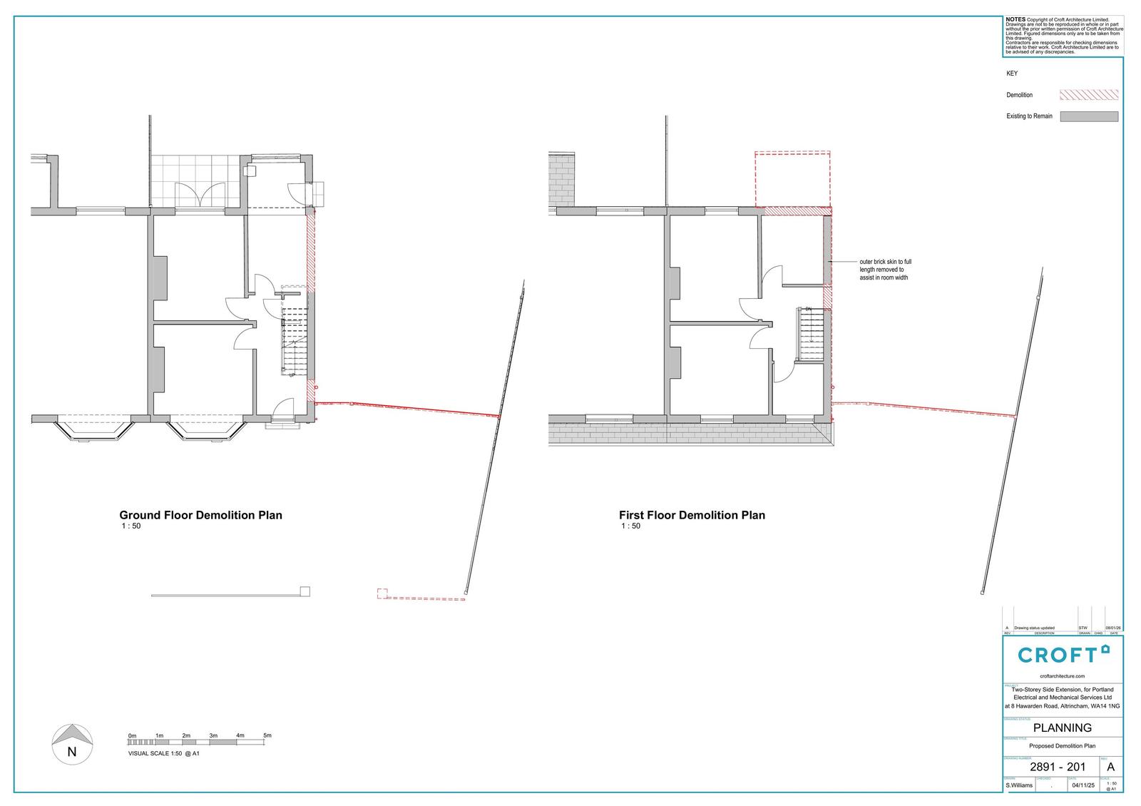
Erection of two storey side and first floor rear extension and associated external alterations including widening of driveway

Have your say

Your comment matters. Councils must consider every representation that raises material planning considerations.

Write a comment