← Trafford Council

Status

Awaiting decision New housing
Received
24 Dec 2025
New homes
1

Full proposal

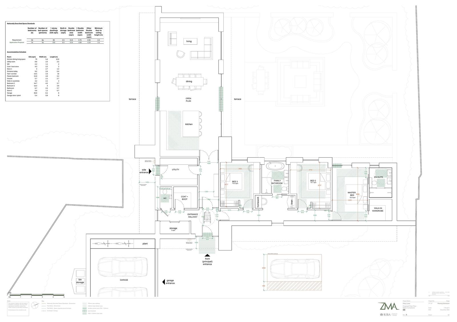
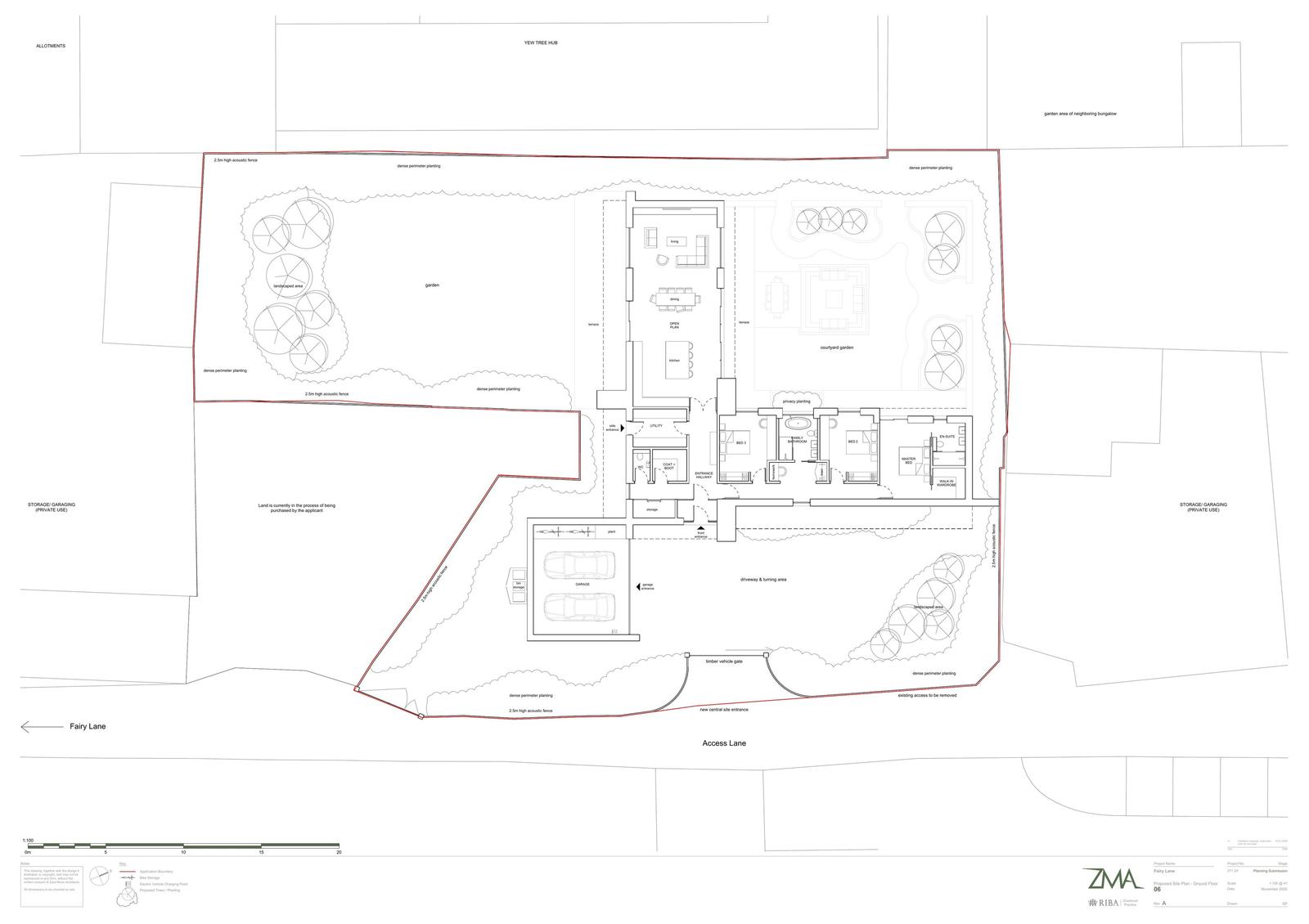
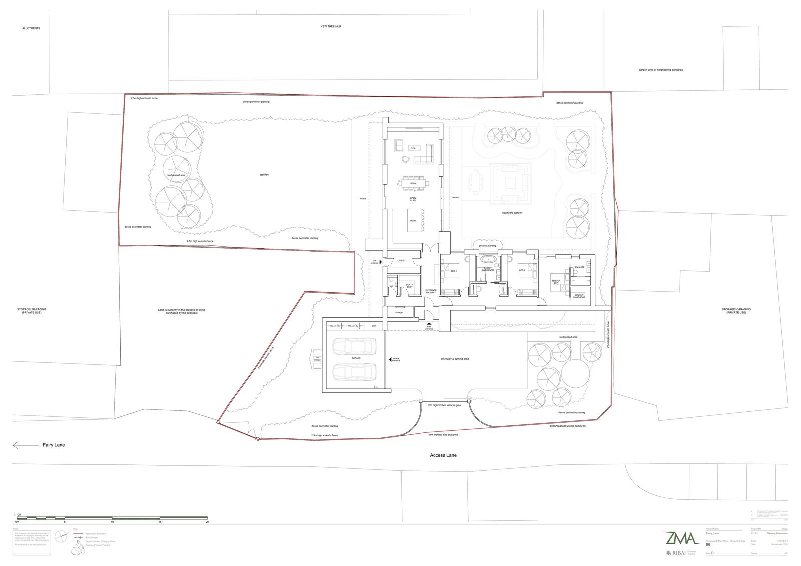
Demolition of stable block and storage building, removal of static caravan and other temporary structures and erection of 1no. self-build eco-home together with new access, landscaping and 2.5m boundary fence and gates

Documents

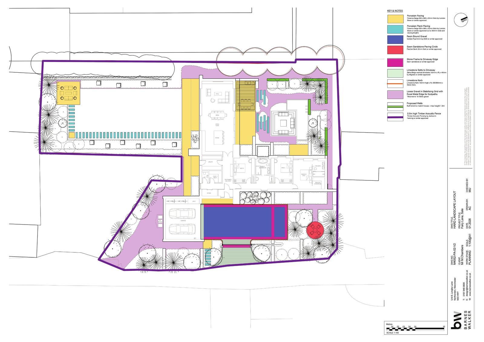
Landscaping Details
Archived · Original link
Design and Access Statement
Archived · Original link
Plans
Archived · Original link
Landscaping Details
Archived · Original link
Landscaping Details
Archived · Original link
Site Location
Archived · Original link
Planning Statement
Archived · Original link
Amended Plans
Archived · Original link
Superseded Plans
Archived · Original link
Amended Plans
Archived · Original link
Superseded Plans
Archived · Original link
Superseded Plans
Archived · Original link
Superseded Plans
Archived · Original link
Amended Plans
Archived · Original link
Superseded Plans
Archived · Original link

Have your say

Your comment matters. Councils must consider every representation that raises material planning considerations.

Write a comment