← Trafford Council

Status

Awaiting decision House extension
Received
07 Jan 2026
New homes
0

Full proposal

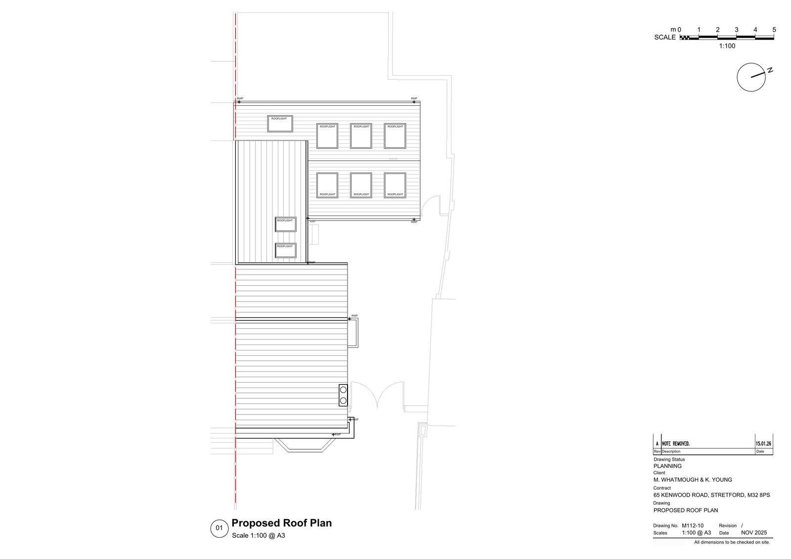
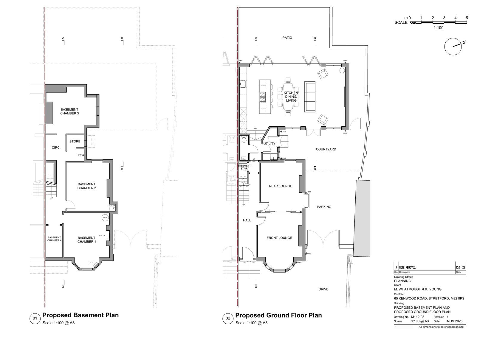
Demolition of existing single storey garage and erection of single storey side/rear extension.

Have your say

Your comment matters. Councils must consider every representation that raises material planning considerations.

Write a comment