← Trafford Council

Status

Awaiting decision Change of use
Received
Last month
New homes
0

Full proposal

Change of Use from a Class C3(a) dwellinghouse to a Class C2 residential childrens home for up to 3 children with a day manager and up to 2 care staff whom will stay overnight on a rota basis.

Documents

ACCOMMODATION SCHEDULE
Accommodation Schedule
Not yet archived · Original link
APPLICATIONFORMREDACTED
Application Form
Not yet archived · Original link
DESIGN AND ACCESS/PLANNING STATEMENT
Design and Access Statement
Not yet archived · Original link
DIGITAL CONNECTIVITY STATEMENT
Digital Connectivity Statement
Not yet archived · Original link
EQUALITIES STATEMENT
Equalities Statement
Not yet archived · Original link
EXISTING CROSS SECTION 1
Plans
Not yet archived · Original link
EXISTING CROSS SECTION 2
Plans
Not yet archived · Original link
EXISTING ELEVATIONS 1
Plans
Not yet archived · Original link
EXISTING ELEVATIONS 2
Plans
Not yet archived · Original link
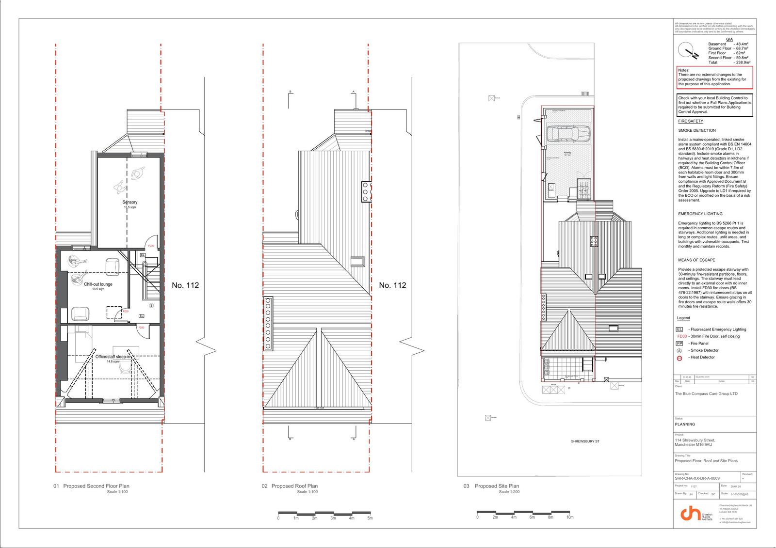
EXISTING FLOOR PLANS
Plans
Not yet archived · Original link
LOCATION AND BLOCK PLAN
Site Location
Not yet archived · Original link
LOCATIONPLAN
Site Location
Not yet archived · Original link
PROPOSED CROSS SECTION 1
Plans
Not yet archived · Original link
PROPOSED CROSS SECTION 2
Plans
Not yet archived · Original link
PROPOSED ELEVATIONS 1
Plans
Not yet archived · Original link
PROPOSED ELEVATIONS 2
Plans
Not yet archived · Original link
WEEKLY LIST
Weekly List
Not yet archived · Original link

Have your say

Your comment matters. Councils must consider every representation that raises material planning considerations.

Write a comment