← Uttlesford District Council

Status

Approved New housing
Received
12 Nov 2024
New homes
2

Full proposal

Erection of 2 no. detached dwellings

Documents

Decision Notice
Archived · Original link
Correspondence
Archived · Original link
B610-Supporting information
Archived · Original link
B610-Supporting information
Archived · Original link
B610-Supporting information
Archived · Original link
B610-Supporting information
Archived · Original link
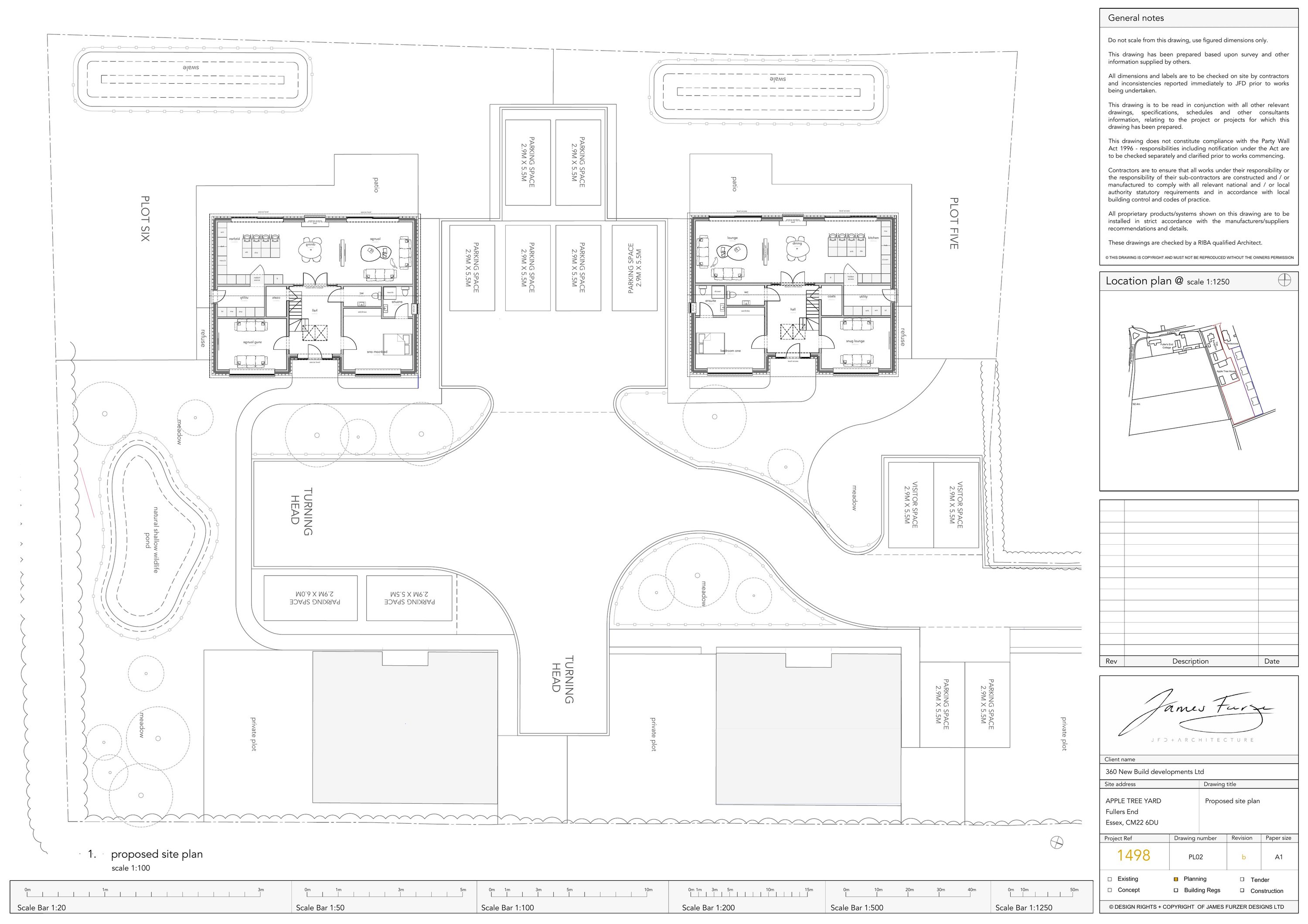
B020-Plan
Archived · Original link
B900-AP Consultation Replies
Archived · Original link
B900-AP Consultation Replies
Archived · Original link
B900-AP Consultation Replies
Archived · Original link
ELSENHAM PARISH COUNCIL - RESPONSE
B900-AP Consultation Replies
Not yet archived · Original link
B900-AP Consultation Replies
Archived · Original link
B999 - Representation Letter
Archived · Original link
B110-Officers Reports
Archived · Original link
B610-Supporting information
Archived · Original link
B610-Supporting information
Archived · Original link
B610-Supporting information
Archived · Original link
B610-Supporting information
Archived · Original link
B020-Plan
Archived · Original link
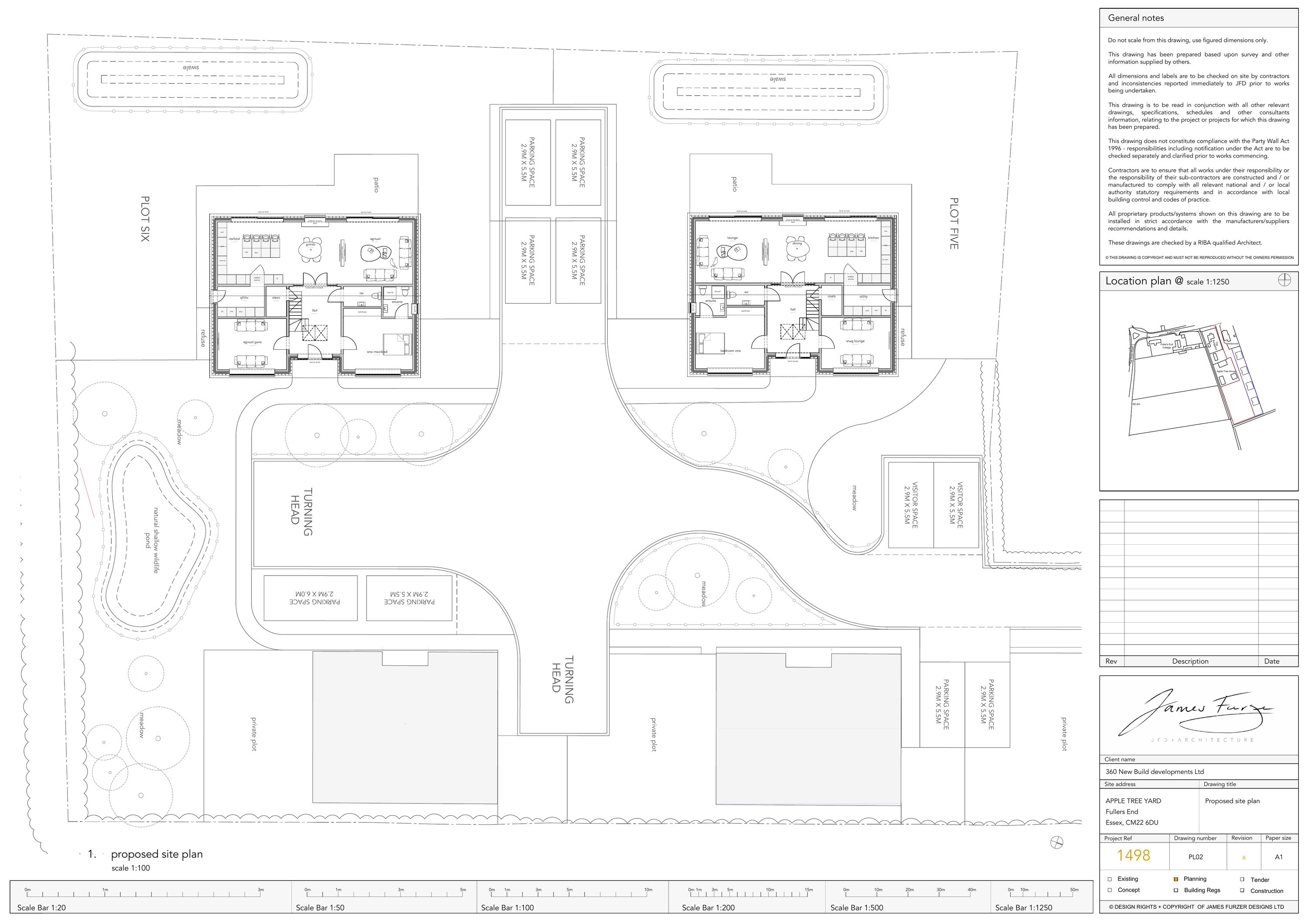
B020-Plan
Archived · Original link
B020-Plan
Archived · Original link
B020-Plan
Archived · Original link
B020-Plan
Archived · Original link
B610-Supporting information
Archived · Original link

Have your say

Your comment matters. Councils must consider every representation that raises material planning considerations.

Write a comment