← Uttlesford District Council

Status

Approved House extension
Received
20 Dec 2024
New homes
0

Full proposal

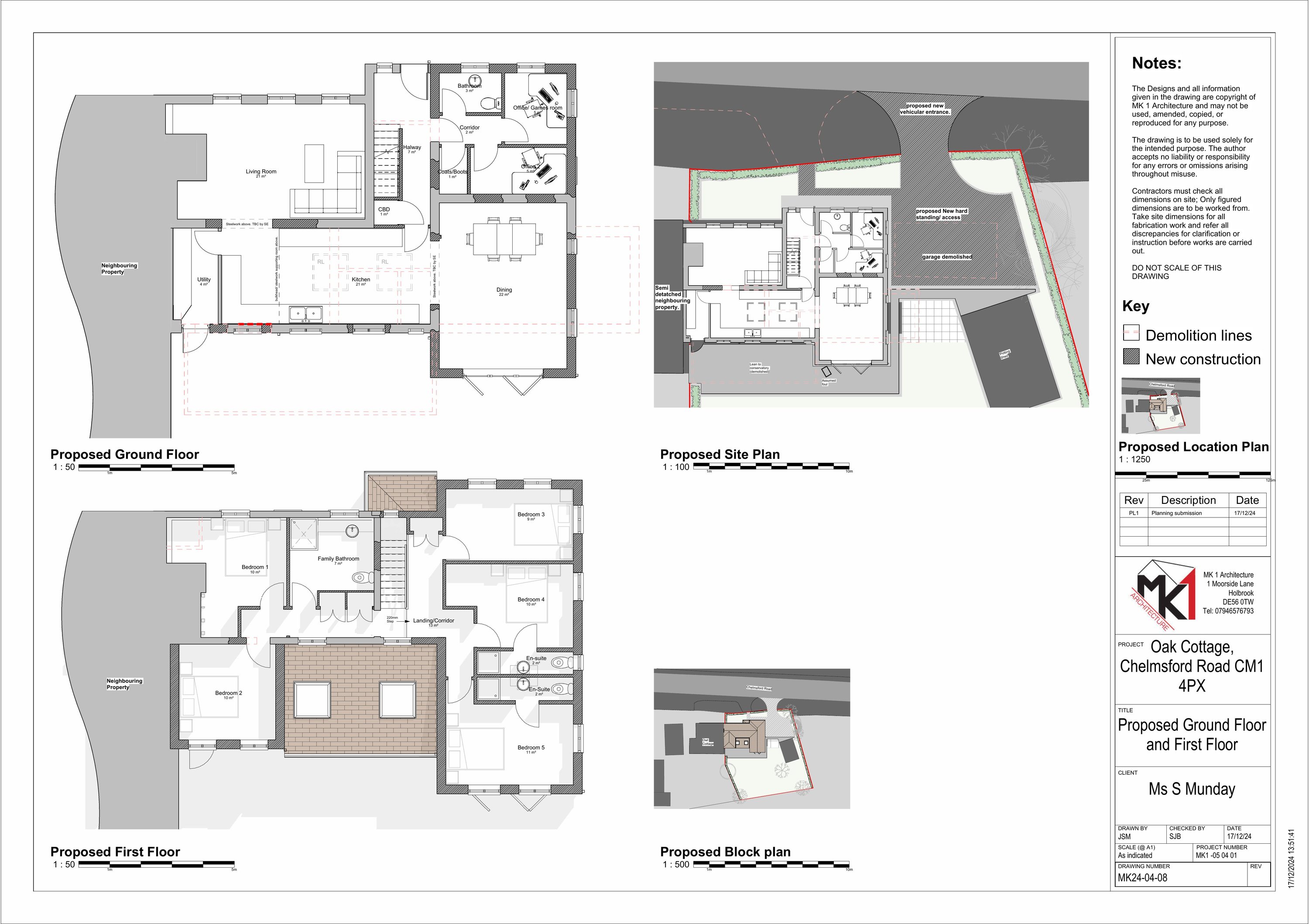
Demolition of existing previous 1970's extensions and new proposed side extension including front and rear projection including alterations to existing structure.

Documents

Decision Notice
Archived · Original link
Correspondence
Archived · Original link
B610-Supporting information
Archived · Original link
B610-Supporting information
Archived · Original link
B110-Officers Reports
Archived · Original link
PHOTOGRAPHS
B610-Supporting information
Not yet archived · Original link
B900-AP Consultation Replies
Archived · Original link

Have your say

Your comment matters. Councils must consider every representation that raises material planning considerations.

Write a comment