← Uttlesford District Council

Status

Refused Change of use
Received
23 Dec 2024
New homes
0

Full proposal

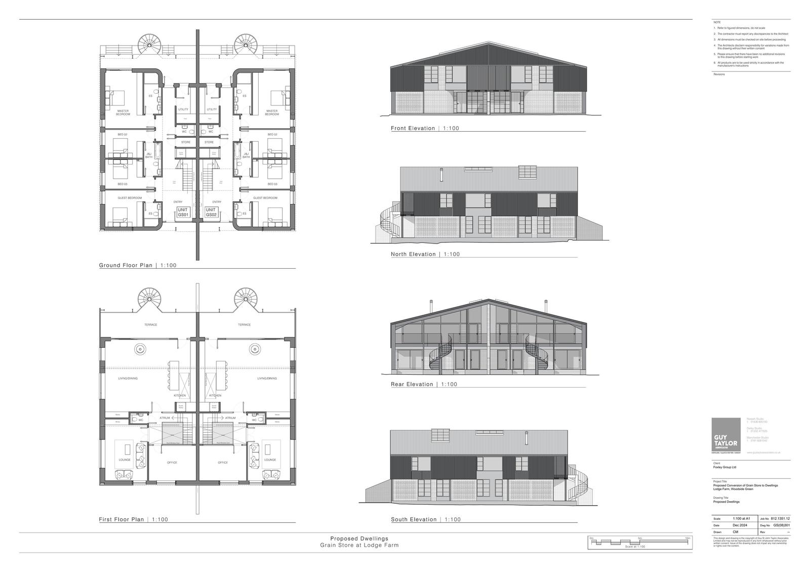
Conversion of agricultural building into a pair of semi detached dwellings and associated work (further to UTT/24/0362/PAQ3)

Documents

Correspondence
Archived · Original link
B610-Supporting information
Archived · Original link
B900-AP Consultation Replies
Archived · Original link
B610-Supporting information
Archived · Original link
B900-AP Consultation Replies
Archived · Original link
B610-Supporting information
Archived · Original link
B900-AP Consultation Replies
Archived · Original link
B020-Plan
Archived · Original link
B020-Plan
Archived · Original link
B020-Plan
Archived · Original link
B900-AP Consultation Replies
Archived · Original link
B020-Plan
Archived · Original link
B900-AP Consultation Replies
Archived · Original link
B110-Officers Reports
Archived · Original link
B900-AP Consultation Replies
Archived · Original link
B610-Supporting information
Archived · Original link
B610-Supporting information
Archived · Original link
B610-Supporting information
Archived · Original link
B610-Supporting information
Archived · Original link
B610-Supporting information
Archived · Original link
B610-Supporting information
Archived · Original link
B610-Supporting information
Archived · Original link
B020-Plan
Archived · Original link
Decision Notice
Archived · Original link

Have your say

Your comment matters. Councils must consider every representation that raises material planning considerations.

Write a comment