← Uttlesford District Council

Status

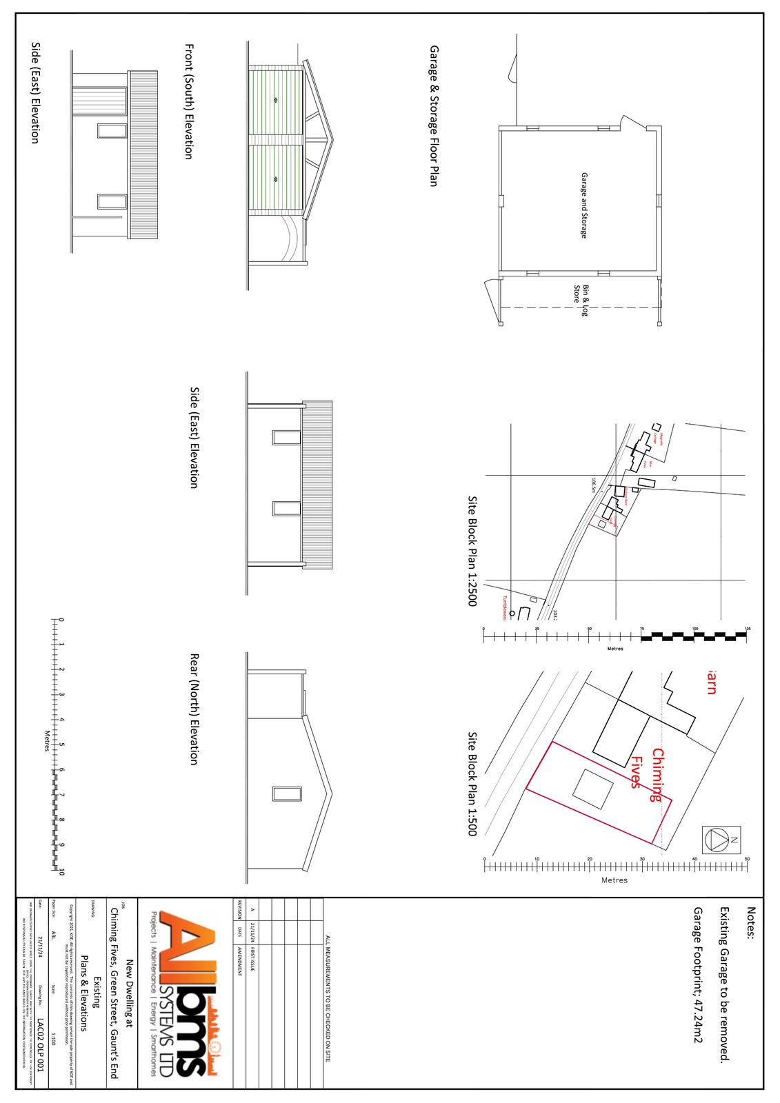
Approved Demolition
Received
07 Jan 2025
New homes
0

Full proposal

Details following outline application UTT/23/2965/OP for the demolition of garage and erection of 1 no. dwelling and associated work - details of layout, scale, landscaping and appearance.

Documents

Decision Notice
Archived · Original link
Correspondence
Archived · Original link
B610-Supporting information
Archived · Original link
B900-AP Consultation Replies
Archived · Original link
B900-AP Consultation Replies
Archived · Original link
B900-AP Consultation Replies
Archived · Original link
B900-AP Consultation Replies
Archived · Original link
B110-Officers Reports
Archived · Original link
B900-AP Consultation Replies
Archived · Original link
B610-Supporting information
Archived · Original link

Have your say

Your comment matters. Councils must consider every representation that raises material planning considerations.

Write a comment