UTT/25/0034/HHF
Uttlesford District Council
Status
Approved
House extension
Received
08 Jan 2025
New homes
0
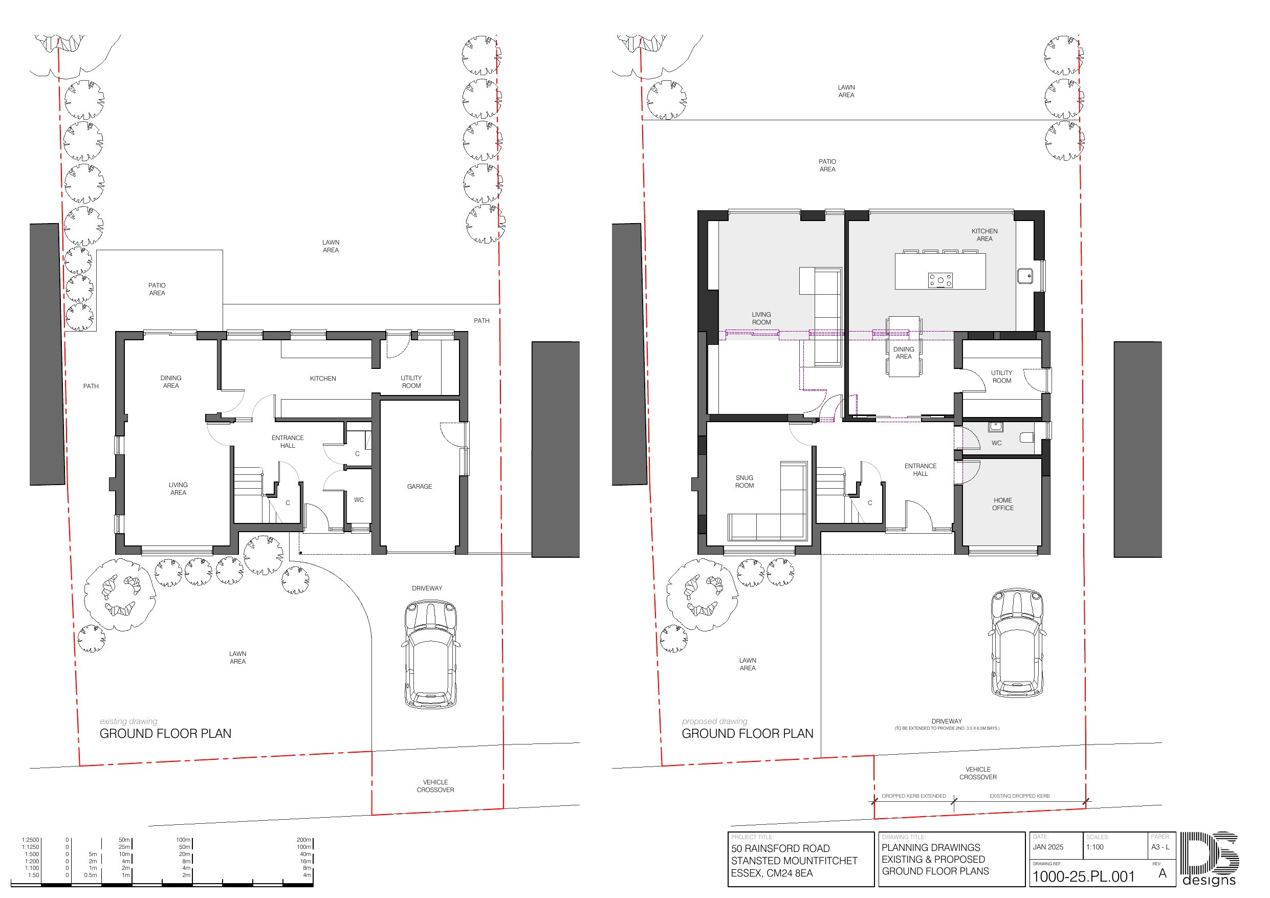
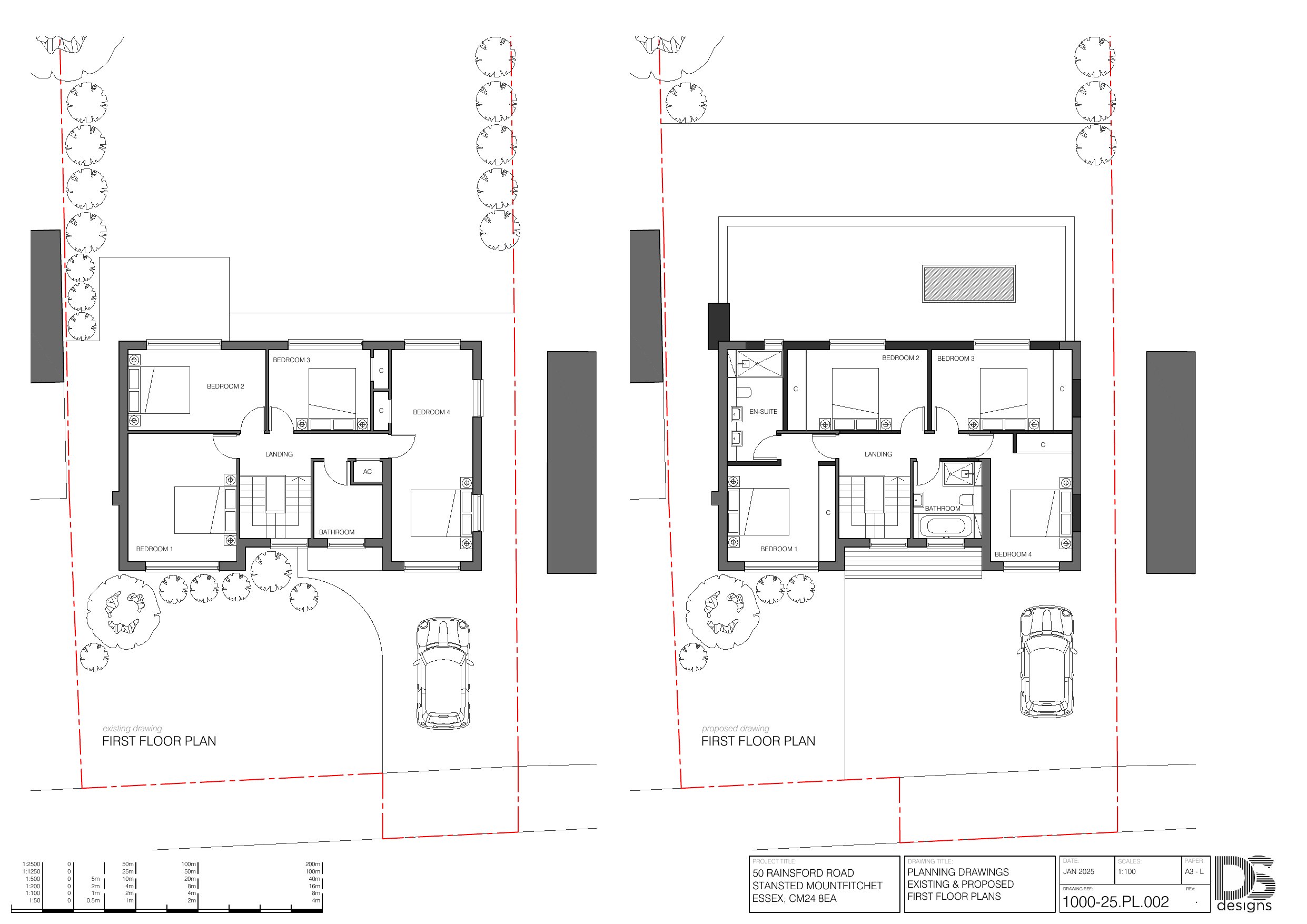
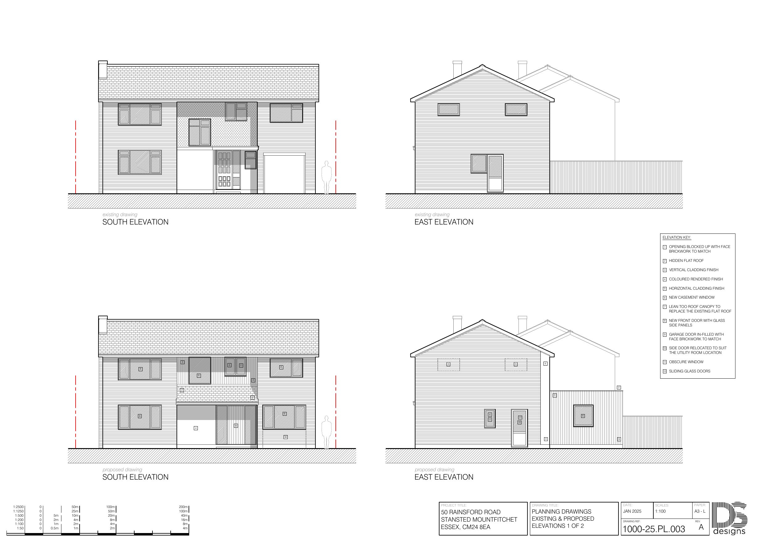
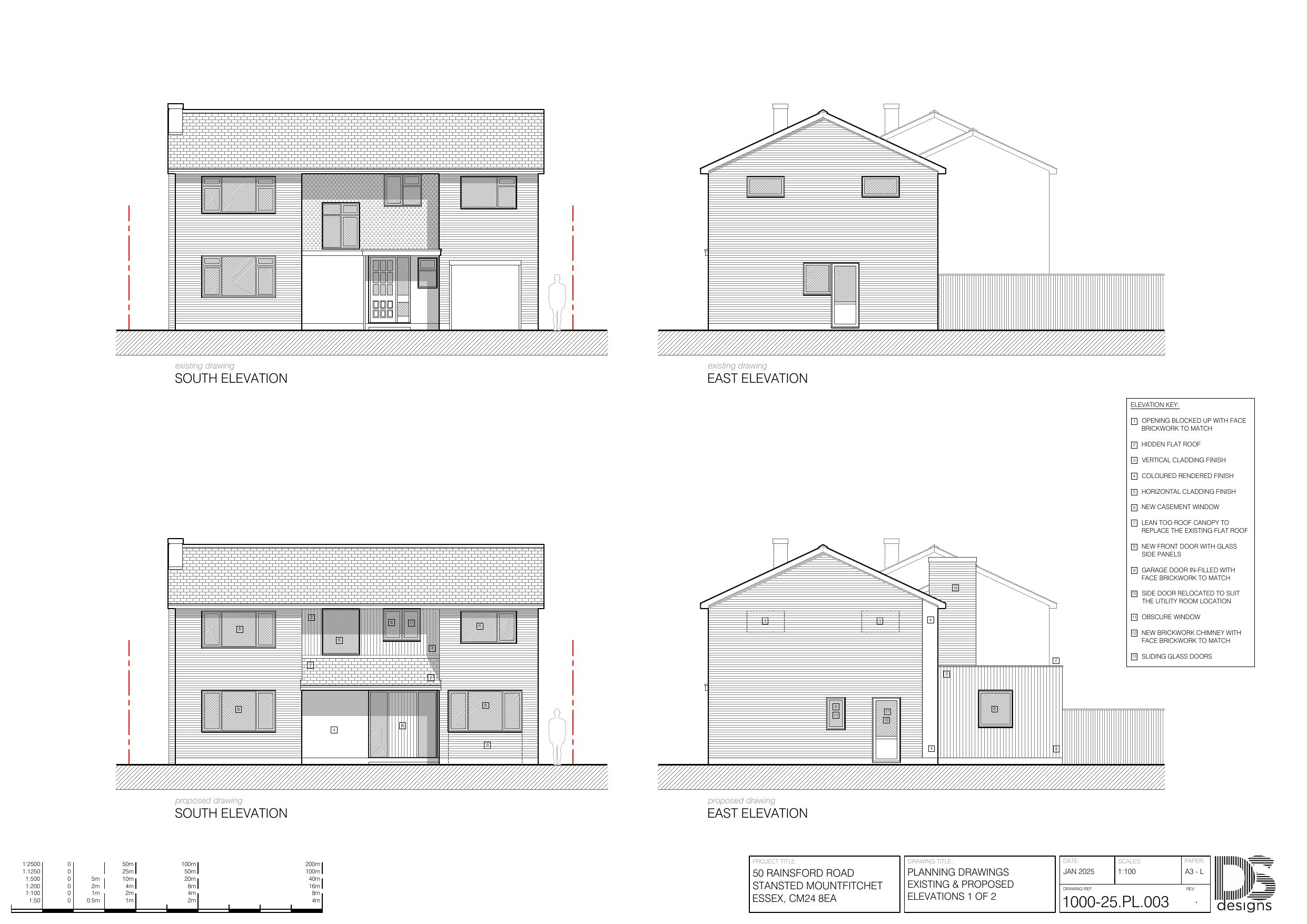
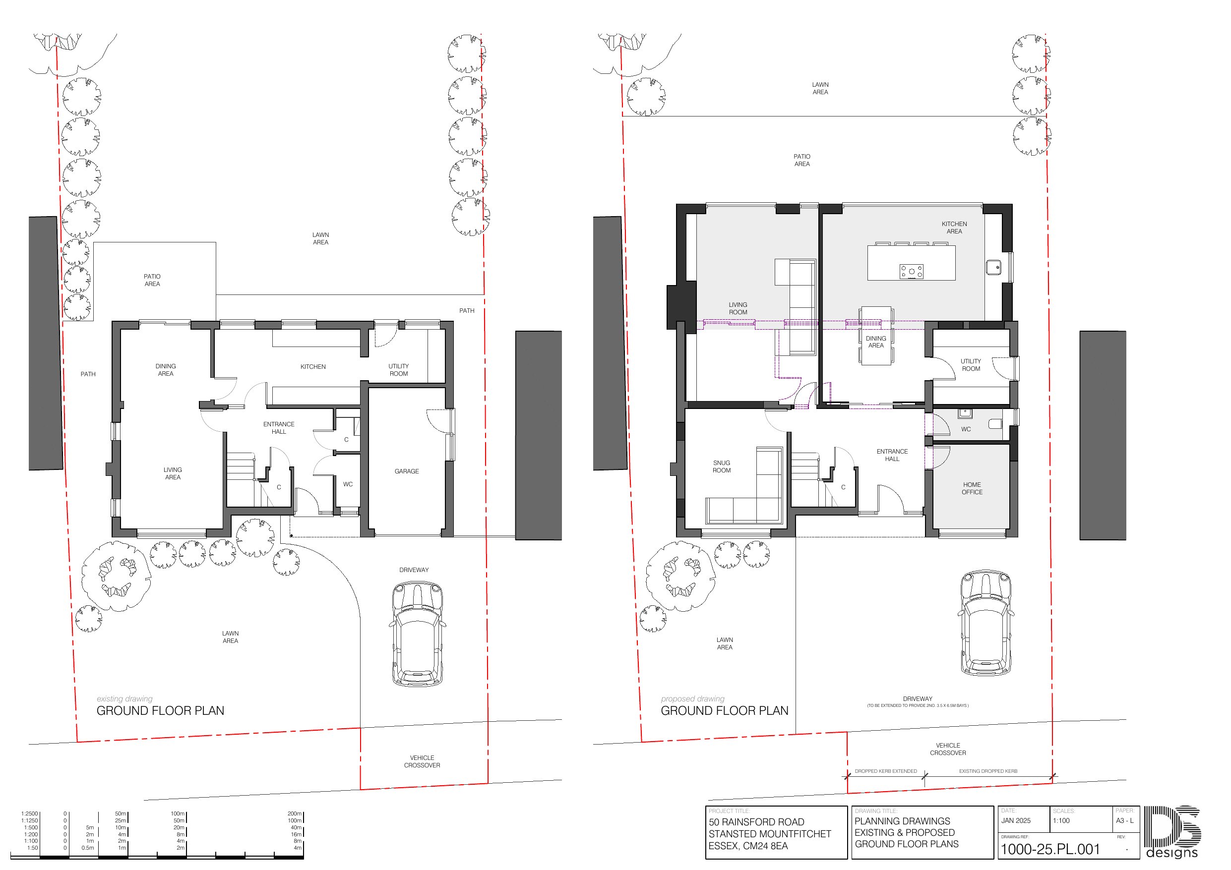
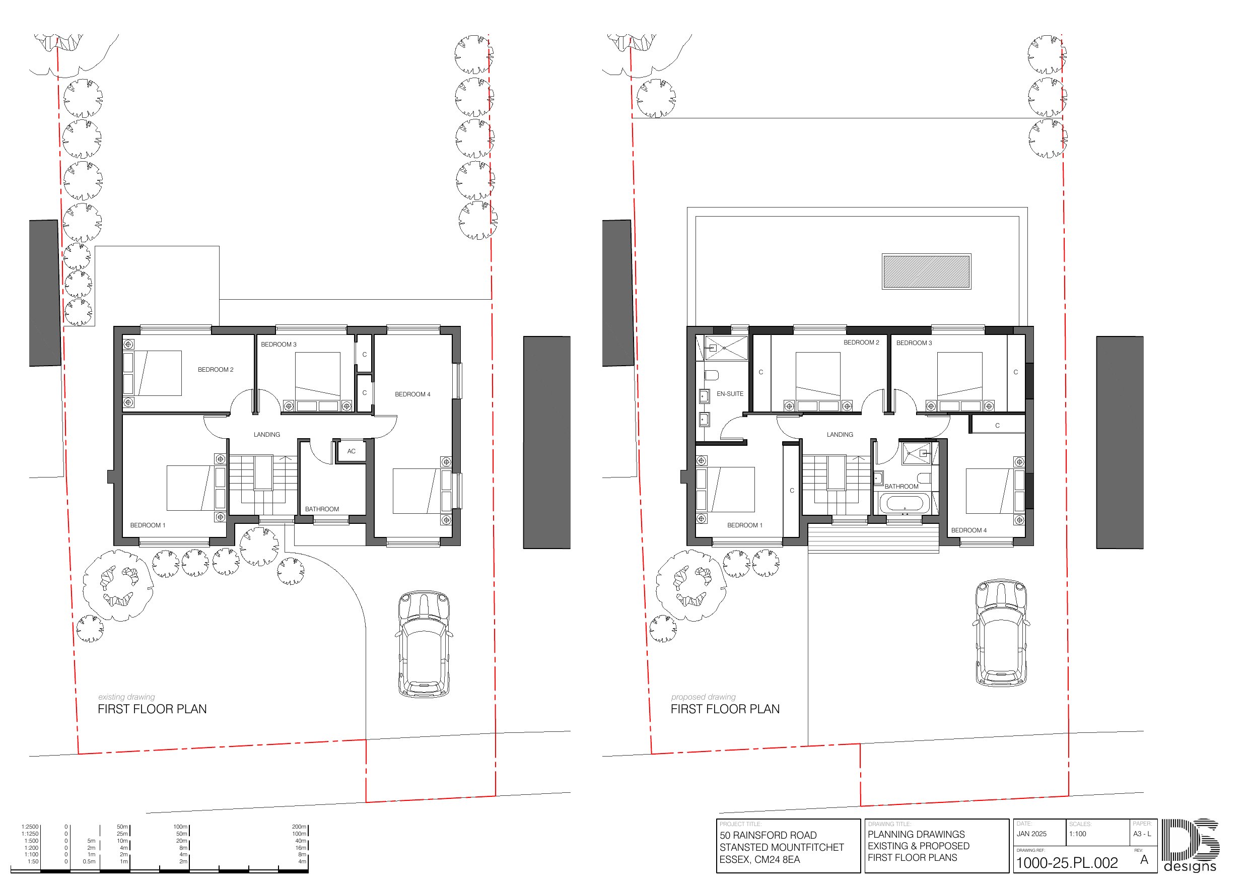
Full proposal
Single storey rear extension, garage conversion, driveway extended, dropped kerb to be extended and changes to the fenestration
Documents
Have your say
Your comment matters. Councils must consider every representation that raises material planning considerations.