← Uttlesford District Council

Status

Approved Demolition
Received
08 Jan 2025
New homes
0

Full proposal

Demolition of existing commercial buildings and erection of 2no. self-build dwellings, garages, the creation of new vehicle access with access gates and associated works.

Documents

B999 - Representation Letter
Archived · Original link
Decision Notice
Archived · Original link
Correspondence
Archived · Original link
B610-Supporting information
Archived · Original link
B610-Supporting information
Archived · Original link
B900-AP Consultation Replies
Archived · Original link
B900-AP Consultation Replies
Archived · Original link
B610-Supporting information
Archived · Original link
B610-Supporting information
Archived · Original link
B900-AP Consultation Replies
Archived · Original link
B900-AP Consultation Replies
Archived · Original link
B900-AP Consultation Replies
Archived · Original link
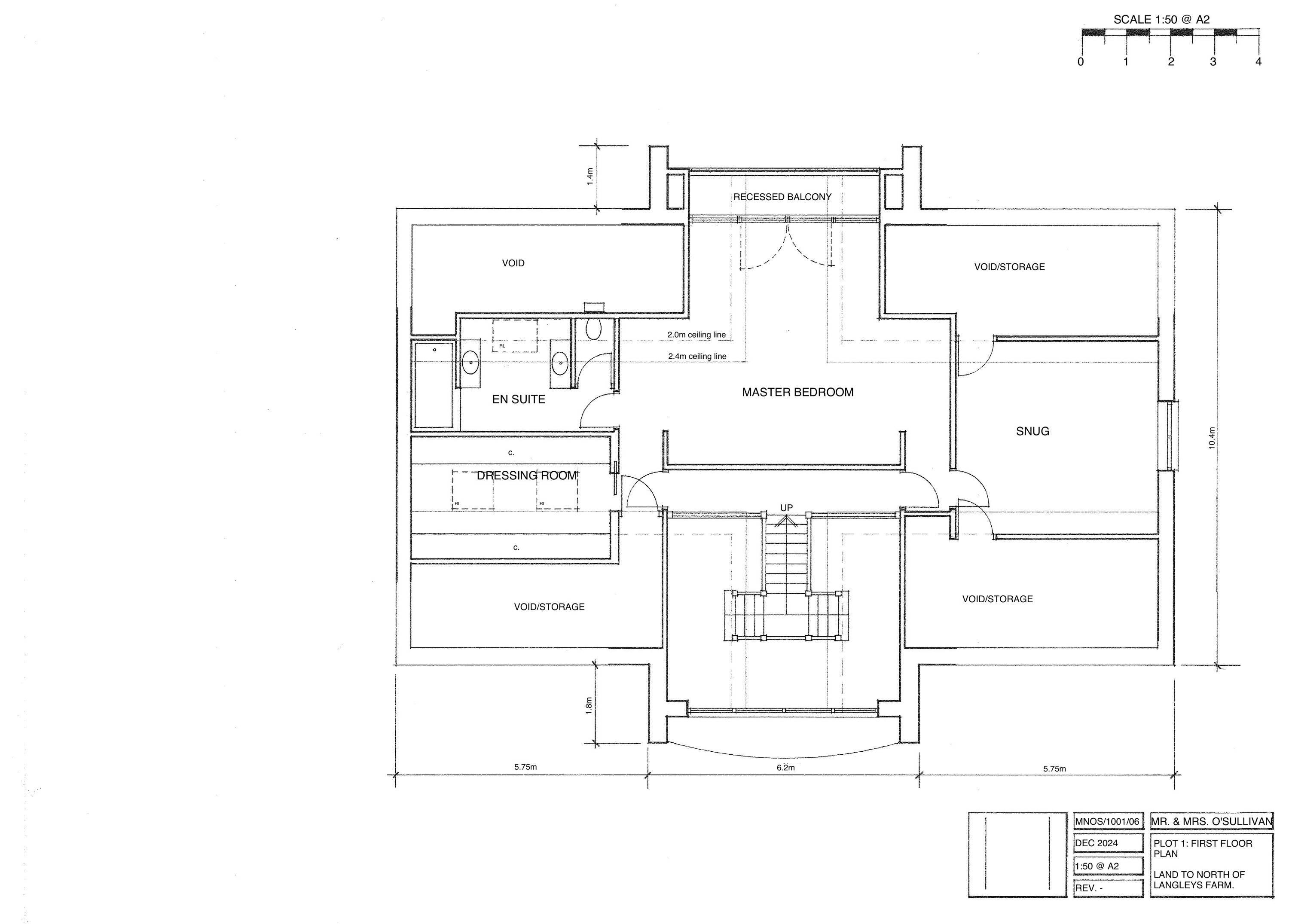
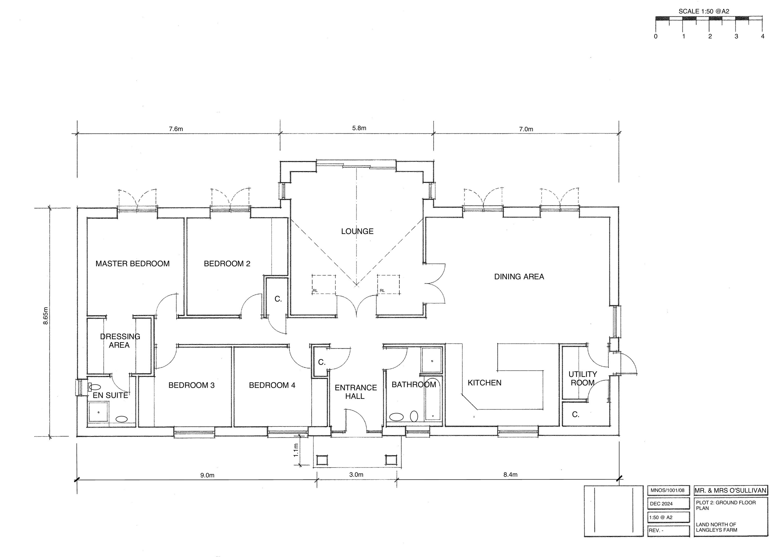
B020-Plan
Archived · Original link
B110-Officers Reports
Archived · Original link
B020-Plan
Archived · Original link
B020-Plan
Archived · Original link
B020-Plan
Archived · Original link
B020-Plan
Archived · Original link
B610-Supporting information
Archived · Original link
B020-Plan
Archived · Original link
B610-Supporting information
Archived · Original link
B610-Supporting information
Archived · Original link
B020-Plan
Archived · Original link
B900-AP Consultation Replies
Archived · Original link

Have your say

Your comment matters. Councils must consider every representation that raises material planning considerations.

Write a comment