← Uttlesford District Council

Status

Approved New housing
Received
14 Jan 2025
New homes
1

Full proposal

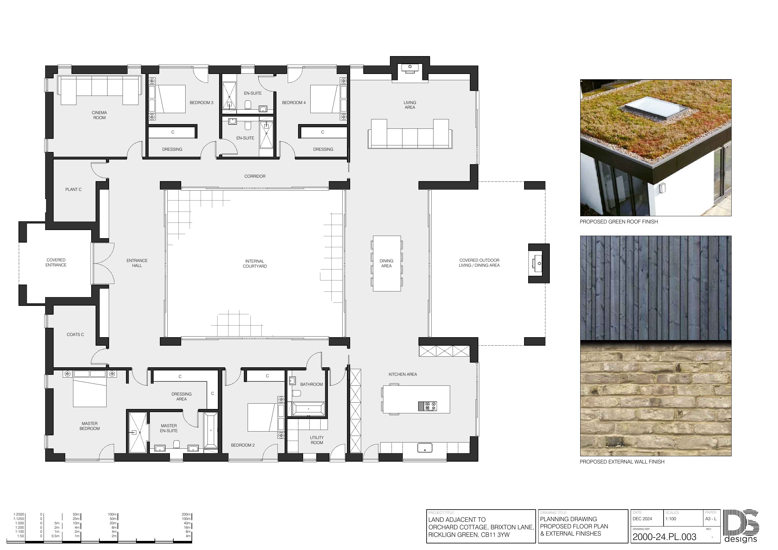
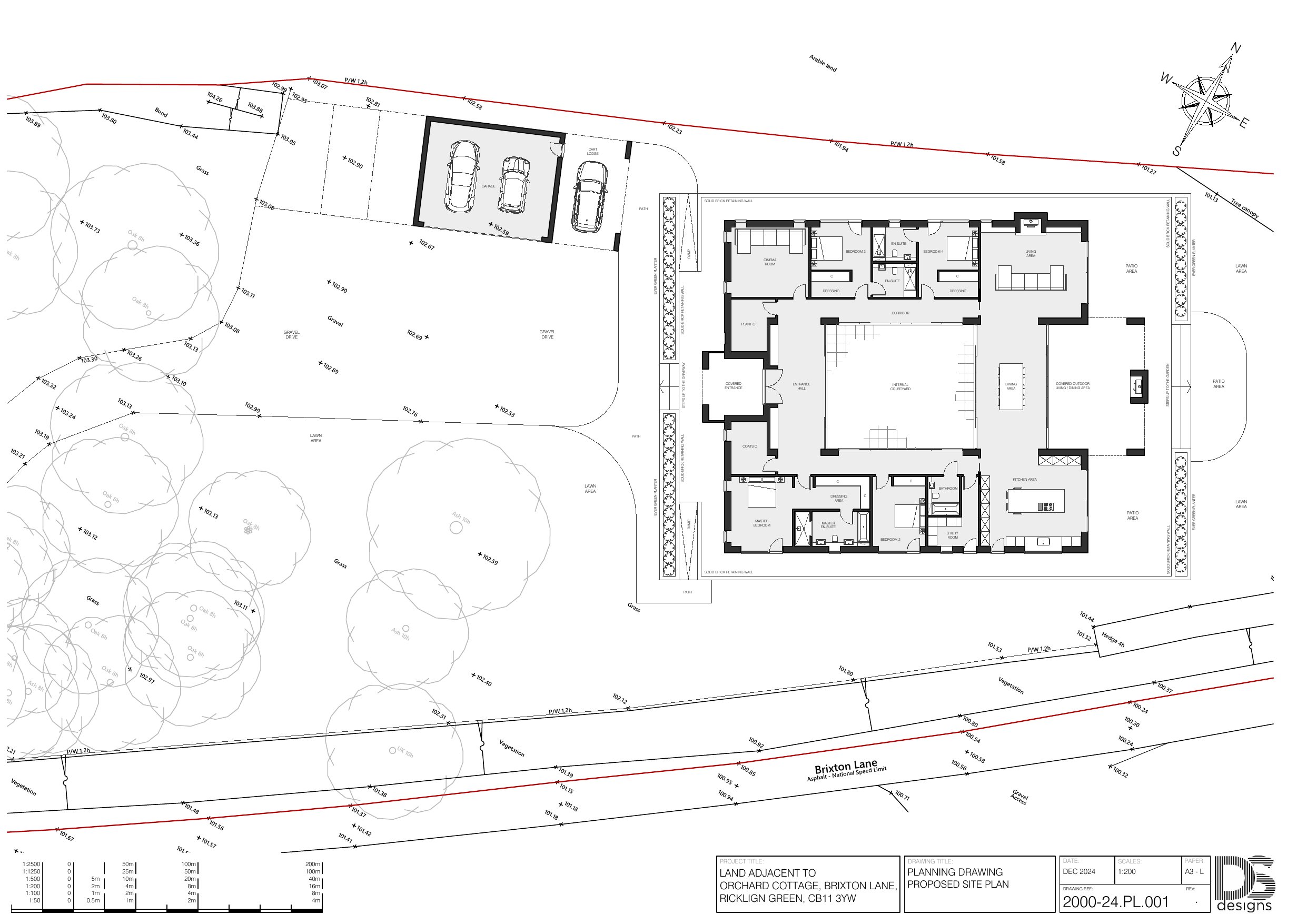
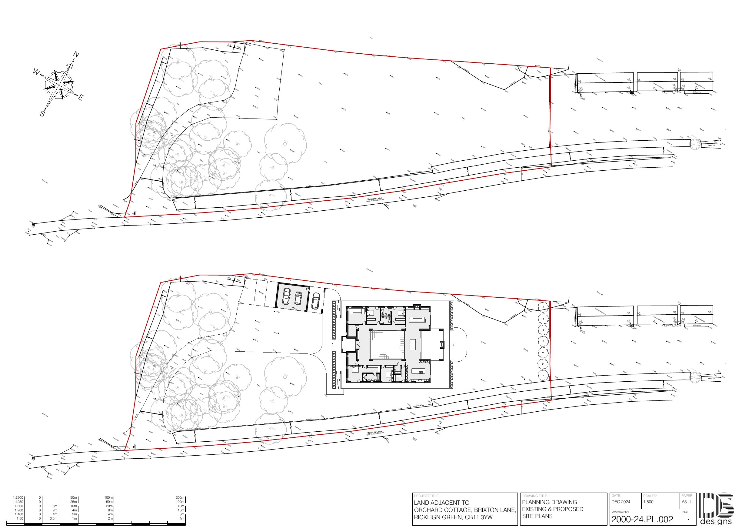
New detached single storey self-build residential dwelling and detached garage

Documents

Decision Notice
Archived · Original link
Correspondence
Archived · Original link
B610-Supporting information
Archived · Original link
B900-AP Consultation Replies
Archived · Original link
B610-Supporting information
Archived · Original link
B610-Supporting information
Archived · Original link
B610-Supporting information
Archived · Original link
B900-AP Consultation Replies
Archived · Original link
B020-Plan
Archived · Original link
B110-Officers Reports
Archived · Original link
B900-AP Consultation Replies
Archived · Original link
B020-Plan
Archived · Original link

Have your say

Your comment matters. Councils must consider every representation that raises material planning considerations.

Write a comment