← Uttlesford District Council

Status

Approved Agricultural
Received
16 Jan 2025
New homes
0

Full proposal

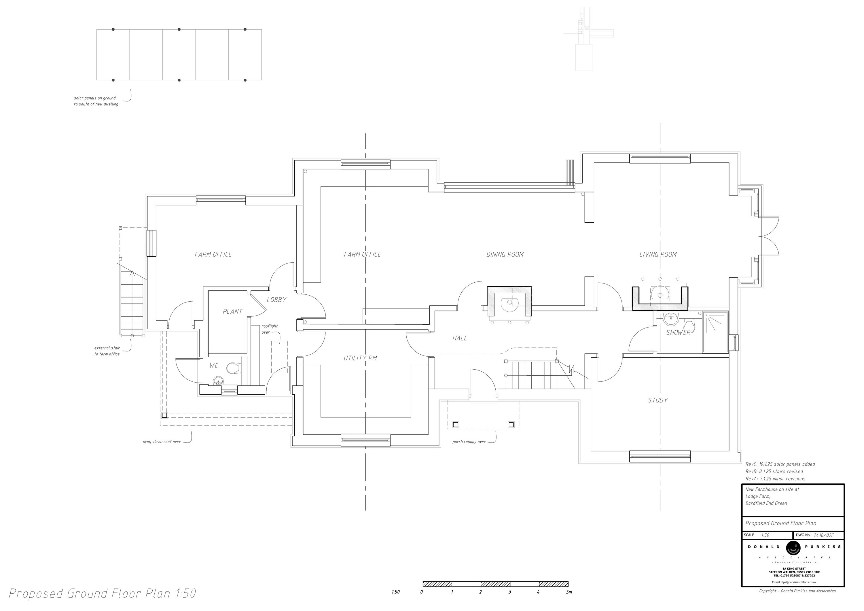
Demolition of existing hay barn and erection of 1no. new self-build/custom build agricultural dwelling with ground fixed Solar Array to south of farm office - revision to that approved under UTT/23/0928/FUL.

Documents

Decision Notice
Archived · Original link
Correspondence
Archived · Original link
B610-Supporting information
Archived · Original link
B610-Supporting information
Archived · Original link
B020-Plan
Archived · Original link
B610-Supporting information
Archived · Original link
B900-AP Consultation Replies
Archived · Original link
B610-Supporting information
Archived · Original link
B900-AP Consultation Replies
Archived · Original link
B110-Officers Reports
Archived · Original link
B900-AP Consultation Replies
Archived · Original link
B020-Plan
Archived · Original link
B020-Plan
Archived · Original link
B020-Plan
Archived · Original link
B610-Supporting information
Archived · Original link

Have your say

Your comment matters. Councils must consider every representation that raises material planning considerations.

Write a comment