← Uttlesford District Council

Status

Approved Change of use
Received
15 Jan 2025
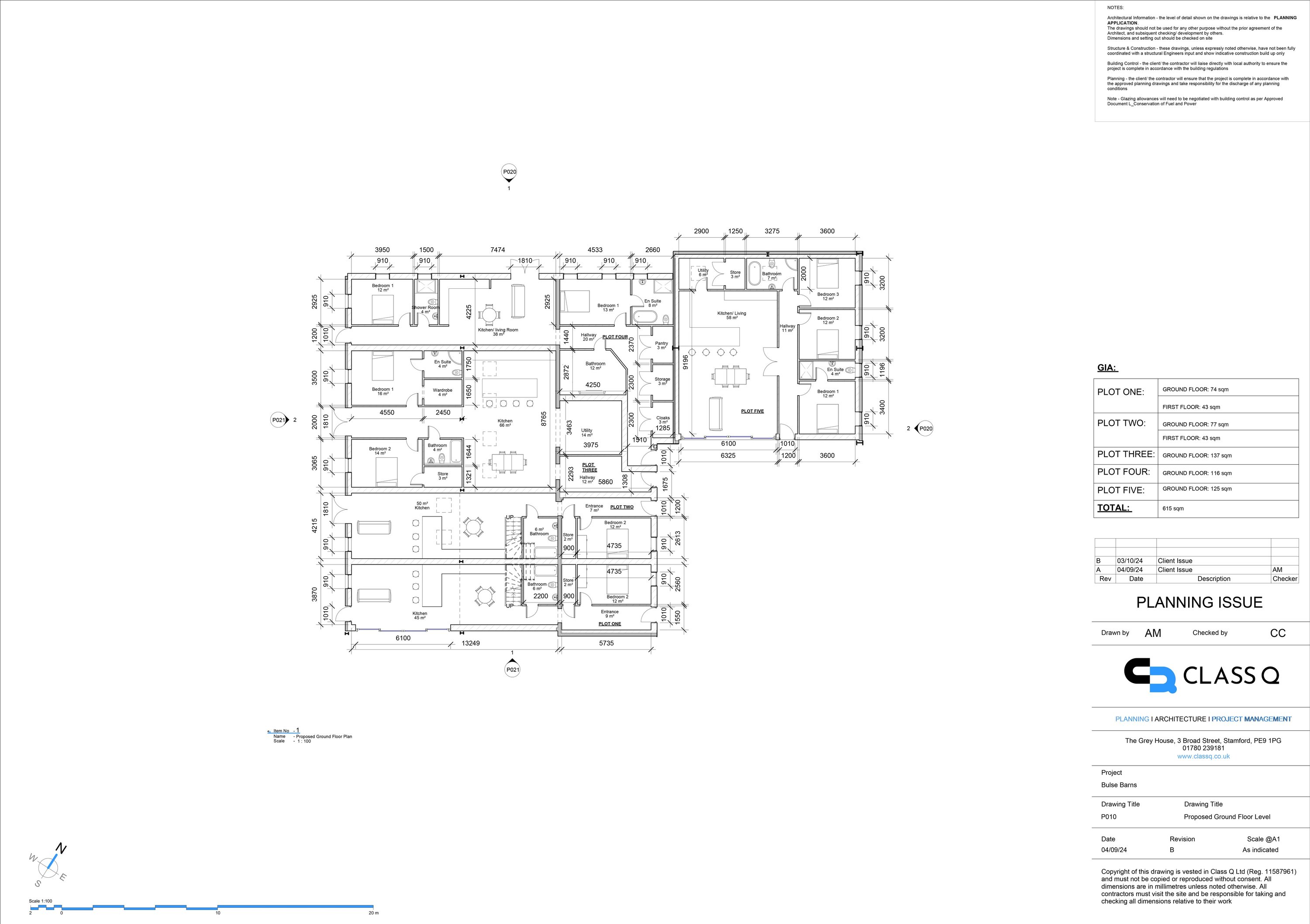
New homes
5

Summary

Prior notification to convert agricultural building to five dwellings.

Full proposal

Prior Notification of change of use of agricultural building to 5 no. dwellings

Documents

Correspondence
Archived · Original link
B610-Supporting information
Archived · Original link
B610-Supporting information
Archived · Original link
B900-AP Consultation Replies
Archived · Original link
B900-AP Consultation Replies
Archived · Original link
B900-AP Consultation Replies
Archived · Original link
B020-Plan
Archived · Original link
B020-Plan
Archived · Original link
B020-Plan
Archived · Original link
B110-Officers Reports
Archived · Original link
Decision Notice
Archived · Original link
B610-Supporting information
Archived · Original link
B999 - Representation Letter
Archived · Original link
B999 - Representation Letter
Archived · Original link
B900-AP Consultation Replies
Archived · Original link

Have your say

Your comment matters. Councils must consider every representation that raises material planning considerations.

Write a comment