← Back to Uttlesford District Council
Application
UTT/25/0243/AIR
Uttlesford District Council · IDOX
Status
Unknown
Received
28 Jan 2025
New dwellings
n/a
What you can do
Take Action
Make your voice heard. Authorities need to hear from people who support new homes.
Summary
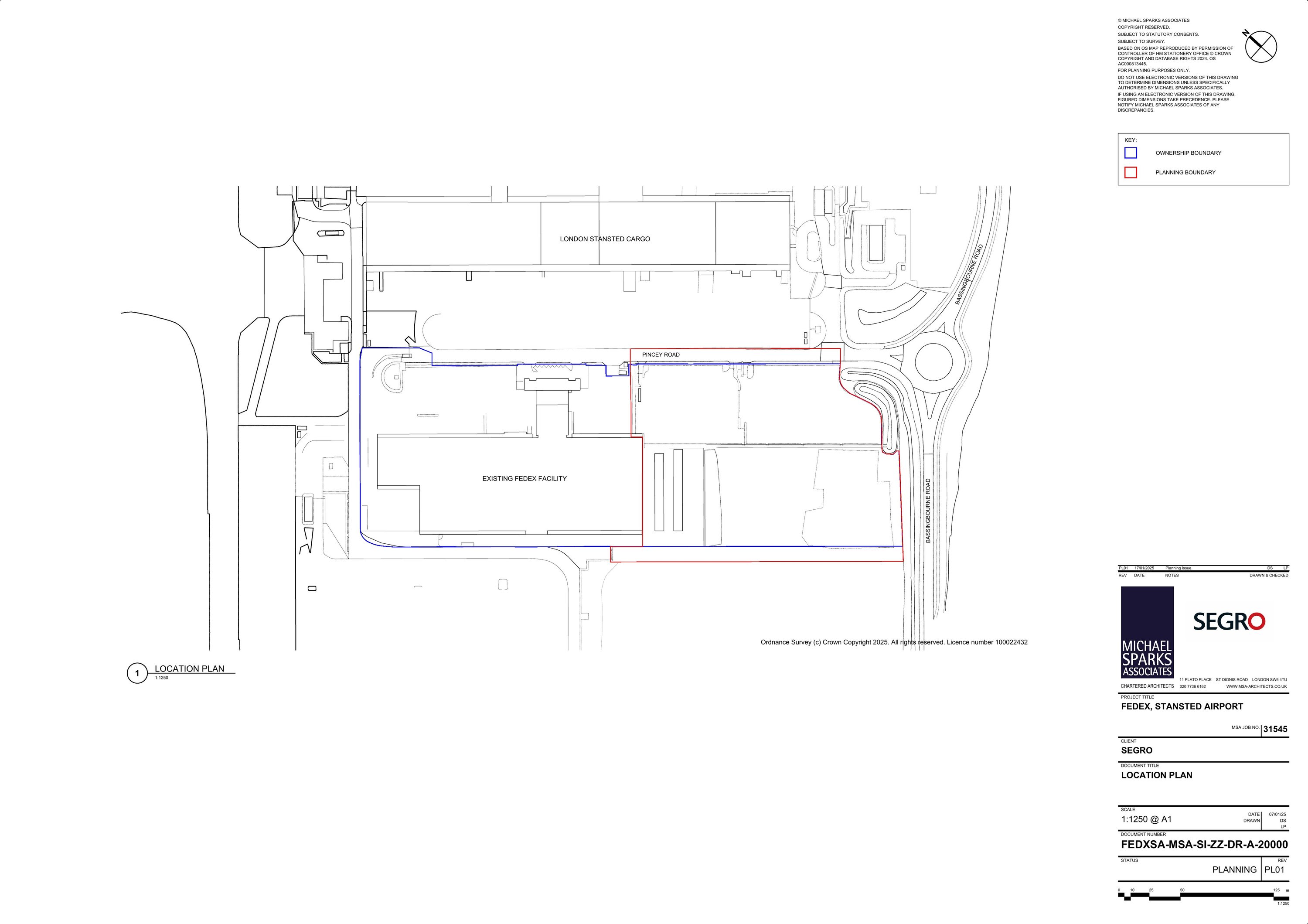
Extension of FedEx warehouse with operational building, offices, MSCP, yard and road works.
Full Proposal
Notification of use of airport permitted development rights - Construction of a new operational building to extend the existing FedEx warehouse facility with ancillary office space, landside yard space, associated multi-story car park (MSCP), cycle parking, extension to the common user road, landscaping and other associated works
Detail pages
- View live detail on council site
- No archived detail page available.
Documents
CONSTR - CONSTRAINTS LIST
Report
Not downloaded
· Council link
COVERING LETTER WITH REVISIONS
B610-Supporting information
Not downloaded
· Council link
DECISION LETTER
B010-Decision Notice
Not downloaded
· Council link
ESSEX POLICE - RESPONSE
B900-AP Consultation Replies
Not downloaded
· Council link
LOCATION PLAN
B020-Plan
Not downloaded
· Council link
NOTIFICATION LETTER
B610-Supporting information
Not downloaded
· Council link
OTHER
B110-Officers Reports
Not downloaded
· Council link
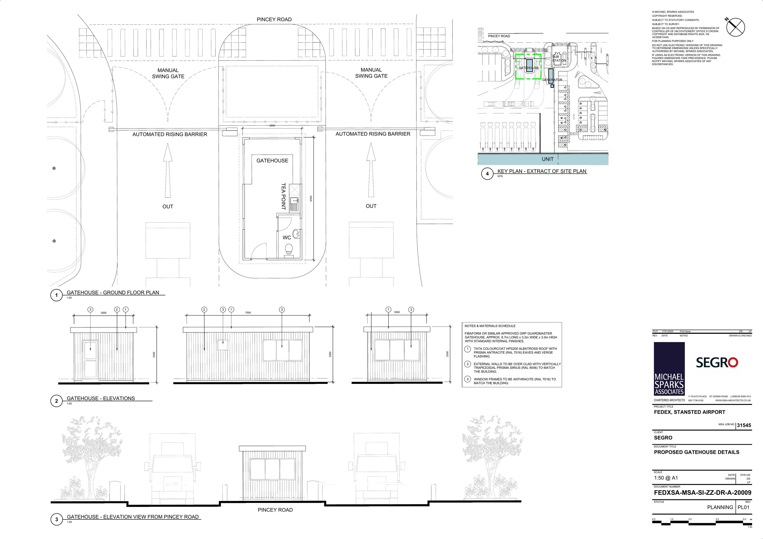
REVISED INBOUND GATEHOUSE DETAILS
B020-Plan
Not downloaded
· Council link
REVISED PROPOSED ELEVATIONS
B020-Plan
Not downloaded
· Council link
REVISED PROPOSED GATEHOUSE SITE PLAN
B020-Plan
Archived copy
· Council link
REVISED PROPOSED SITE LAYOUT PLAN
B020-Plan
Not downloaded
· Council link
SUPERSEDED PROPOSED ELEVATIONS
B020-Plan
Not downloaded
· Council link
SUPERSEDED PROPOSED GATEHOUSE DETAILS
B020-Plan
Not downloaded
· Council link
SUPERSEDED PROPOSED SITE LAYOUT
B020-Plan
Not downloaded
· Council link