← Uttlesford District Council

Status

Withdrawn New housing
Received
12 May 2025
New homes
2

Summary

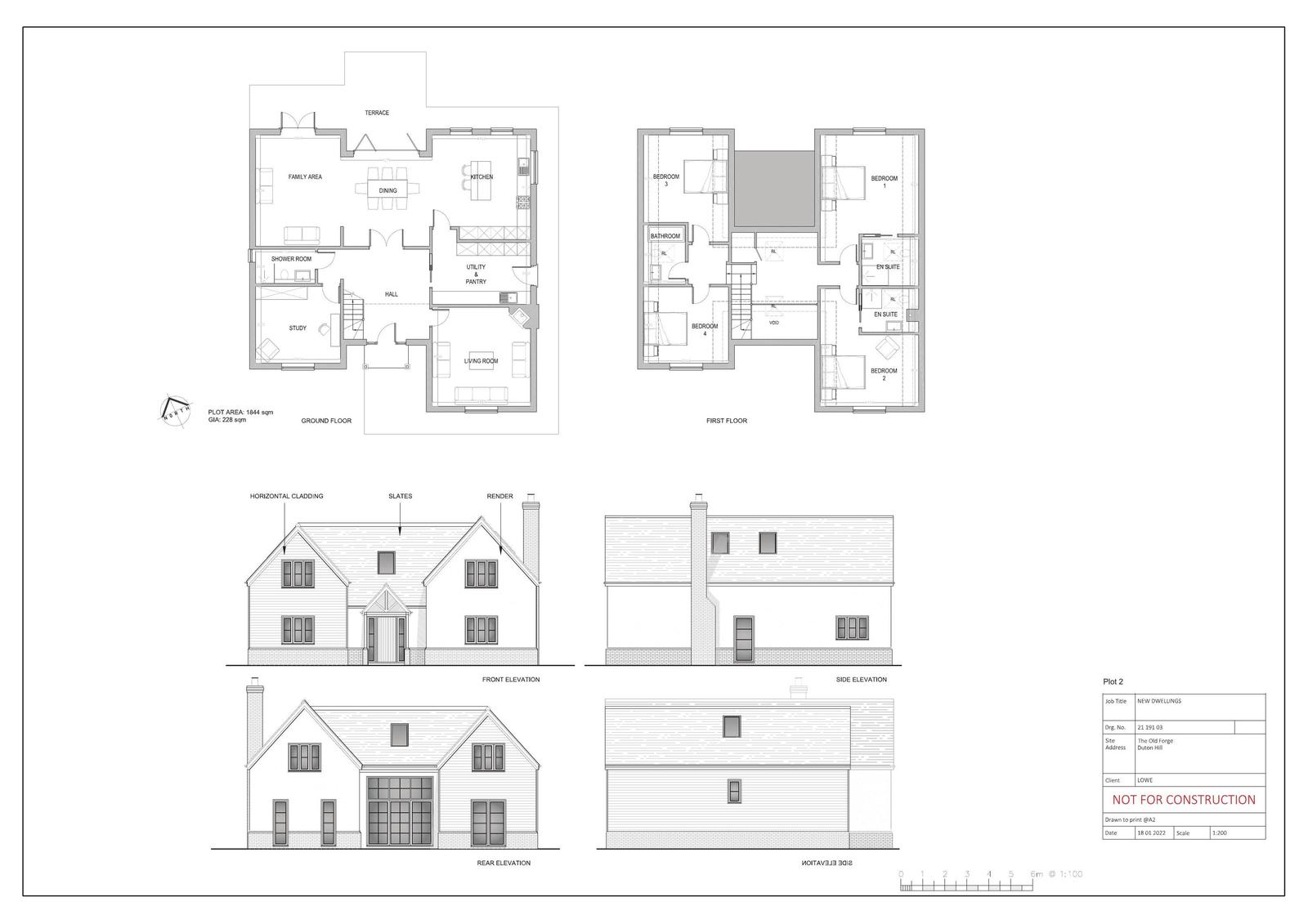
Erection of two detached dwellings.

Full proposal

Full application for the erection of 2 no. detached dwellings

Documents

ACKAPP STANDARD ACKNOWLEDGEMENT
Correspondence
Not yet archived · Original link
AGENT'S RESPONSE TO COMMENTS
B610-Supporting information
Not yet archived · Original link
ALFEDI - COMMENTS
B999 - Representation Letter
Not yet archived · Original link
APPLICATION FORM
B610-Supporting information
Not yet archived · Original link
BARN HOUSE - COMMENTS
B999 - Representation Letter
Not yet archived · Original link
BARN HOUSE - COMMENTS
B999 - Representation Letter
Not yet archived · Original link
BIODIVERSITY METRIC CALCULATION TOOL
B610-Supporting information
Not yet archived · Original link
BIODIVERSITY NET GAIN ASSESSMENT
B610-Supporting information
Not yet archived · Original link
BIODIVERSITY VALIDATION CHECKLIST
B610-Supporting information
Not yet archived · Original link
BLOCK PLAN
B020-Plan
Not yet archived · Original link
BNG METRIC
B610-Supporting information
Not yet archived · Original link
CONSERVATION PLACE SERVICES - COMMENTS
B900-AP Consultation Replies
Not yet archived · Original link
CONSTR - CONSTRAINTS LIST
Report
Not yet archived · Original link
DUTON HILL FARM - COMMENTS
B999 - Representation Letter
Not yet archived · Original link
ECC HIGHWAYS - RESPONSE
B900-AP Consultation Replies
Not yet archived · Original link
ECOLOGY PLACE SERVICES - COMMENTS
B900-AP Consultation Replies
Not yet archived · Original link
ENVIRONMENTAL HEALTH - RESPONSE
B900-AP Consultation Replies
Not yet archived · Original link
GCN REPORT
B610-Supporting information
Not yet archived · Original link
GREAT EASTON PARISH COUNCIL - RESPONSE
B900-AP Consultation Replies
Not yet archived · Original link
GREAT EASTON PARISH COUNCIL - RESPONSE
B900-AP Consultation Replies
Not yet archived · Original link
LOCATION PLAN
B020-Plan
Not yet archived · Original link
MAG AERODROME SAFEGUARDING - COMMENTS
B900-AP Consultation Replies
Not yet archived · Original link
PATMERS - COMMENTS
B999 - Representation Letter
Not yet archived · Original link
PLANNING STATEMENT INCORPORATING DESIGN AND ACCESS STATEMENT
B610-Supporting information
Not yet archived · Original link
PRELIMINARY ECOLOGICAL ASSESSMENT
B610-Supporting information
Not yet archived · Original link
THE OLD FORGE - COMMENTS
B999 - Representation Letter
Not yet archived · Original link
TRANSPORT STATEMENT
B610-Supporting information
Not yet archived · Original link
VISIBILITY SPLAY
B020-Plan
Not yet archived · Original link

Have your say

Your comment matters. Councils must consider every representation that raises material planning considerations.

Write a comment