← Uttlesford District Council

Status

Awaiting decision New housing
Received
Last month
New homes
2

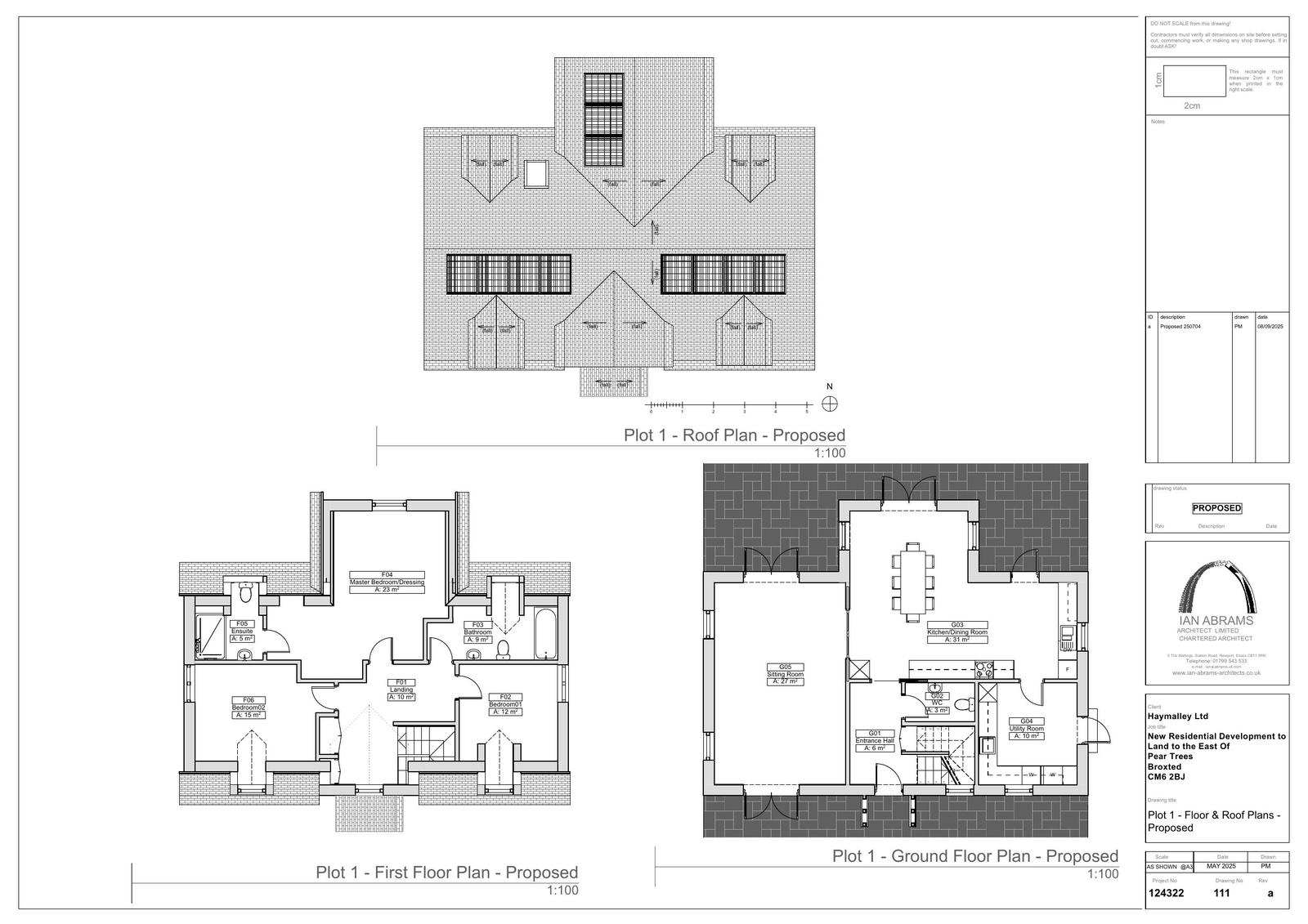
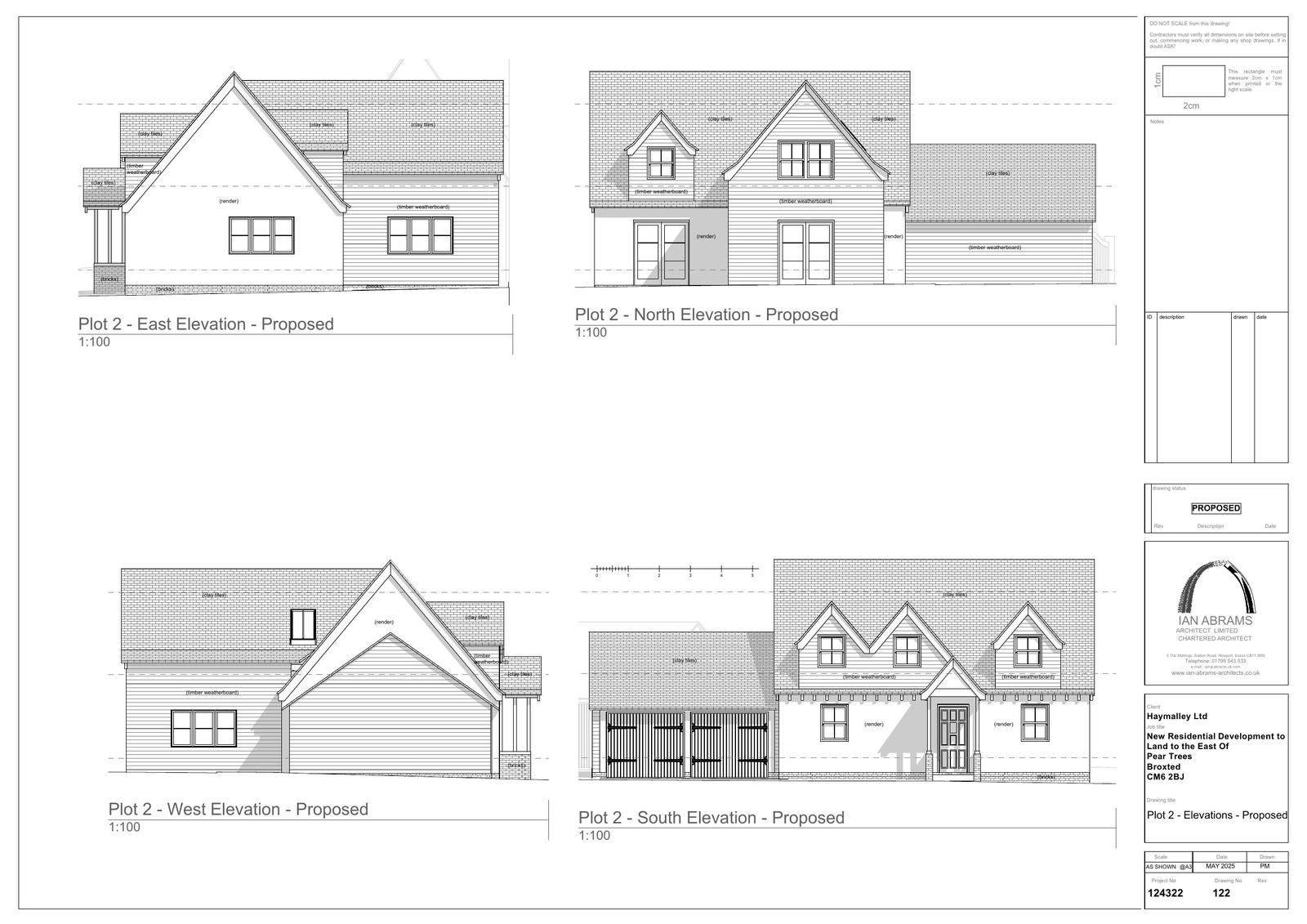
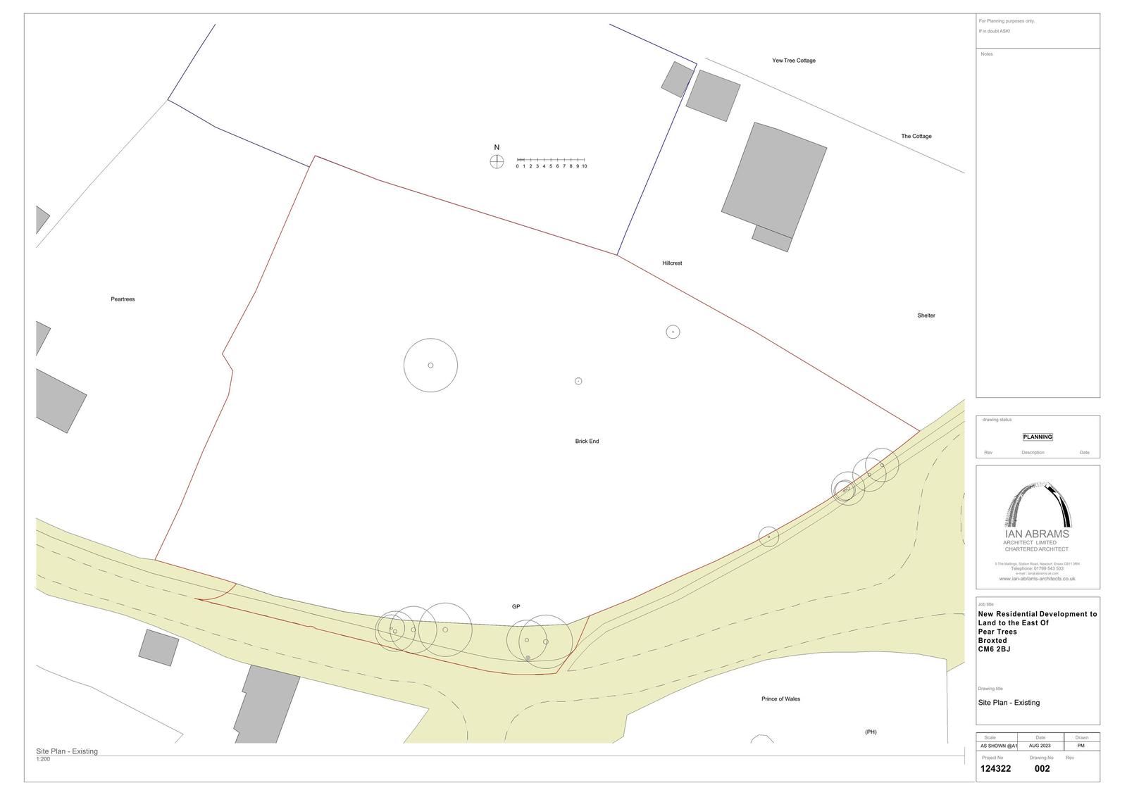
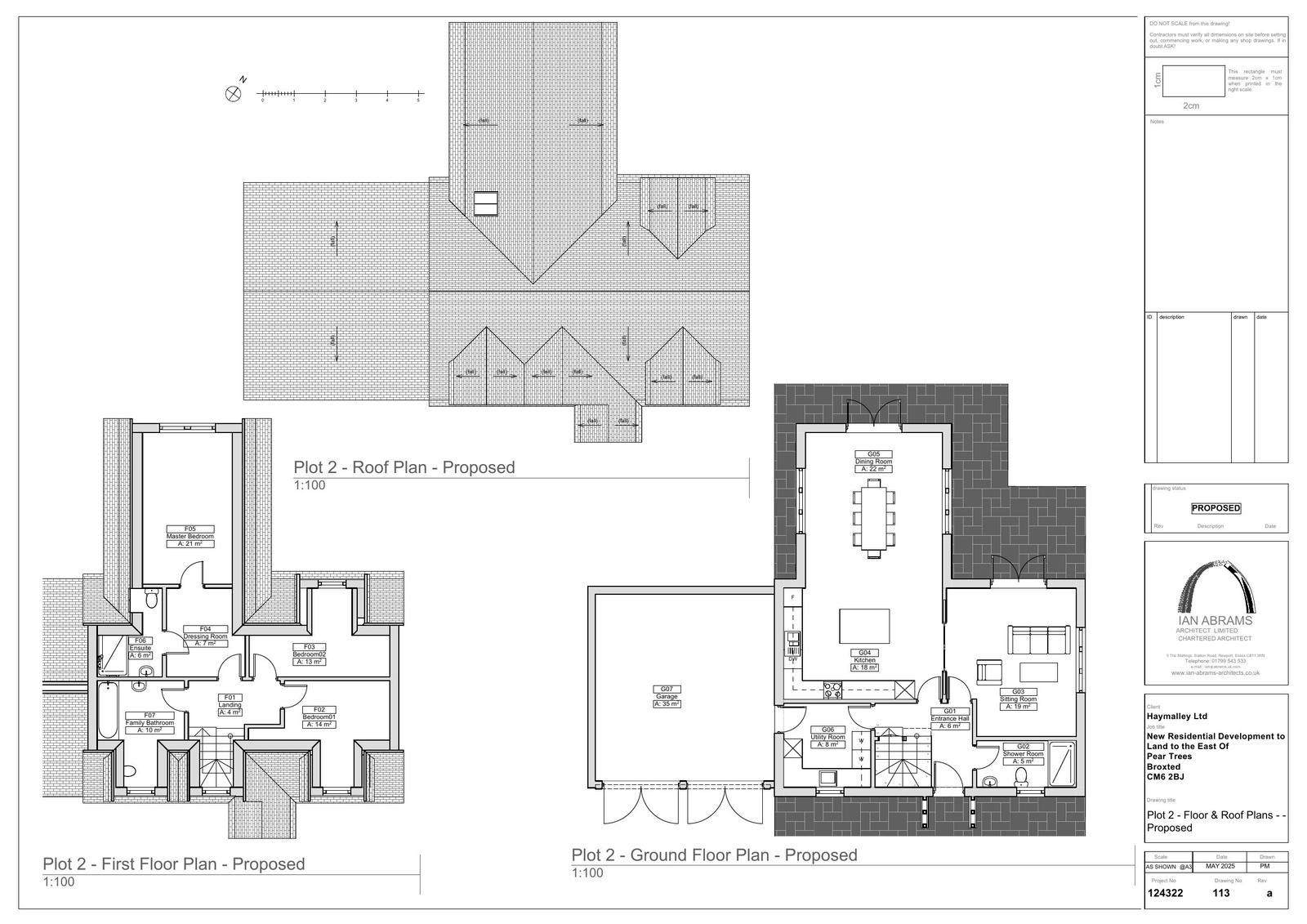
Full proposal

Proposed erection of 2 no. detached dwellings and associated access and parking

Documents

Correspondence
Archived · Original link
B610-Supporting information
Archived · Original link
B610-Supporting information
Archived · Original link
B610-Supporting information
Archived · Original link
B610-Supporting information
Archived · Original link
B610-Supporting information
Archived · Original link
B610-Supporting information
Archived · Original link
B610-Supporting information
Archived · Original link
B610-Supporting information
Archived · Original link
ENVIRONMENTAL HEALTH - RESPONSE
B900-AP Consultation Replies
Not yet archived · Original link
B610-Supporting information
Archived · Original link
B610-Supporting information
Archived · Original link
B020-Plan
Archived · Original link
B610-Supporting information
Archived · Original link
B999 - Representation Letter
Archived · Original link
B999 - Representation Letter
Archived · Original link
B020-Plan
Archived · Original link
B900-AP Consultation Replies
Archived · Original link
B900-AP Consultation Replies
Archived · Original link
NATURAL ENGLAND - COMMENTS
B900-AP Consultation Replies
Not yet archived · Original link
NATURAL ENGLAND - COMMENTS (ANNEX A TO STANDARD LETTERS - OCT 2025
B900-AP Consultation Replies
Not yet archived · Original link
B999 - Representation Letter
Archived · Original link
B610-Supporting information
Archived · Original link
B020-Plan
Archived · Original link
B900-AP Consultation Replies
Archived · Original link
B020-Plan
Archived · Original link

Have your say

Your comment matters. Councils must consider every representation that raises material planning considerations.

Write a comment