← Uttlesford District Council

Status

Awaiting decision Listed building
Received
Last month
New homes
0

Full proposal

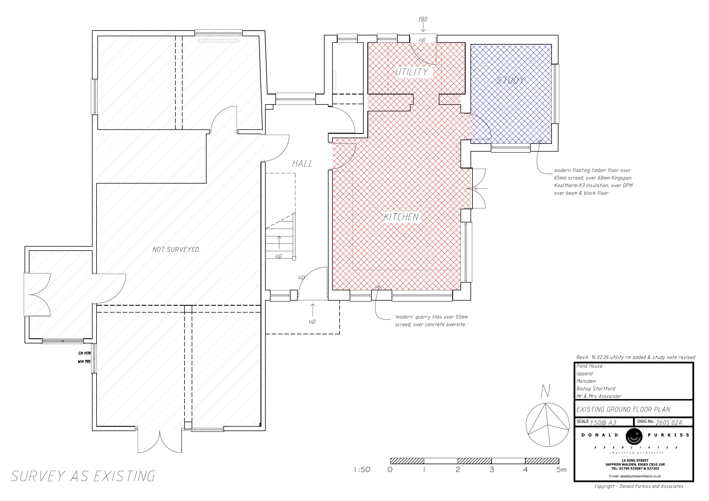
Remove existing 'modern' tiles, floating timber floors and screed from kitchen, utility room and study area of main dwelling. Replace with new liquid/flow screed (including underfloor heating pipes), new tiles and flooring. Remove existing modern radiators and associated pipework.

Documents

Correspondence
Archived · Original link
B610-Supporting information
Archived · Original link
B610-Supporting information
Archived · Original link
B610-Supporting information
Archived · Original link
B020-Plan
Archived · Original link

Have your say

Your comment matters. Councils must consider every representation that raises material planning considerations.

Write a comment