← Uttlesford District Council

Status

Awaiting decision New housing
Received
Last month
New homes
10

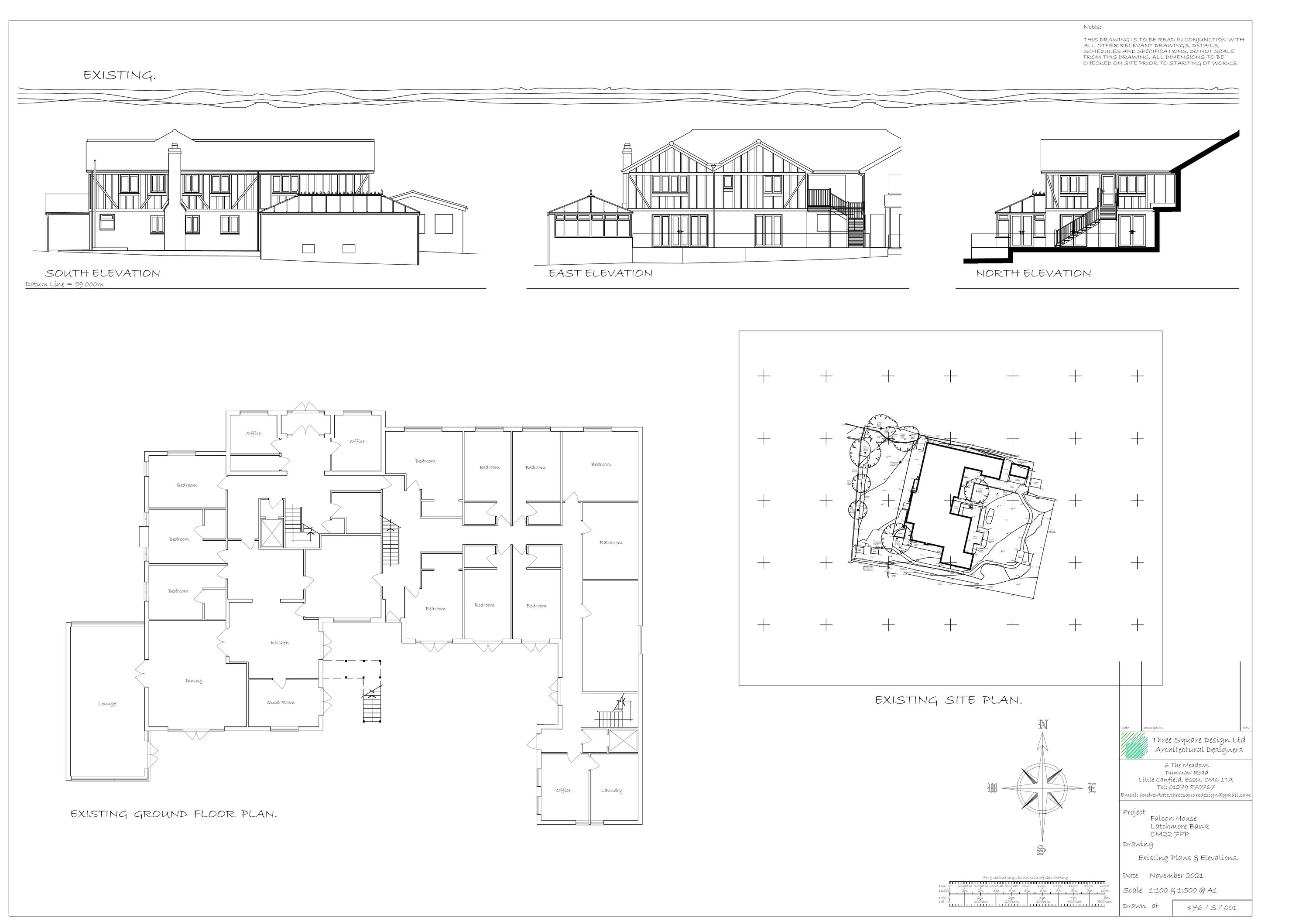
Full proposal

Proposed development of a residential block comprising 10 no. units as ancillary accommodation to existing care home

Documents

Correspondence
Archived · Original link
B610-Supporting information
Archived · Original link
B610-Supporting information
Archived · Original link
B610-Supporting information
Archived · Original link
BLUE OUTLINED LOCATION PLAN
B020-Plan
Not yet archived · Original link
B610-Supporting information
Archived · Original link
B610-Supporting information
Archived · Original link
B999 - Representation Letter
Archived · Original link

Have your say

Your comment matters. Councils must consider every representation that raises material planning considerations.

Write a comment