← Uttlesford District Council

Status

Awaiting decision Listed building
Received
Last month
New homes
1

Full proposal

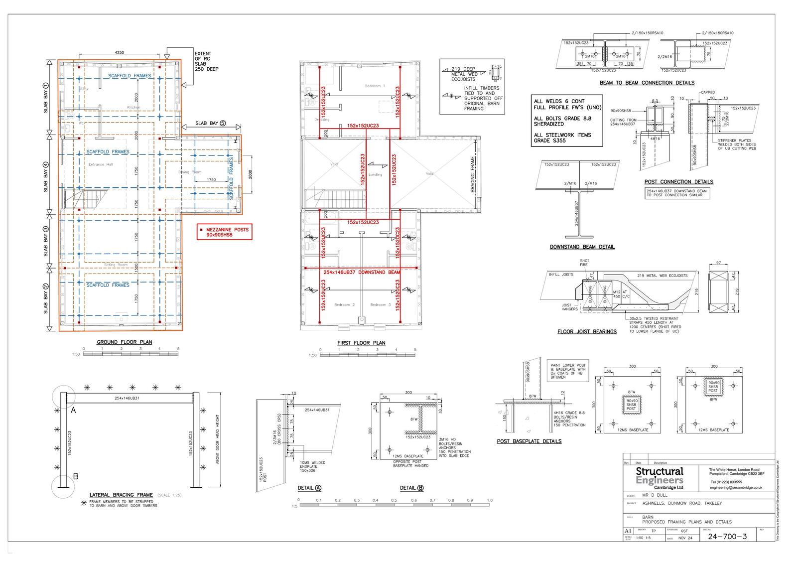
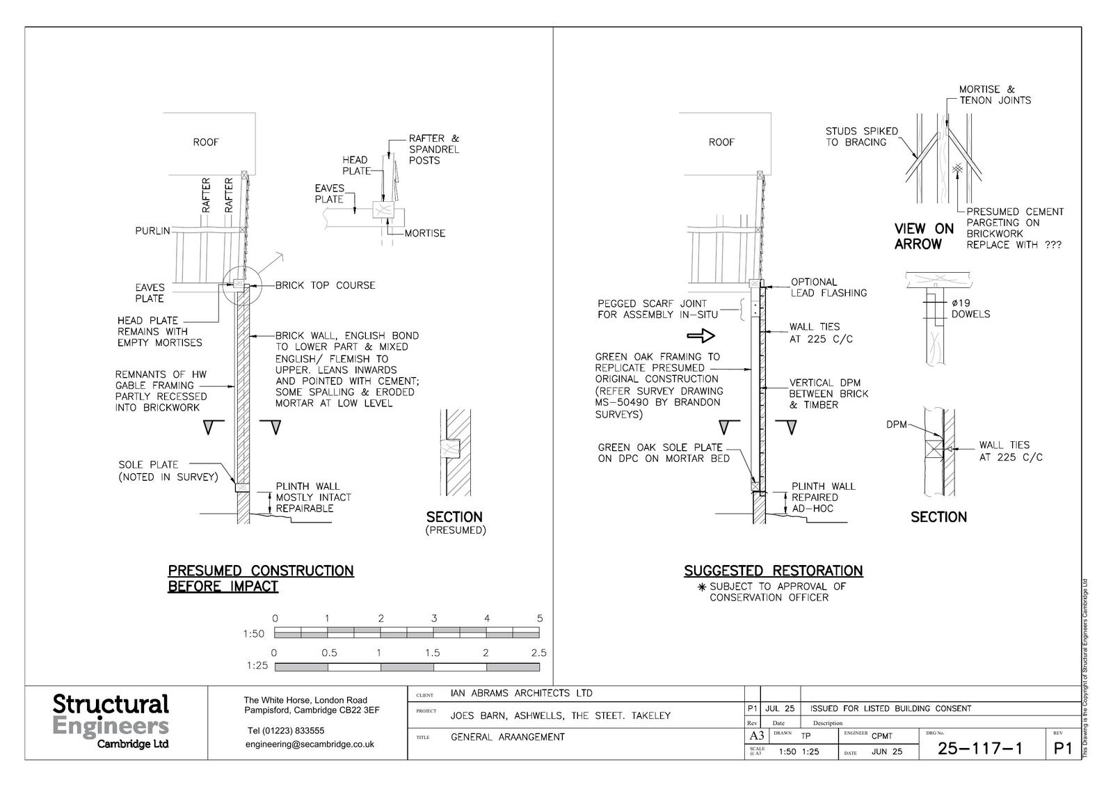
Conversion of barn to 1 no. dwelling and reinstatement of destroyed brickwork/framing to the gabled front elevation of barn facing Takeley Street following vehicle accident damage

Documents

Correspondence
Archived · Original link
B610-Supporting information
Archived · Original link
B610-Supporting information
Archived · Original link
B610-Supporting information
Archived · Original link
B610-Supporting information
Archived · Original link
B020-Plan
Archived · Original link
B610-Supporting information
Archived · Original link
B020-Plan
Archived · Original link
B900-AP Consultation Replies
Archived · Original link
B610-Supporting information
Archived · Original link
B610-Supporting information
Archived · Original link
B610-Supporting information
Archived · Original link
B610-Supporting information
Archived · Original link

Have your say

Your comment matters. Councils must consider every representation that raises material planning considerations.

Write a comment