← Uttlesford District Council

Status

Awaiting decision New housing
Received
28 days ago
New homes
2

Full proposal

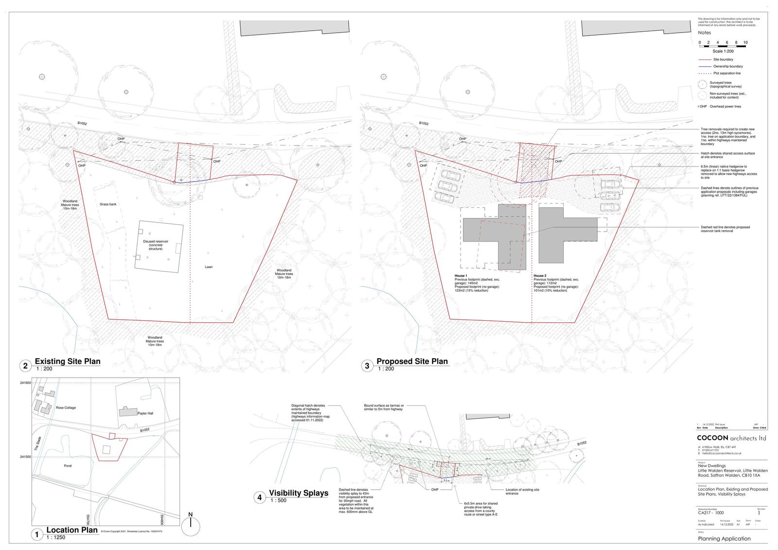
Planning in Principal for the erection of up to 2 dwelling houses

Documents

B610-Supporting information
Archived · Original link
B020-Plan
Archived · Original link
B020-Plan
Archived · Original link
B900-AP Consultation Replies
Archived · Original link
B610-Supporting information
Archived · Original link
B610-Supporting information
Archived · Original link
B610-Supporting information
Archived · Original link
B610-Supporting information
Archived · Original link
B610-Supporting information
Archived · Original link
B610-Supporting information
Archived · Original link
B610-Supporting information
Archived · Original link
B610-Supporting information
Archived · Original link
B610-Supporting information
Archived · Original link
B610-Supporting information
Archived · Original link
B020-Plan
Archived · Original link
B900-AP Consultation Replies
Archived · Original link

Have your say

Your comment matters. Councils must consider every representation that raises material planning considerations.

Write a comment