← Vale of Glamorgan Council

Status

Pending House extension
Received
Not recorded
New homes
0

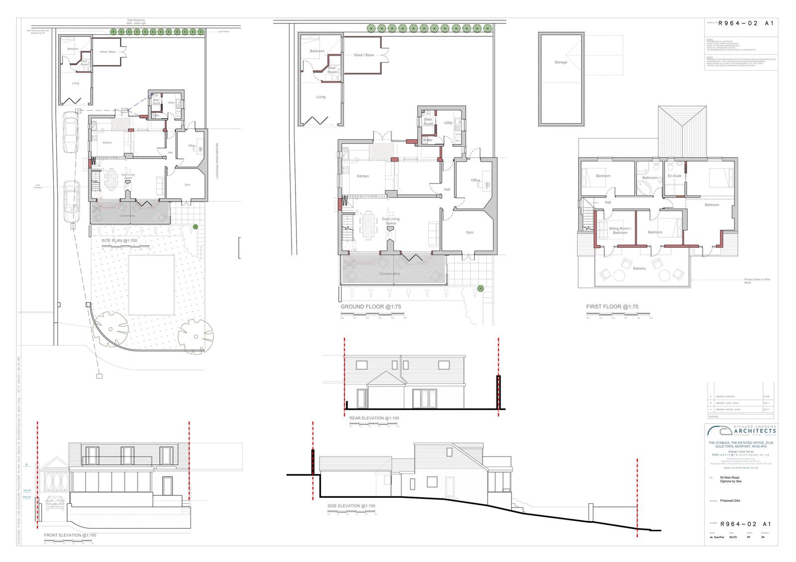
Full proposal

Alteration to an existing house with a new flat roof balcony area, open plan layout and re-thermalisation of an out-building to become a 1 bed annexe and a storage room attached.

Documents

Document
Archived · Original link
Document
Archived · Original link
Document
Archived · Original link
Document
Archived · Original link
Document
Archived · Original link
Document
Archived · Original link
Document
Archived · Original link
Document
Archived · Original link

Have your say

Your comment matters. Councils must consider every representation that raises material planning considerations.

Write a comment