← Vale of Glamorgan Council

Status

Pending House extension
Received
Not recorded
New homes
0

Full proposal

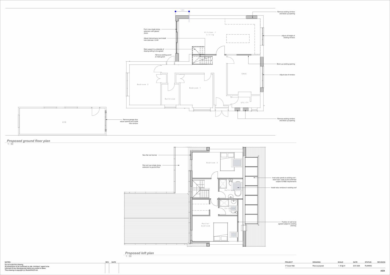
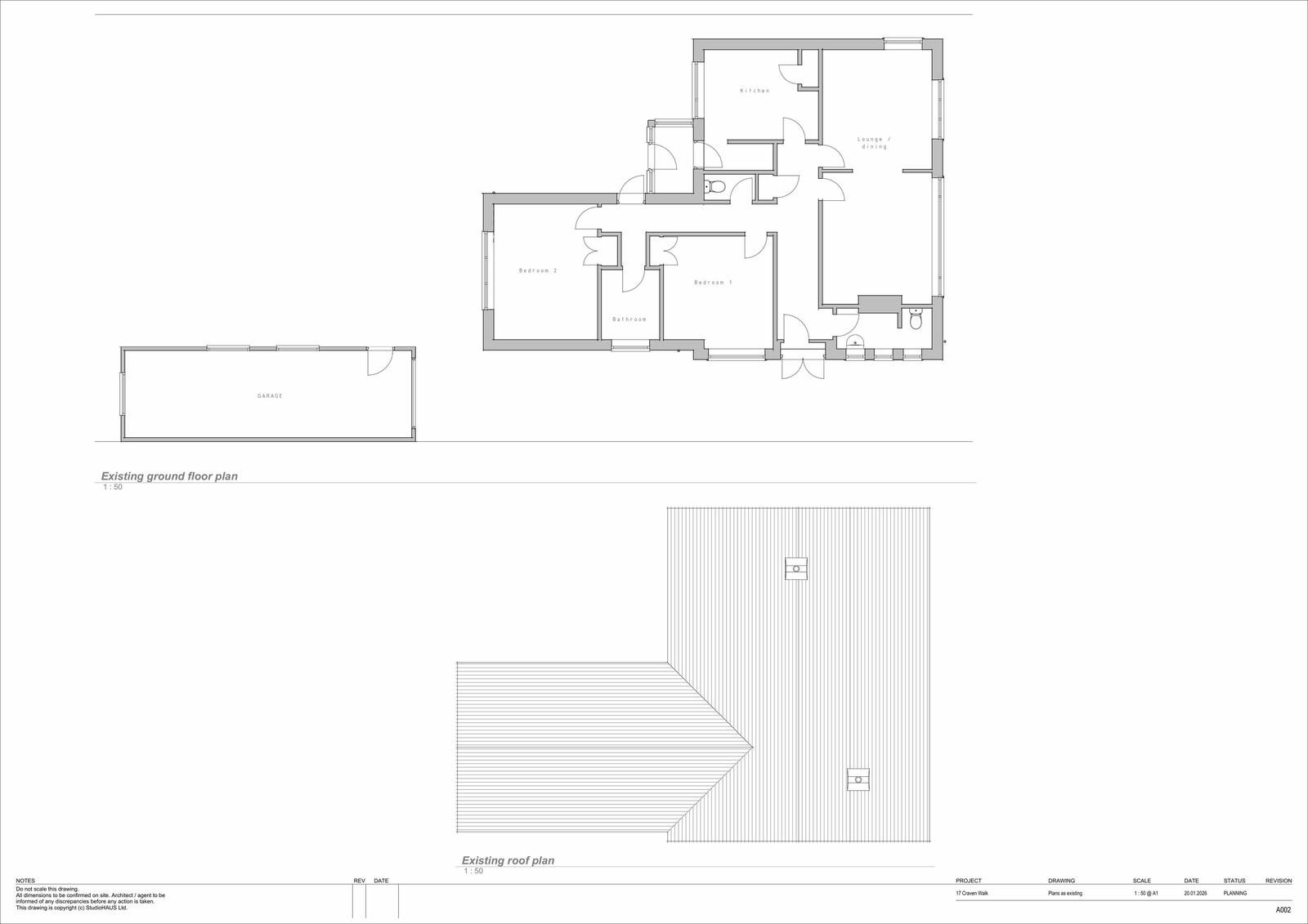
Loft conversion with rear dormer, single storey rear extension, installation of solar panels, internal remodelling plus all associated works including alterations to fenestration. Conversion of detached garage to gym.

Documents

Consultee Response
Document
Not yet archived · Original link
Document
Archived · Original link
Document
Archived · Original link
Document
Archived · Original link
Document
Archived · Original link
Document
Archived · Original link
Document
Archived · Original link
Document
Archived · Original link

Have your say

Your comment matters. Councils must consider every representation that raises material planning considerations.

Write a comment