← Vale of Glamorgan Council

Status

Pending House extension
Received
Not recorded
New homes
0

Full proposal

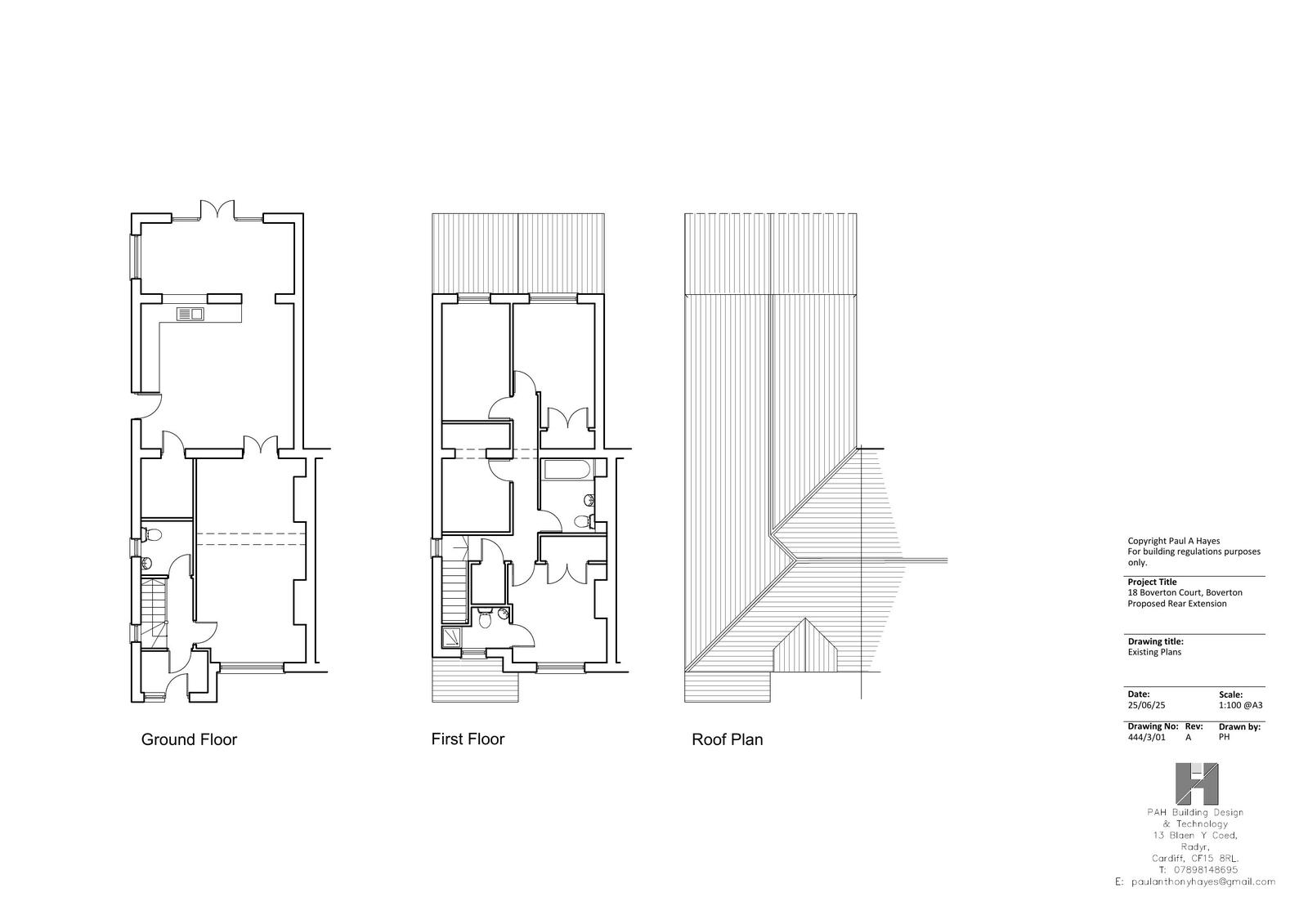
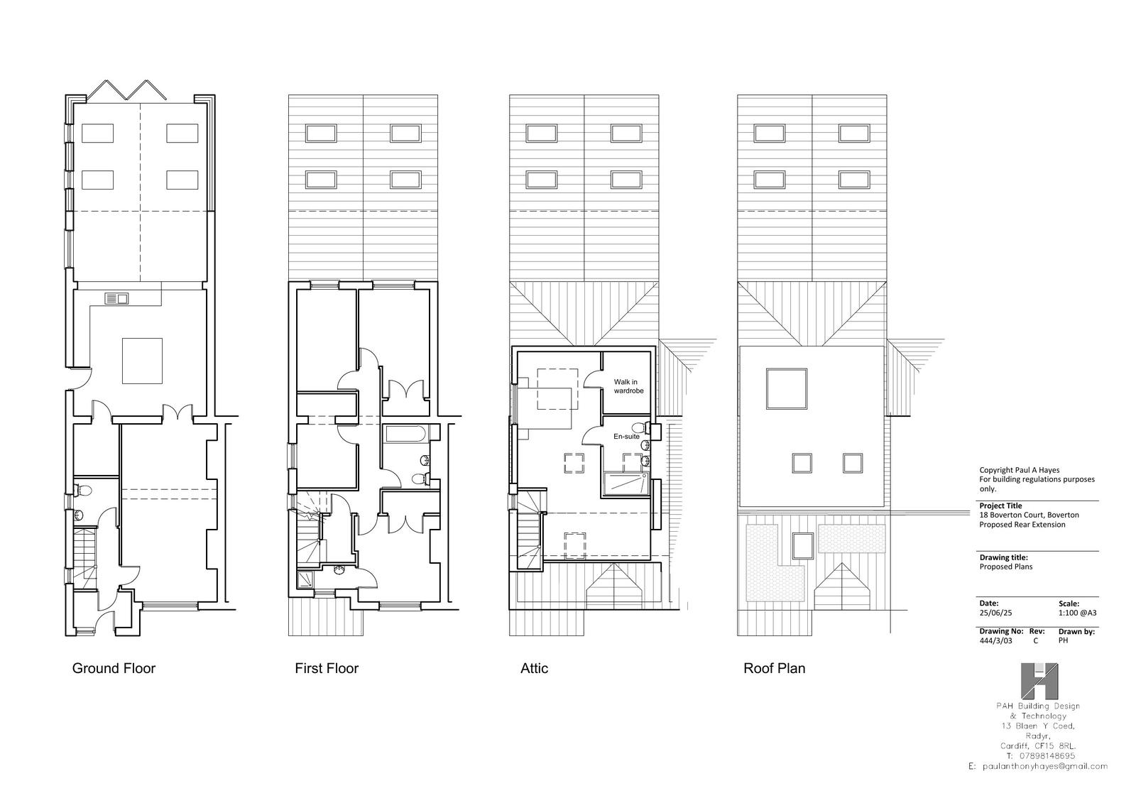
Single storey rear extension, & Dormer attic conversion with Hip to Gable.

Documents

Document
Archived · Original link
Document
Archived · Original link
Document
Archived · Original link
Document
Archived · Original link
Document
Archived · Original link
Consultee Response
Document
Not yet archived · Original link
Document
Archived · Original link
Document
Archived · Original link
Document
Archived · Original link
Document
Archived · Original link
Document
Archived · Original link
Document
Archived · Original link

Have your say

Your comment matters. Councils must consider every representation that raises material planning considerations.

Write a comment