← Wakefield Council

Status

Awaiting decision Change of use
Received
19 Aug 2025
New homes
0

Full proposal

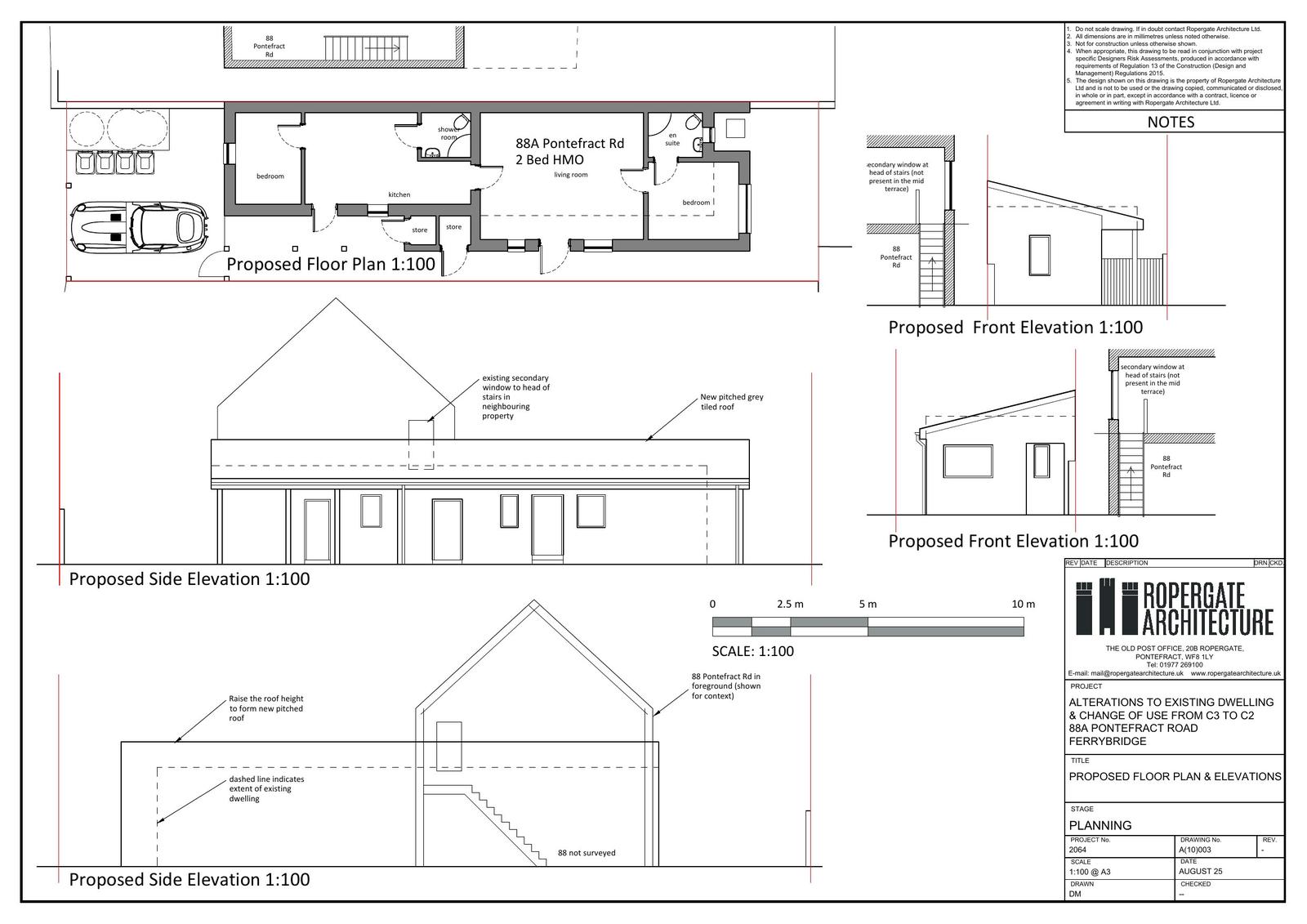
Change of use from dwelling to a 2 bed HMO and external alterations.

Documents

APPLICATIONFORMREDACTED
Application Form
Not yet archived · Original link
EXISTING PLANS
Superseded Drawing
Not yet archived · Original link
EXISTING PLANS
Drawing
Not yet archived · Original link
HIGHWAYS DEVELOPMENT MANAGEMENT WAKEFIELD COUNCIL
Consultee Comment
Not yet archived · Original link
LOCATION/BLOCK PLAN
Drawing
Not yet archived · Original link
Superseded Drawing
Archived · Original link
Drawing
Archived · Original link
Site Notice
Site Notice
Not yet archived · Original link

Have your say

Your comment matters. Councils must consider every representation that raises material planning considerations.

Write a comment