← Wakefield Council

Status

Awaiting decision Change of use
Received
17 Nov 2025
New homes
0

Full proposal

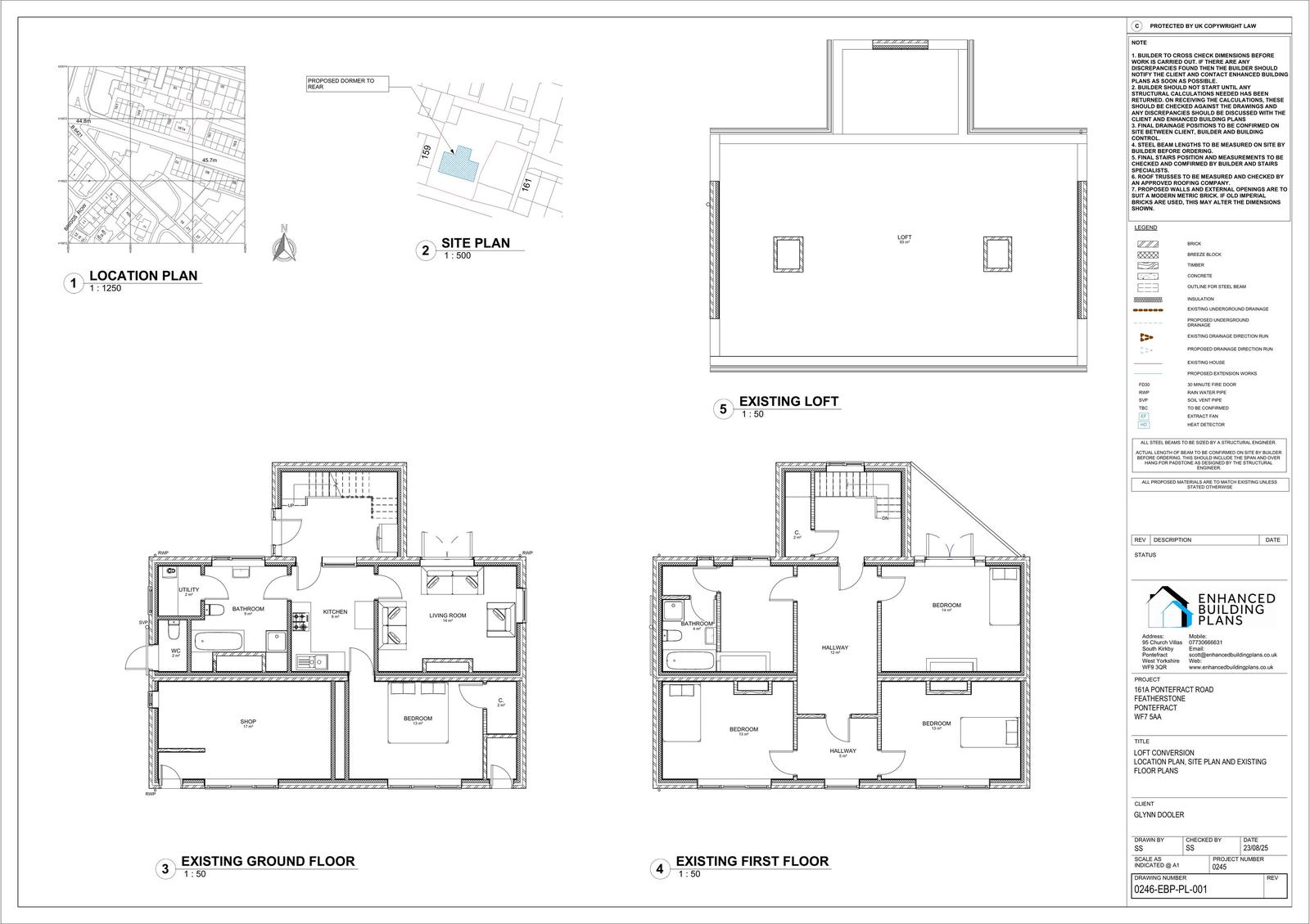
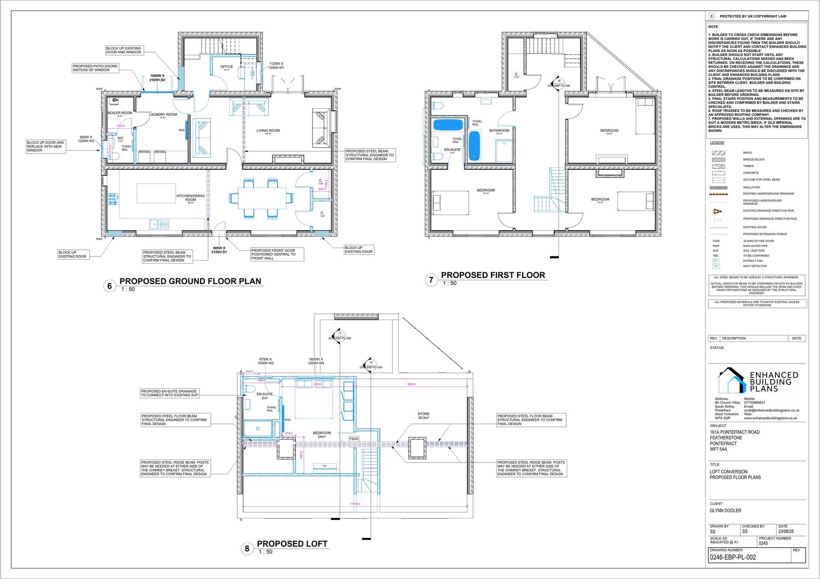
Change of use of flats/shop to a single dwelling with dormer to rear and external alterations

Documents

Application Form
Application Form
Not yet archived · Original link
APPLICATIONFORMREDACTED
Superseded Document
Not yet archived · Original link
EXISTING AND PROPOSED ELEVATIONS SHEET 1
Drawing
Not yet archived · Original link
EXISTING AND PROPOSED ELEVATIONS SHEET 1
Superseded Drawing
Not yet archived · Original link
EXISTING AND PROPOSED ELEVATIONS SHEET 2
Drawing
Not yet archived · Original link
EXISTING AND PROPOSED ELEVATIONS SHEET 2
Superseded Drawing
Not yet archived · Original link
Drawing
Archived · Original link
Superseded Drawing
Archived · Original link
Site Notice
Site Notice
Not yet archived · Original link

Have your say

Your comment matters. Councils must consider every representation that raises material planning considerations.

Write a comment