Application
25/02204/FUL
Wakefield Council · IDOX
Status
Awaiting decision
Received
25 Nov 2025
New dwellings
n/a
What you can do
Take Action
Make your voice heard. Authorities need to hear from people who support new homes.
Full Proposal
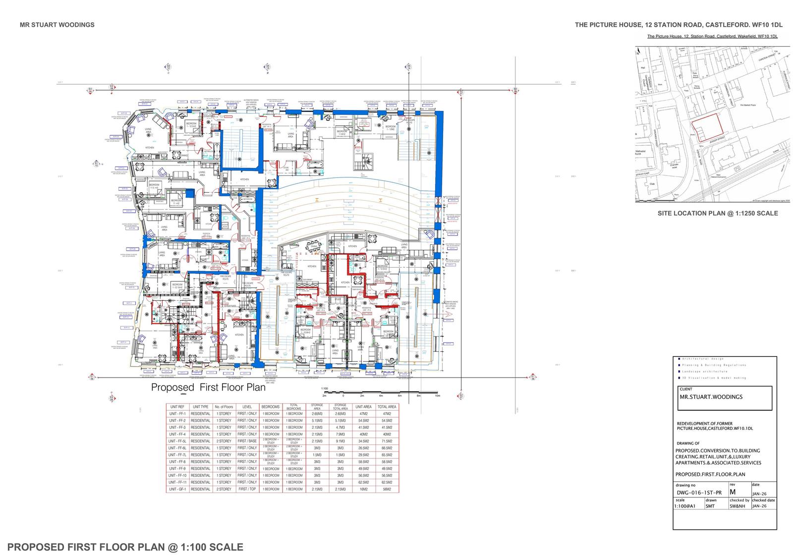
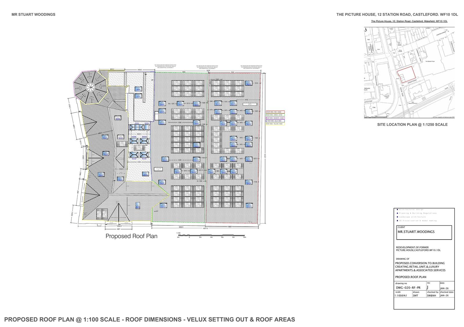
Conversion of former picture house to 1no. commercial unit and 37 residential apartments
Detail pages
- View live detail on council site
- No archived detail page available.
Documents
APPLICATIONFORMREDACTED
Application Form
Not downloaded
· Council link
ELEVATIONS-1
Drawing
Not downloaded
· Council link
ELEVATIONS-2
Drawing
Not downloaded
· Council link
ELEVATIONS-3
Drawing
Not downloaded
· Council link
ELEVATIONS-4
Drawing
Not downloaded
· Council link
ENERGY STATEMENT
Supporting Documentation
Not downloaded
· Council link
FIRST.FLOOR.PLAN-DIMS21-01
Drawing
Not downloaded
· Council link
GROUND.FLOOR.PLAN-DIMS21-01
Drawing
Not downloaded
· Council link
HEALTH IMPACT ASSESSMENT
Supporting Documentation
Not downloaded
· Council link
PLANNING D AND A AND HERITAGE STATEMENT -REVISED SCHEME
Planning Statement
Not downloaded
· Council link
ROOF.PLAN-10-12
Drawing
Not downloaded
· Council link
SCHOOL PLACE PLANNING
Consultee Comment
Not downloaded
· Council link
SCHOOL PLACE PLANNING
Consultee Comment
Not downloaded
· Council link
SECOND.FLOOR.PLAN-DIMS18-02
Drawing
Not downloaded
· Council link
THIRD.FLOOR.PLAN-DIMS24-02
Drawing
Not downloaded
· Council link