← Wakefield Council

Status

Awaiting decision House extension
Received
Last month
New homes
0

Full proposal

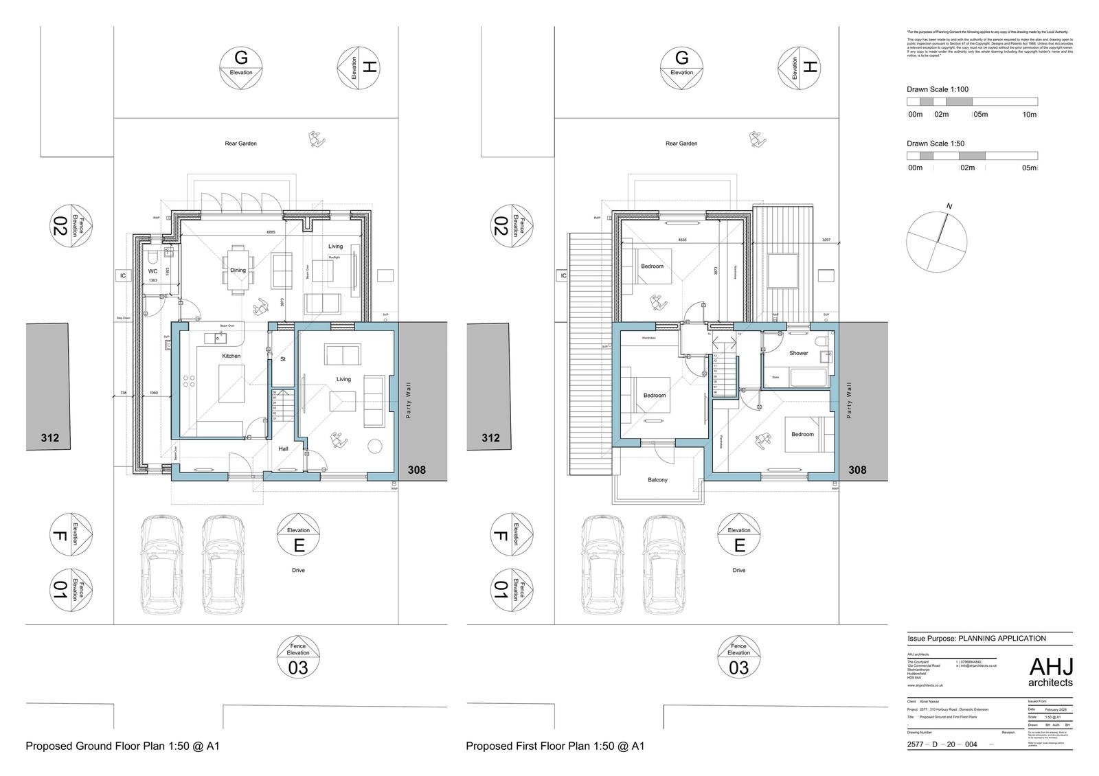
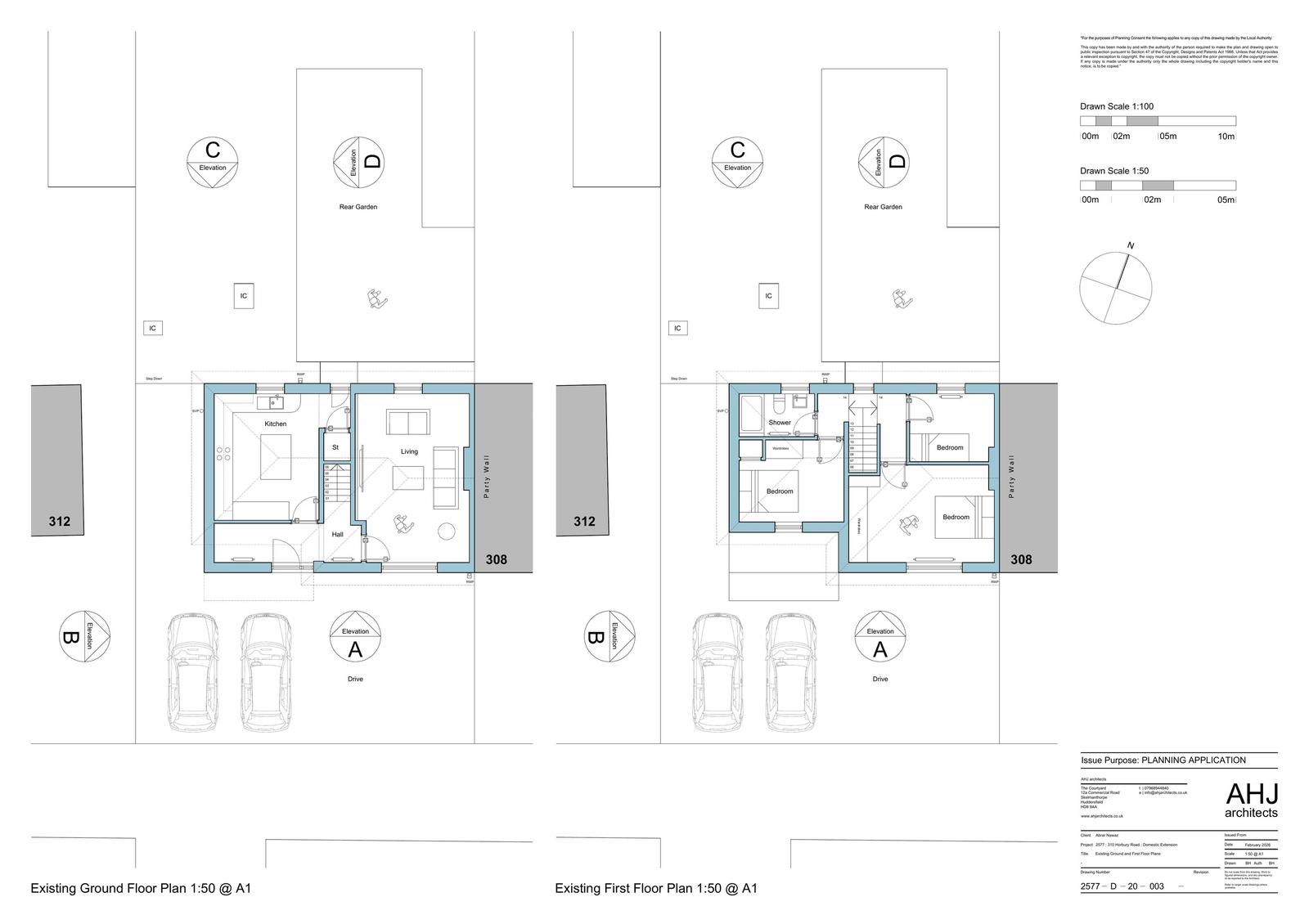
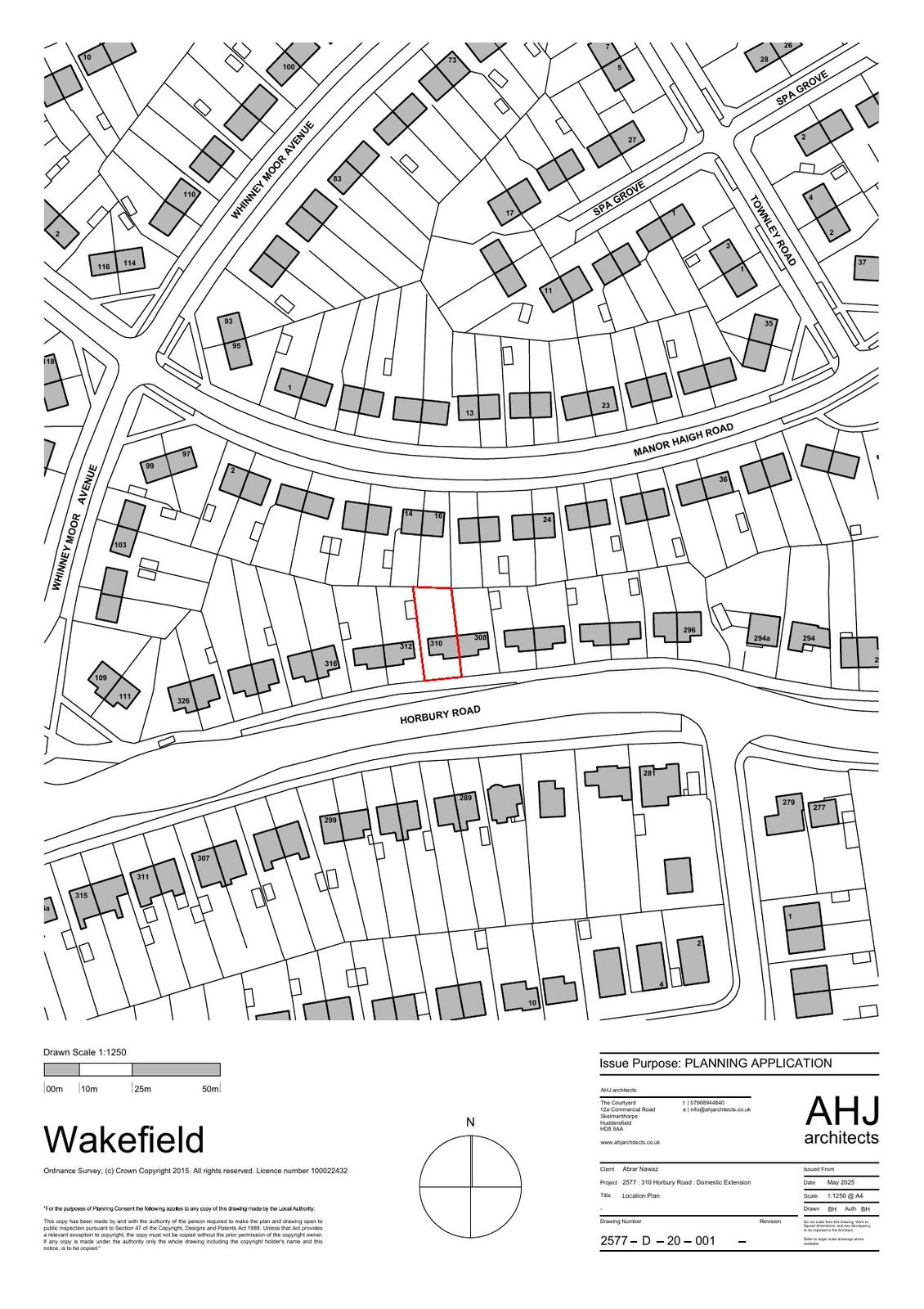
Single storey extension to side, part two, part single storey extensions to rear, balcony to front, timber cladding to dwelling and boundary fencing to front and side (part-retrospective)

Have your say

Your comment matters. Councils must consider every representation that raises material planning considerations.

Write a comment