← Back to London Borough of Waltham Forest
Application
250099
London Borough of Waltham Forest · COUNCIL_DIRECT
Status
Unknown status
Received
n/a
New dwellings
n/a
What you can do
Take Action
Make your voice heard. Authorities need to hear from people who support new homes.
Summary
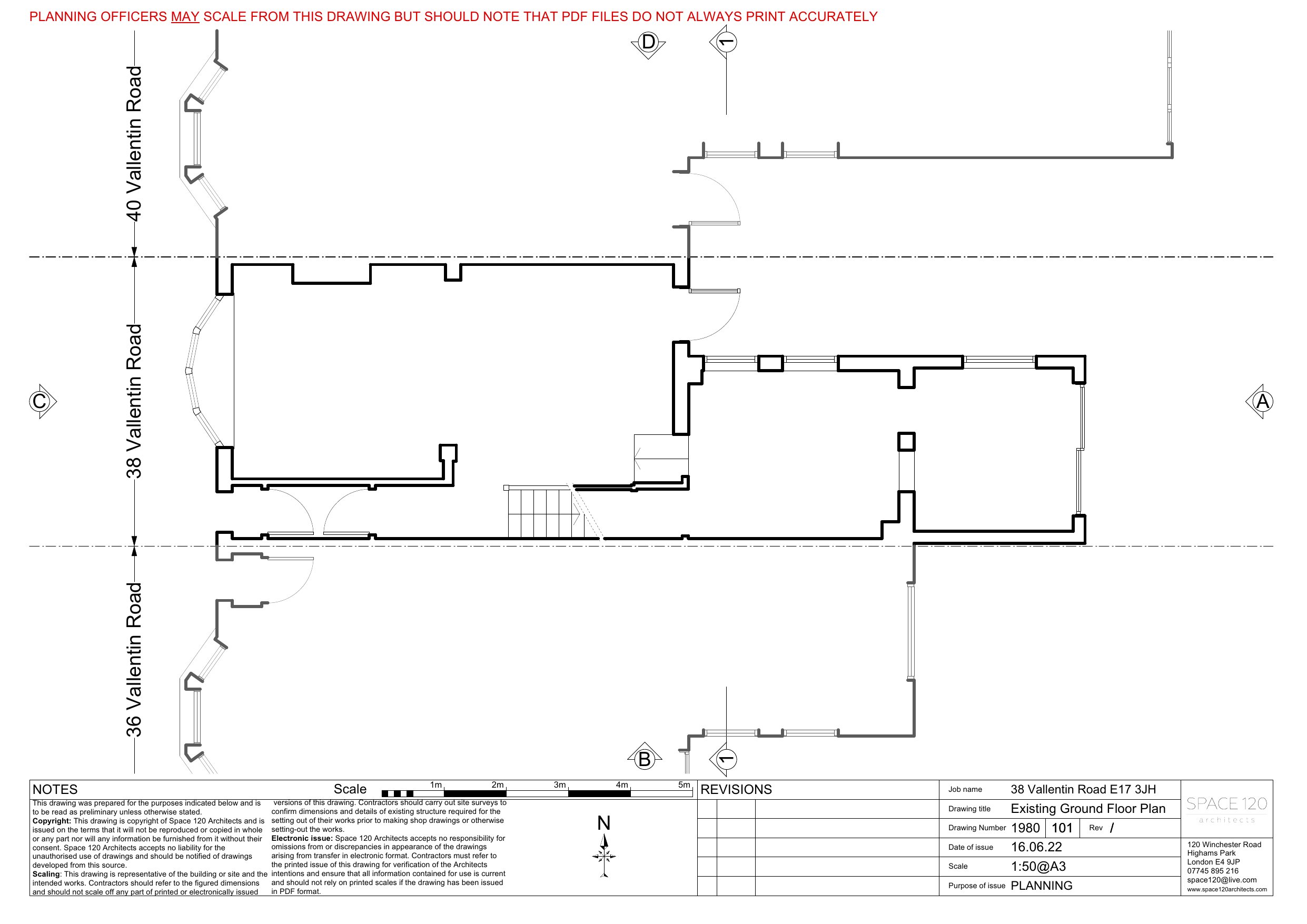
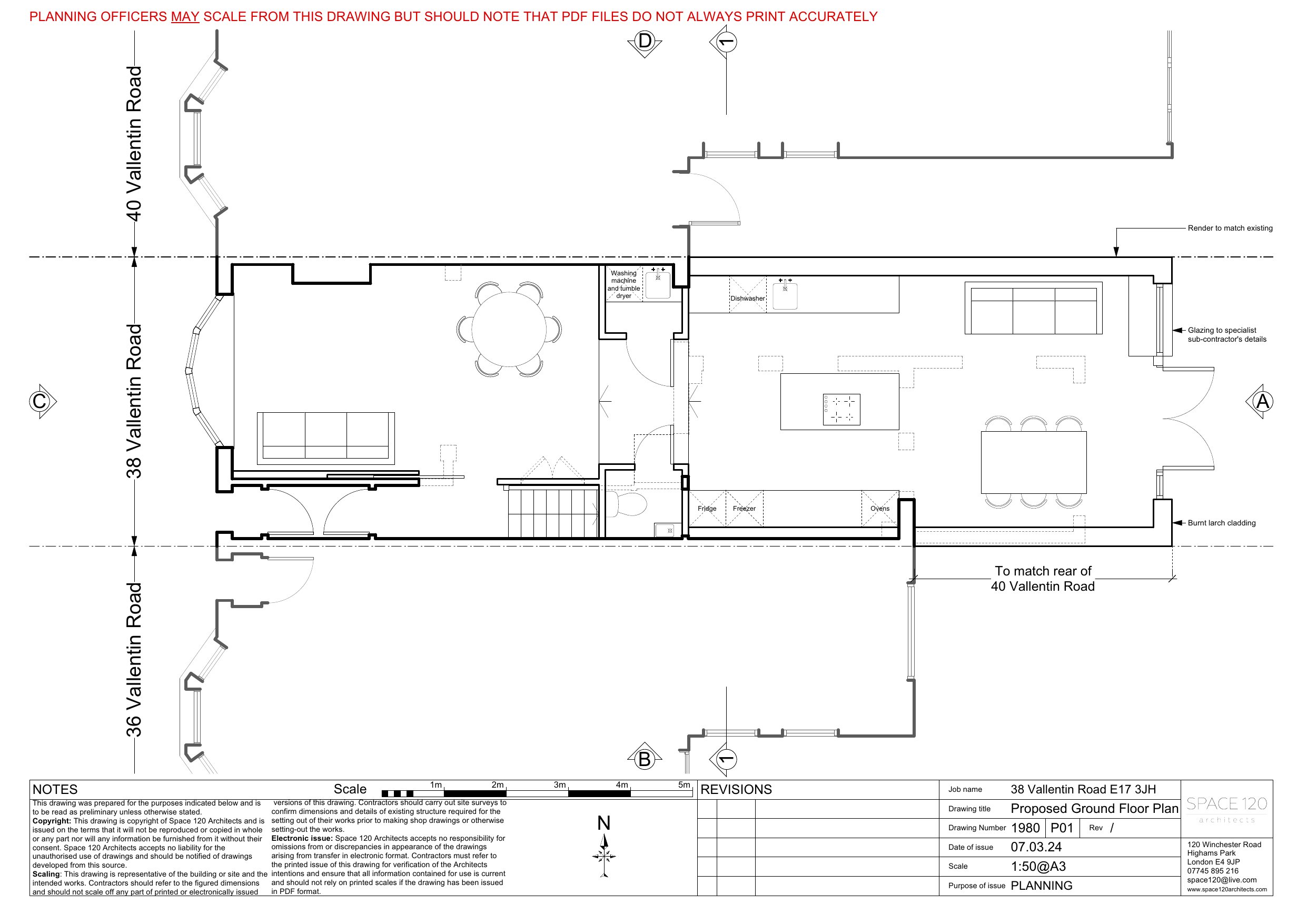
Single-storey wraparound rear extension.
Full Proposal
Construction of a single storey wraparound rear extension.
Detail pages
- View live detail on council site
- No archived detail page available.
Documents
1980 Fire safety strategy exemption statement.pdf
n/a
Not downloaded
· Council link
1980 GA Existing.pdf
n/a
Not downloaded
· Council link
1980 GA Proposed.pdf
n/a
Not downloaded
· Council link
1980.BP.pdf
n/a
Not downloaded
· Council link
ApplicationFormRedacted.pdf
n/a
Not downloaded
· Council link
LocationPlan.pdf
n/a
Not downloaded
· Council link
Officer Report
Officer Report
Not downloaded
· Council link
Planning Decision Notice - General - Approve (with Conditions & Informatives)
Decision Notice
Not downloaded
· Council link
Validation Checklist 38 Vallentin Road E17 3JH.pdf
n/a
Not downloaded
· Council link