← London Borough of Waltham Forest

Status

Pending House extension
Received
Not recorded
New homes
0

Full proposal

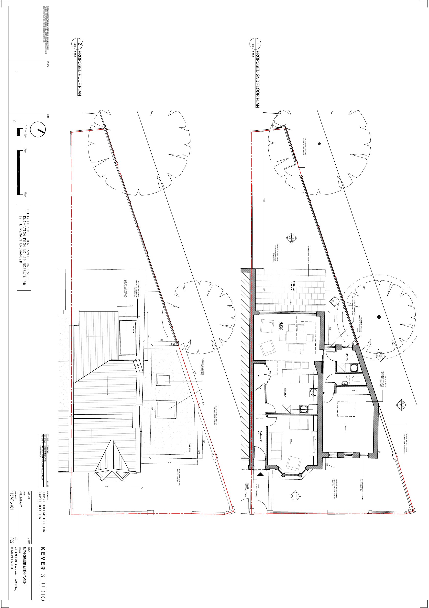
Construction of a single storey wraparound side and rear extension.

Documents

Application form (redacted)
Application Forms/Certificates
Not yet archived · Original link
Arboricultural impact assessment
Supporting/Supplementary Info
Not yet archived · Original link
Decision notice
Decision Notice
Not yet archived · Original link
Existing elevations
Plans
Not yet archived · Original link
Existing plans
Plans
Not yet archived · Original link
Existing sections
Plans
Not yet archived · Original link
Flood map for planning
Supporting/Supplementary Info
Not yet archived · Original link
Officer Report
Officer Report
Not yet archived · Original link
Planning fire safety strategy
Supporting/Supplementary Info
Not yet archived · Original link
Proposed elevations (revised)
Plans (Amended)
Not yet archived · Original link
Plans
Archived · Original link
Proposed sections
Plans
Not yet archived · Original link
Plans
Archived · Original link
superseded - Proposed elevations
Plans
Not yet archived · Original link

Have your say

Your comment matters. Councils must consider every representation that raises material planning considerations.

Write a comment