← Back to Warwick District Council
Application
W/25/1442
Warwick District Council · IDOX
Status
Registered
Received
15 Oct 2025
New dwellings
n/a
What you can do
Take Action
Make your voice heard. Authorities need to hear from people who support new homes.
Full Proposal
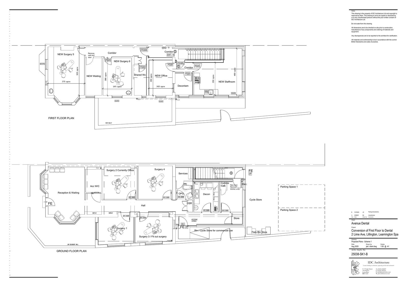
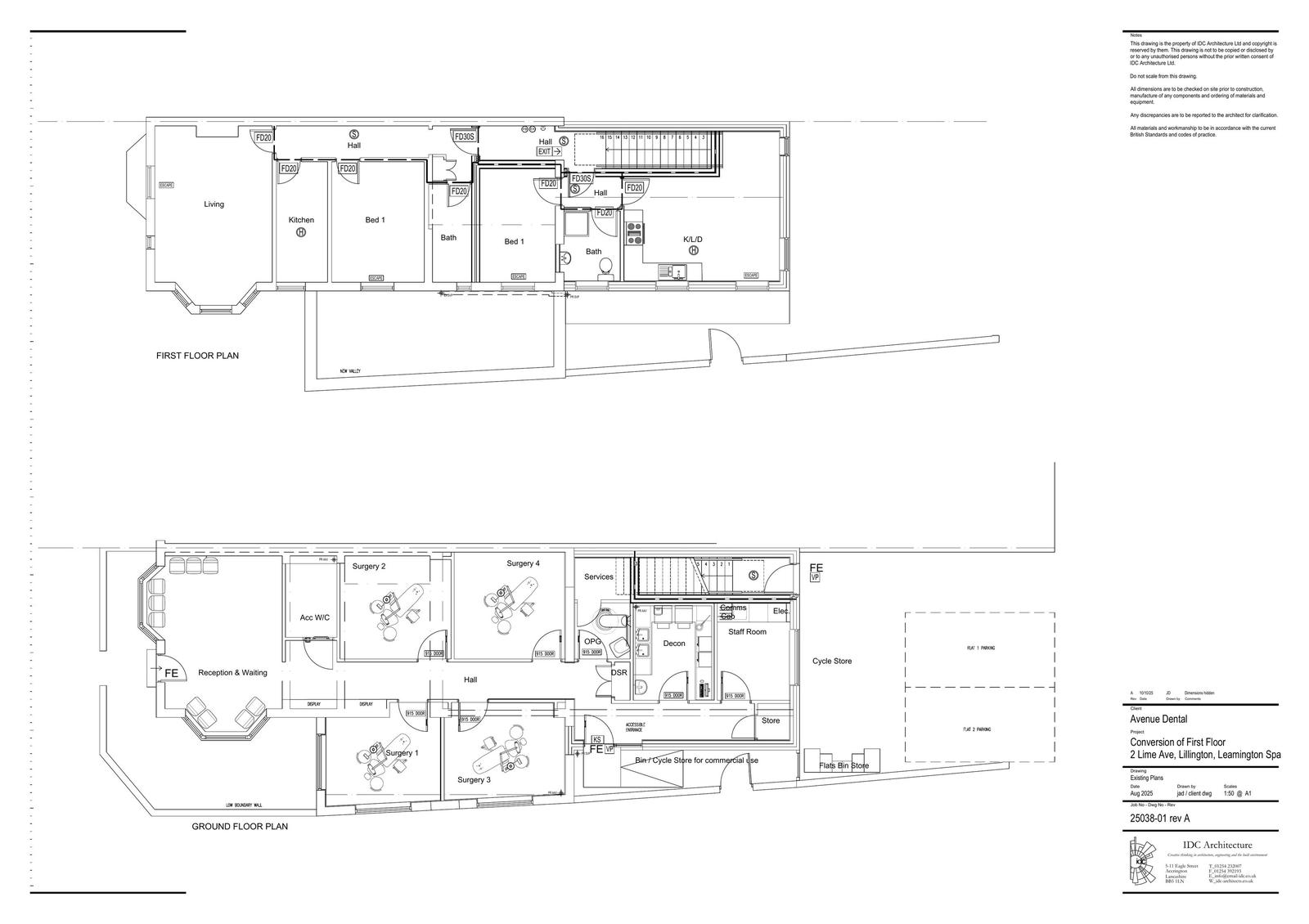
Change of use of first-floor from C3 dwellinghouse to E(e) dental surgery.
Detail pages
- View live detail on council site
- No archived detail page available.
Documents
Amended - Location Plan - parking
Site Location Plan
Not downloaded
· Council link
APPLICATION FORM REDACTED
Application Form
Not downloaded
· Council link
EXISTING FLOOR PLAN
Drawing
Not downloaded
· Council link
Heritage Statement v1
Supporting Report
Not downloaded
· Council link
LocationPlan144087180000.pdf
Site Location Plan
Not downloaded
· Council link
Parking Statement
Supporting Report
Not downloaded
· Council link
PROPOSED FLOOR PLAN
Drawing
Not downloaded
· Council link