W/25/1518
Warwick District Council
Status
Registered
House extension
Received
29 Oct 2025
New homes
0
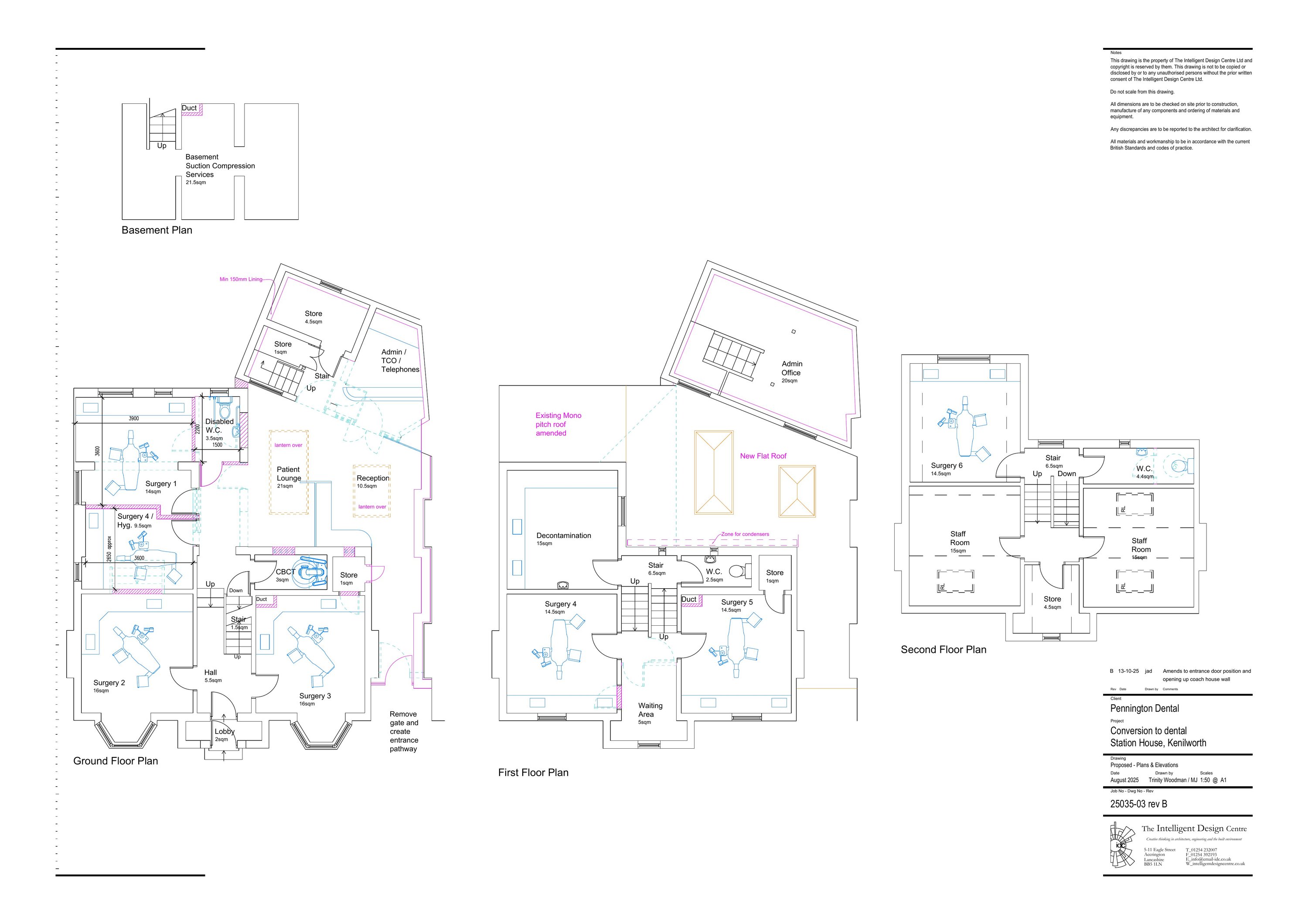
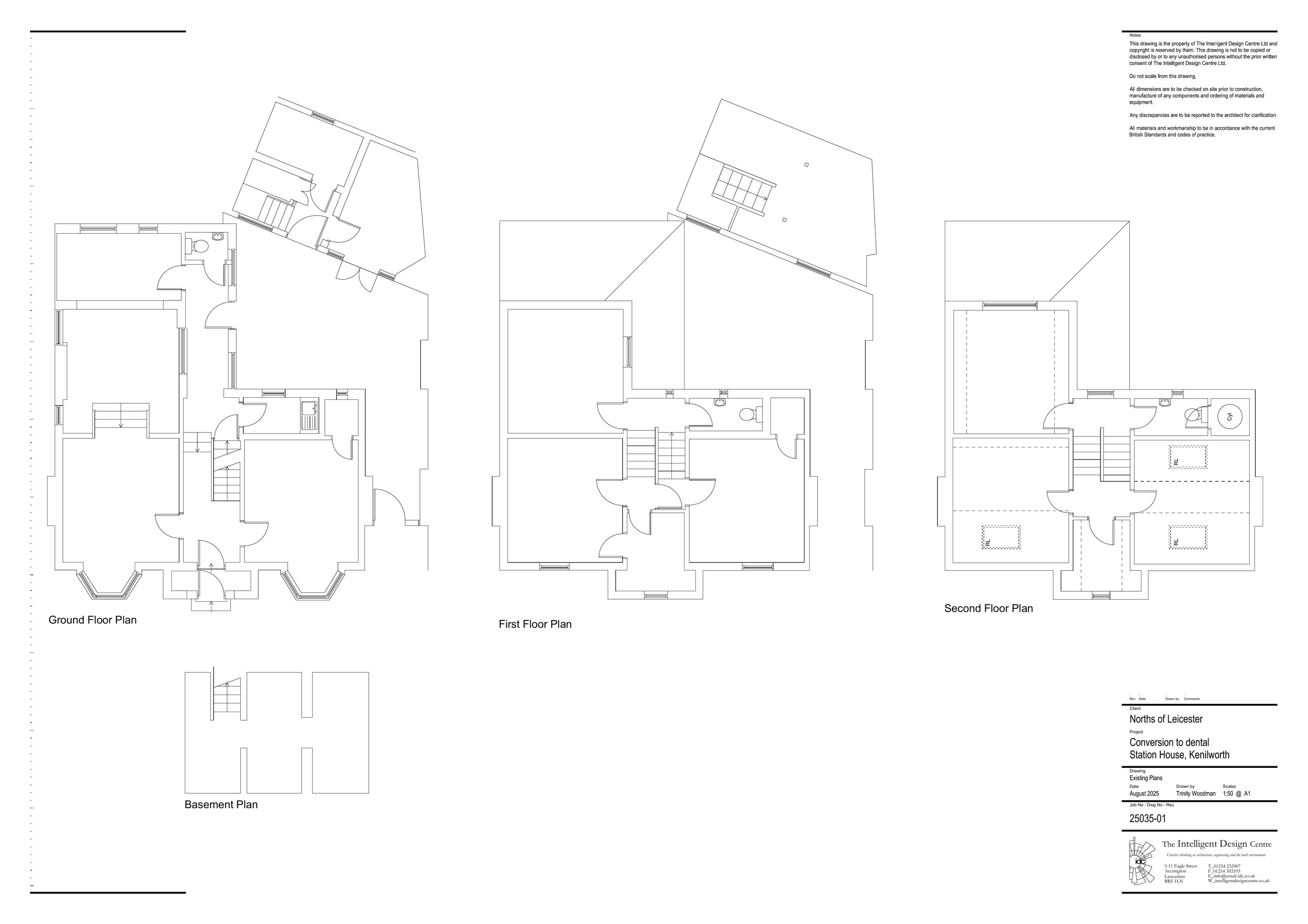
Full proposal
Erection of a single-storey side and rear courtard extension, addition of window to ground floor rear elevation, condenser units to rear elevation.
Documents
Have your say
Your comment matters. Councils must consider every representation that raises material planning considerations.