W/26/0066
Warwick District Council
Status
Registered
New housing
Received
19 Jan 2026
New homes
3
Full proposal
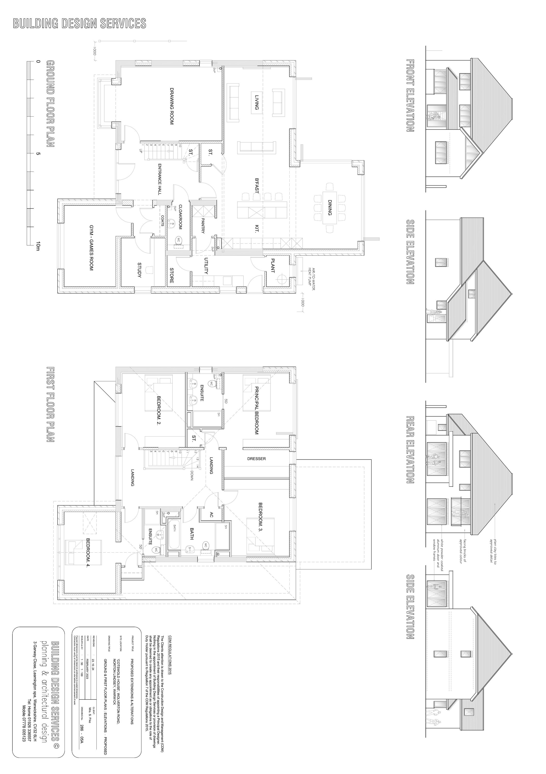
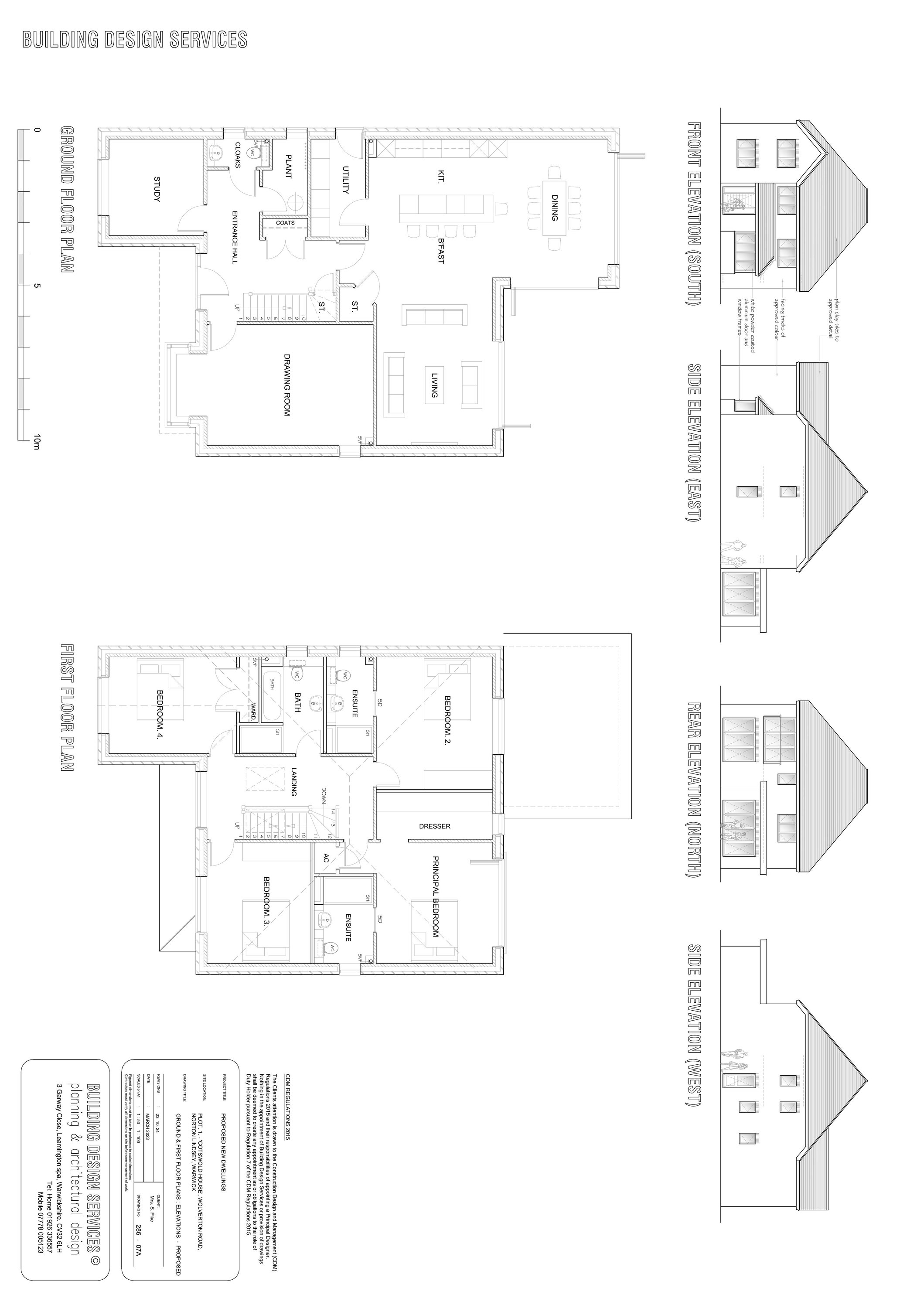
Re-development of the site comprising: Demolition of Norton Croft and other buildings on site, the erection of 3no. single dwellings, extensions and alterations to Cotswold House erection of detached garages and associated works and the installation of retractable and removable cricket nets.
Documents
ARBORICULTURAL IMPLICATIONS ASSESSMENT (TREE REPORT)
Supporting Report
Not yet archived
· Original link
MAINTENANCE PLAN CHECK LIST STEEL BALL STOP SYSTEM
Supporting Report
Not yet archived
· Original link
PLANNING DESIGN ACCCESS AND HERITAGE ADDENDUM STATEMENT
Supporting Report
Not yet archived
· Original link
PLANNING DESIGN ACCCESS AND HERITAGE STATEMENT -APPENDIX 2 -
Supporting Report
Not yet archived
· Original link
Have your say
Your comment matters. Councils must consider every representation that raises material planning considerations.