← Warwick District Council

Status

Unknown House extension
Received
19 Jan 2026
New homes
0

Full proposal

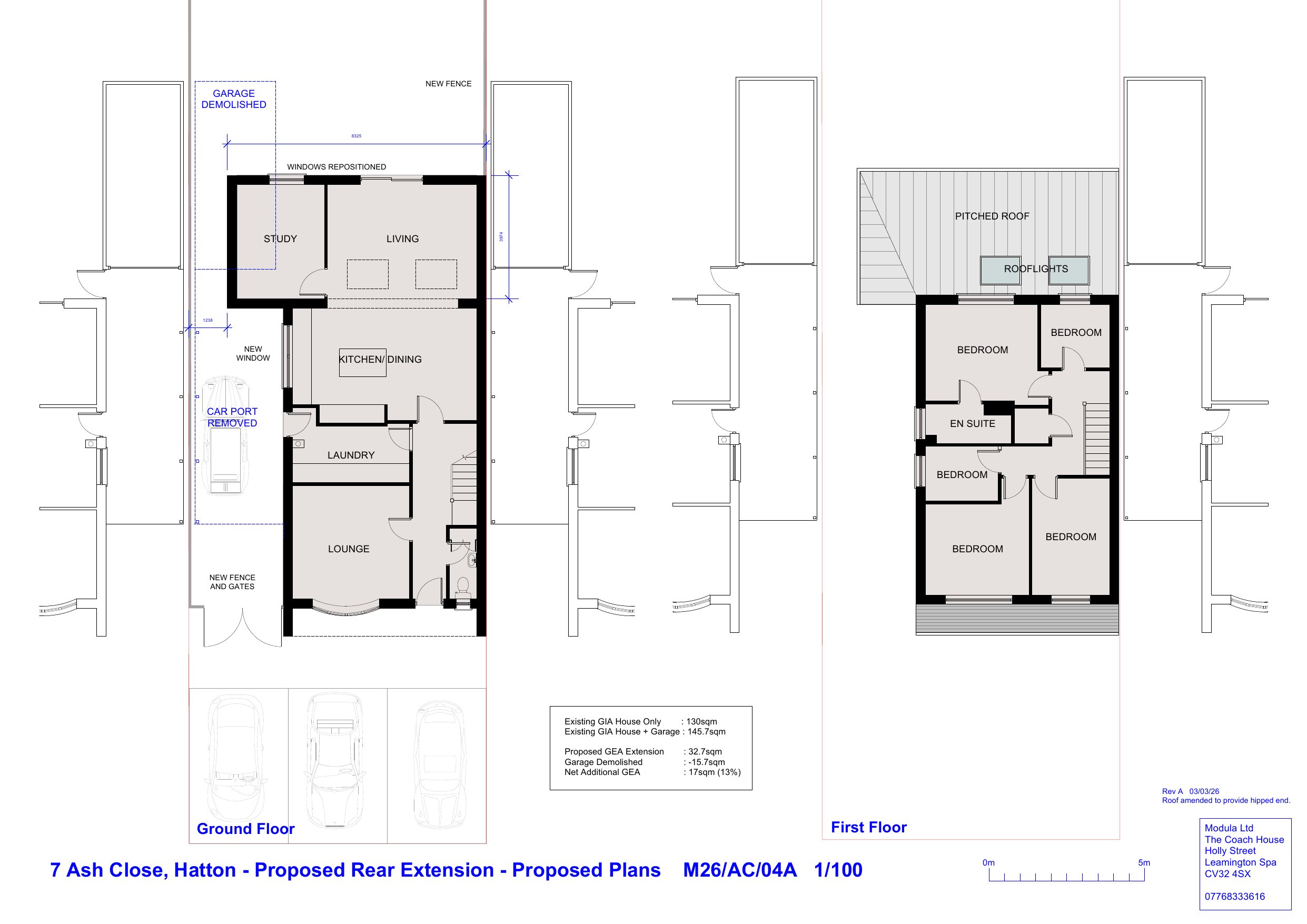
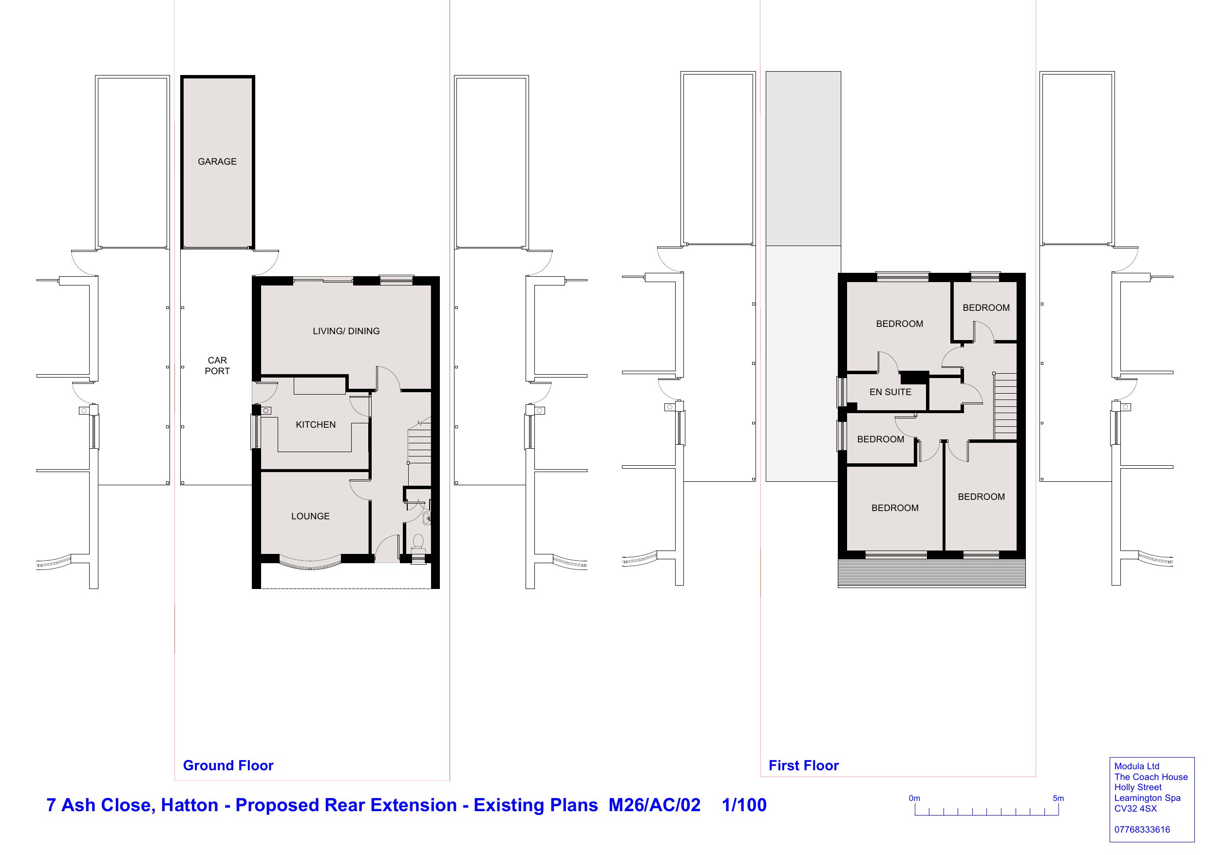
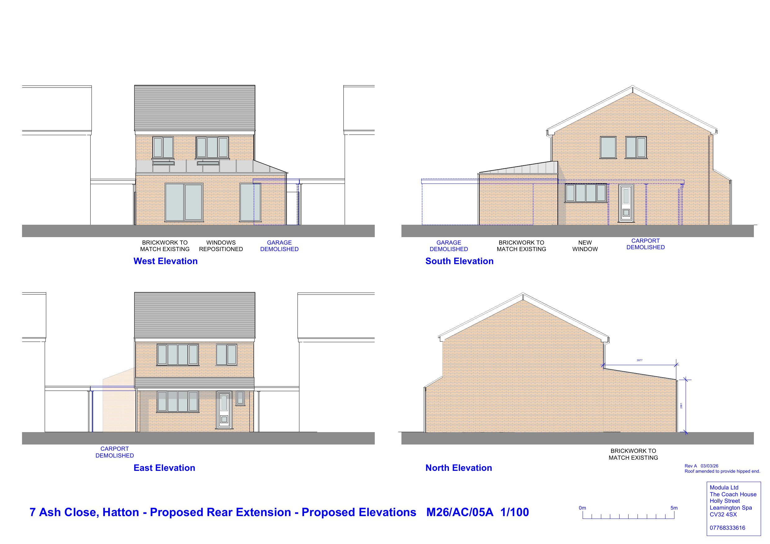
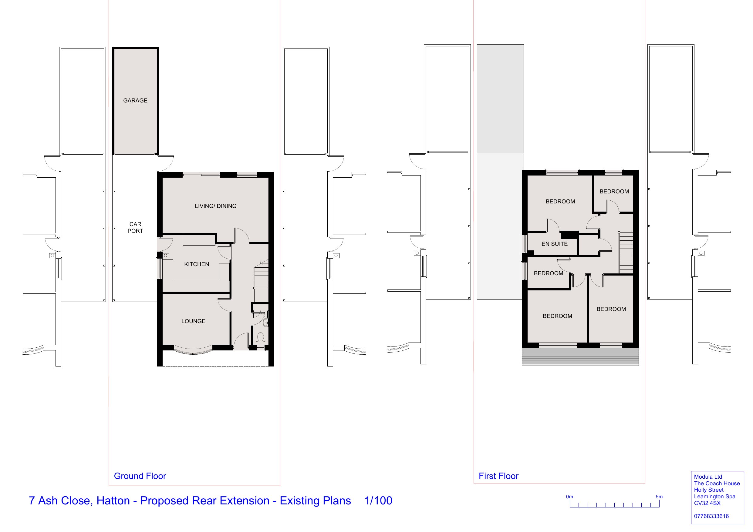
Demolition of garage and car port, extension to the rear of the property, change to fenestration and all associated works.

Documents

Supporting Report
Archived · Original link
Revised Drawing
Archived · Original link
Superseded Drawing
Archived · Original link
Superseded Drawing
Archived · Original link
Revised Drawing
Archived · Original link
Revised Drawing
Archived · Original link
Superseded Drawing
Archived · Original link
Supporting Report
Archived · Original link
Superseded Drawing
Archived · Original link
Superseded Drawing
Archived · Original link
Revised Drawing
Archived · Original link
Superseded Drawing
Archived · Original link
Revised Drawing
Archived · Original link
Superseded Drawing
Archived · Original link

Have your say

Your comment matters. Councils must consider every representation that raises material planning considerations.

Write a comment