← Waverley Borough Council

Status

PENDING Change of use
Received
Not recorded
New homes
1

Full proposal

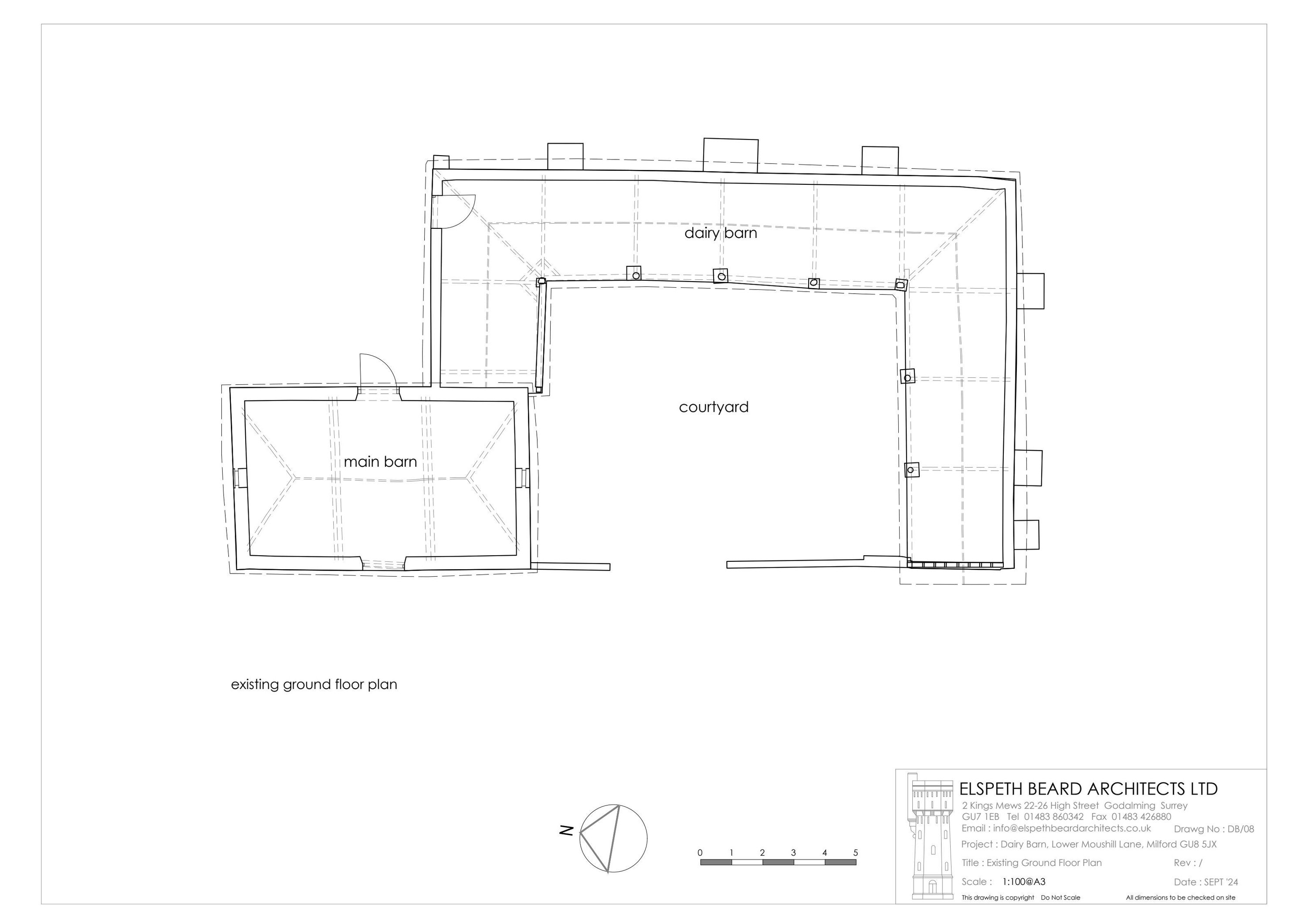
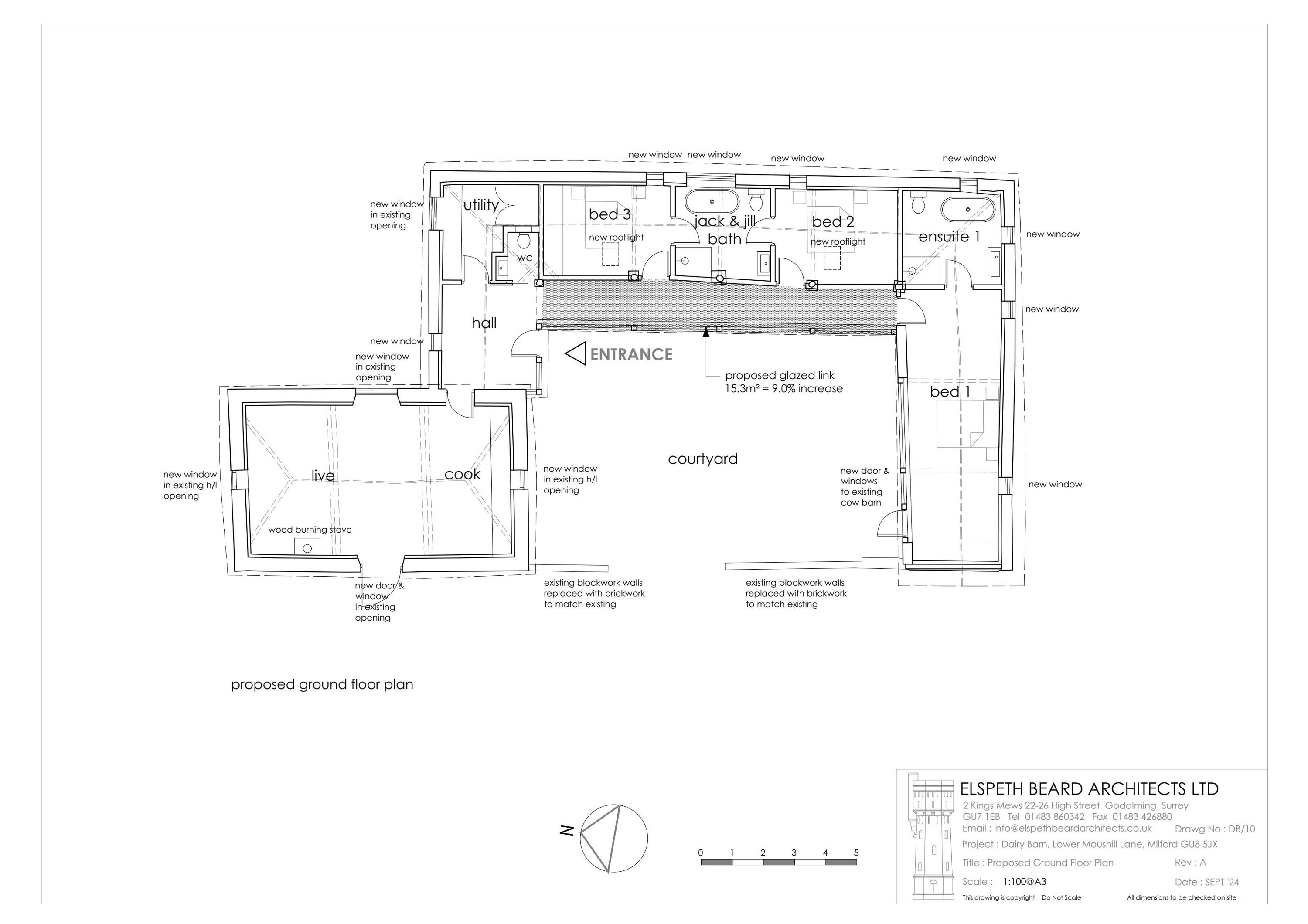
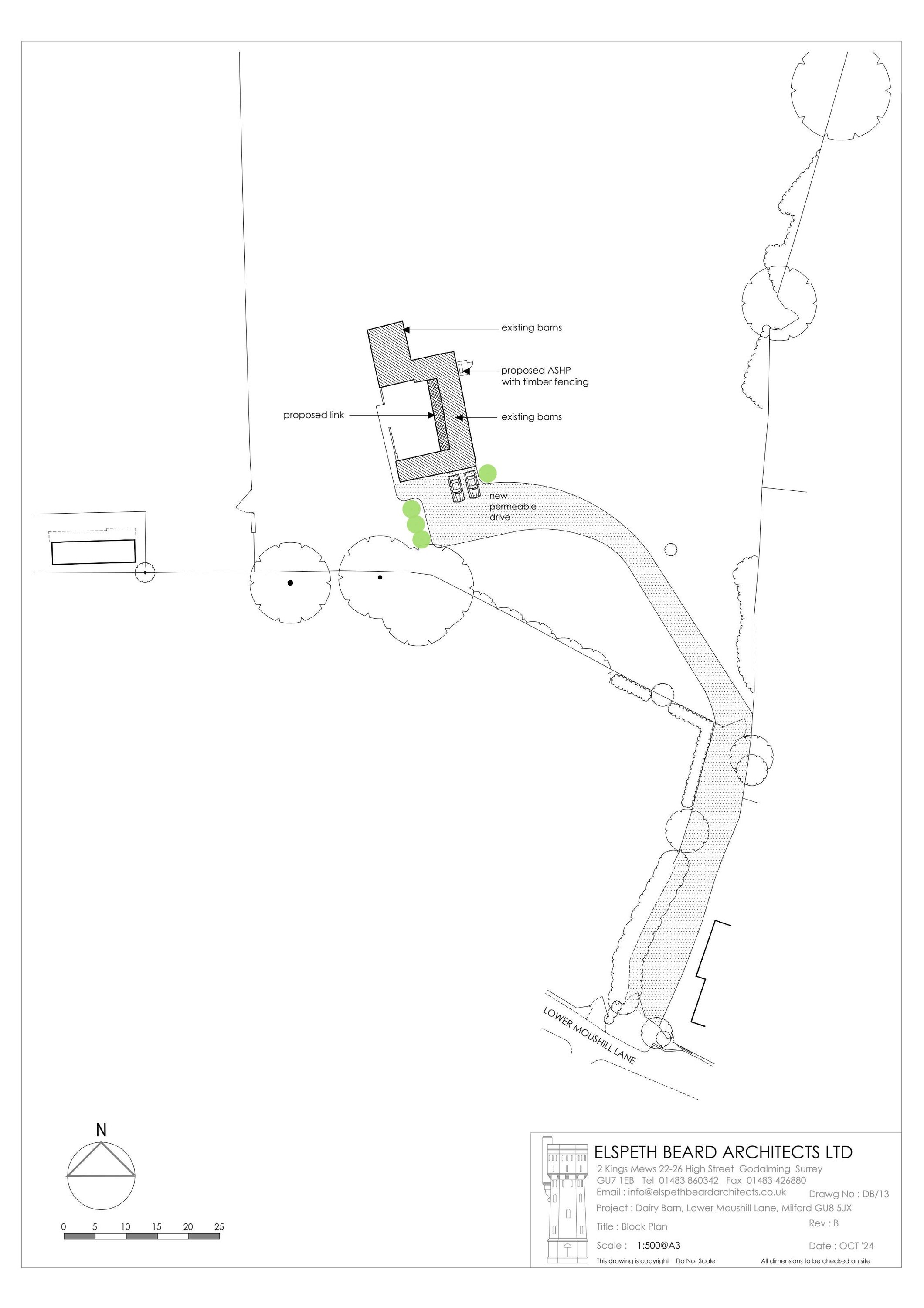
Change Of Use And Extension Of Former Agricultural Barn To Form An Independent Self-Contained Dwelling Together With Associated Works.

Have your say

Your comment matters. Councils must consider every representation that raises material planning considerations.

Write a comment