← Wealden District Council

Status

Decision Issued New housing
Received
Not recorded
New homes
1

Full proposal

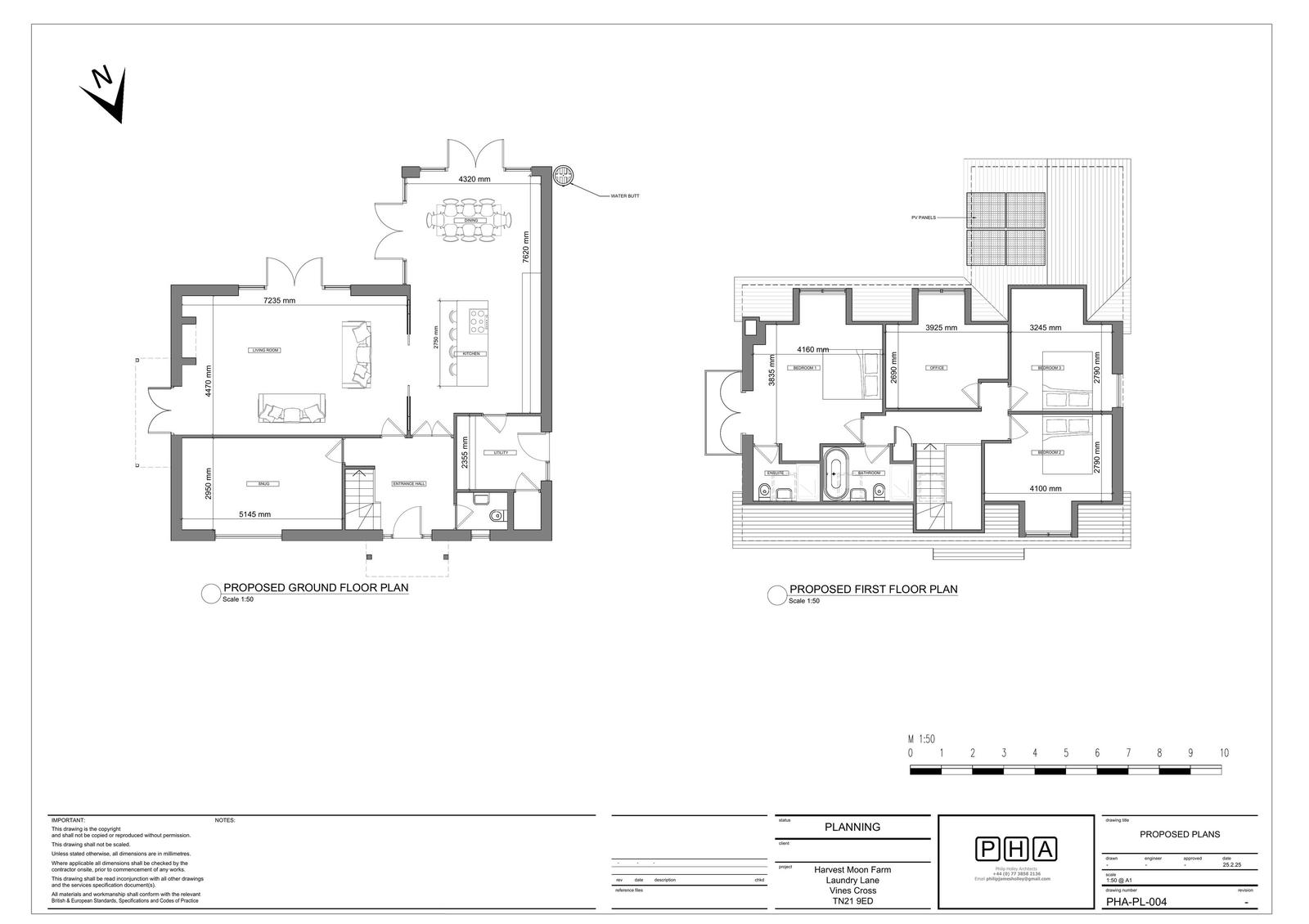
ERECTION OF A NEW SELF BUILD DWELLING FOR A RURAL WORKER WITH ASSOCIATED GARAGE.

Documents

Uncategorised
Archived · Original link
Uncategorised
Archived · Original link
Uncategorised
Archived · Original link
Uncategorised
Archived · Original link
Uncategorised
Archived · Original link

Have your say

Your comment matters. Councils must consider every representation that raises material planning considerations.

Write a comment