← Back to West Berkshire Council

Status

Awaiting decision
Received 14 Oct 2025
New dwellings n/a

What you can do

Take Action

Make your voice heard. Authorities need to hear from people who support new homes.

Full Proposal

Proposed new dwelling including new landscaping and parking

Detail pages

Documents

Additional info
Application Correspondence
Not downloaded · Council link
Agent: additional information
Application Correspondence
Not downloaded · Council link
Application Form
Application Form
Not downloaded · Council link
Arboricultural Impact Assessment
Supporting Document
Not downloaded · Council link
Arc Planning Associates
Representation Objection
Not downloaded · Council link
Committee Call-In approval from Councillor Macro
Committee Correspondence
Not downloaded · Council link
Committee Call-in approved by Councillor Macro
Committee Correspondence
Not downloaded · Council link
Committee call-in form
Committee Correspondence
Not downloaded · Council link
Community Infrastructure Levy - Completed form
Community Infrastructure Levy
Not downloaded · Council link
Design and planning statement
Supporting Document
Not downloaded · Council link
Ecology
Consultee Comment
Not downloaded · Council link
Environmental Health
Consultee Comment
Not downloaded · Council link
Existing East and South Elevations
Plans, Drawings
Not downloaded · Council link
Existing North and West Elevations
Plans, Drawings
Not downloaded · Council link
Highways West Berkshire Council
Consultee Comment
Not downloaded · Council link
HT SuDS
Consultee Comment
Not downloaded · Council link
Location Plan
Plans, Drawings
Not downloaded · Council link
MSC Planning Associates obo clients
Representation Objection
Not downloaded · Council link
Planning comparison document
Supporting Document
Not downloaded · Council link
Planning statement
Supporting Document
Not downloaded · Council link
Principal Archaeologist
Consultee Comment
Not downloaded · Council link
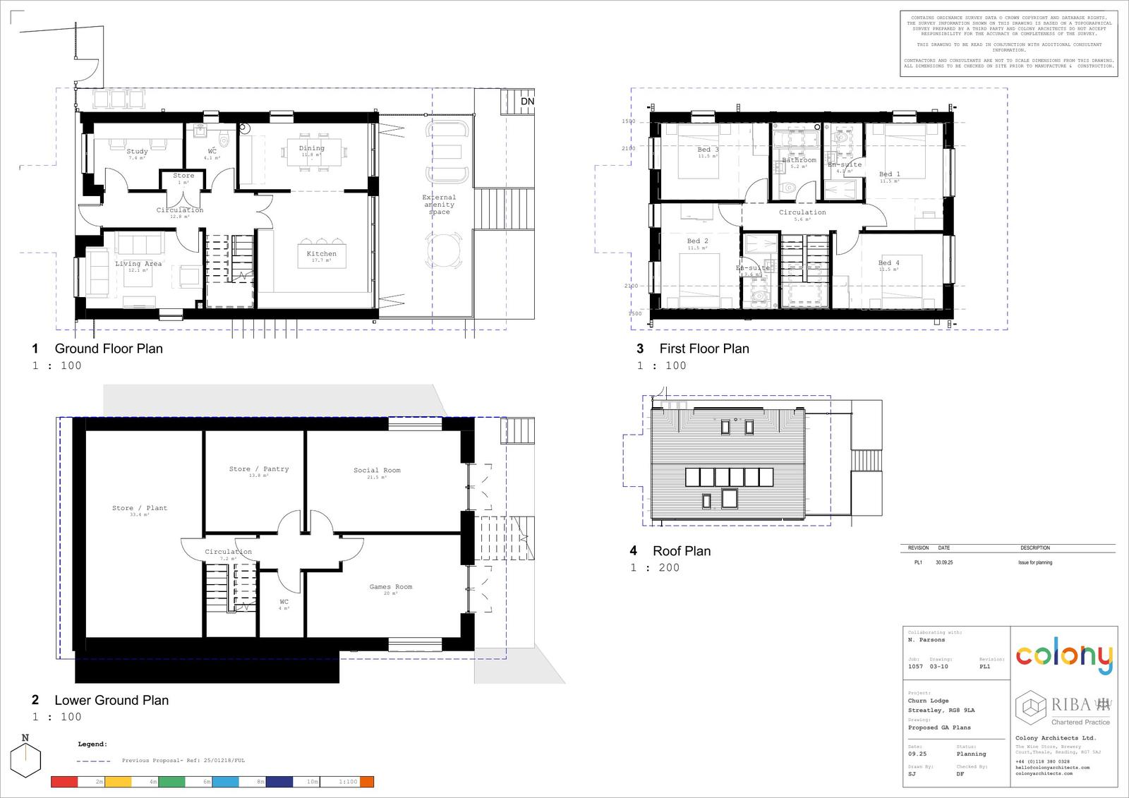
Proposed Elevations
Plans, Drawings
Not downloaded · Council link
Proposed West and North Elevations
Plans, Drawings
Not downloaded · Council link
Section - Existing
Plans, Drawings
Not downloaded · Council link
Section - Proposed
Plans, Drawings
Not downloaded · Council link
Site Levels Plan - Existing
Plans, Drawings
Not downloaded · Council link
Site/Block Plan - Existing
Plans, Drawings
Not downloaded · Council link
Streatley Parish Council
Consultee Comment
Not downloaded · Council link
The location plan
Plans, Drawings
Not downloaded · Council link
Tree Officer
Consultee Comment
Not downloaded · Council link
Tree Protection Plan
Supporting Document
Not downloaded · Council link
Waste Management
Consultee Comment
Not downloaded · Council link