← West Berkshire Council

Status

Awaiting decision House extension
Received
10 Dec 2025
New homes
0

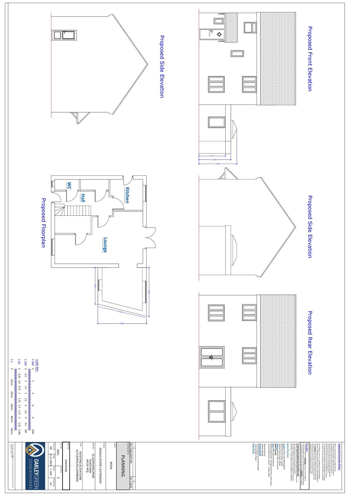
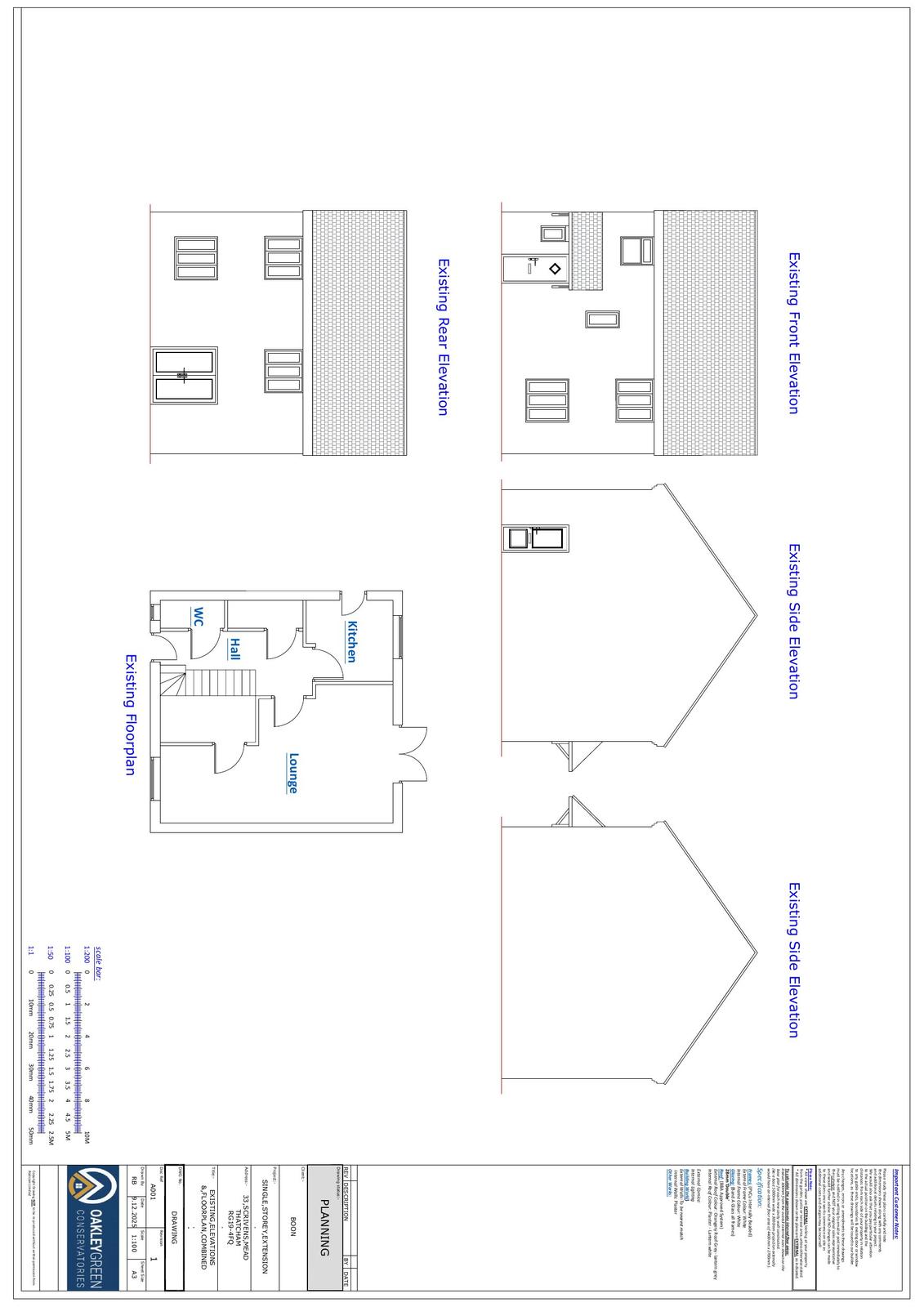
Full proposal

Erection of a single storey extension on side elevation

Documents

Plans, Drawings
Archived · Original link
Plans, Drawings
Archived · Original link
DCPLANB - Block Plan
Archived · Original link
DCPLANEE - Existing Elevations
Archived · Original link
DCPLANL - Location Plan
Archived · Original link
DCPLANEP - Proposed Elevations
Archived · Original link

Have your say

Your comment matters. Councils must consider every representation that raises material planning considerations.

Write a comment