← West Berkshire Council

Status

Awaiting decision House extension
Received
14 Jan 2026
New homes
0

Full proposal

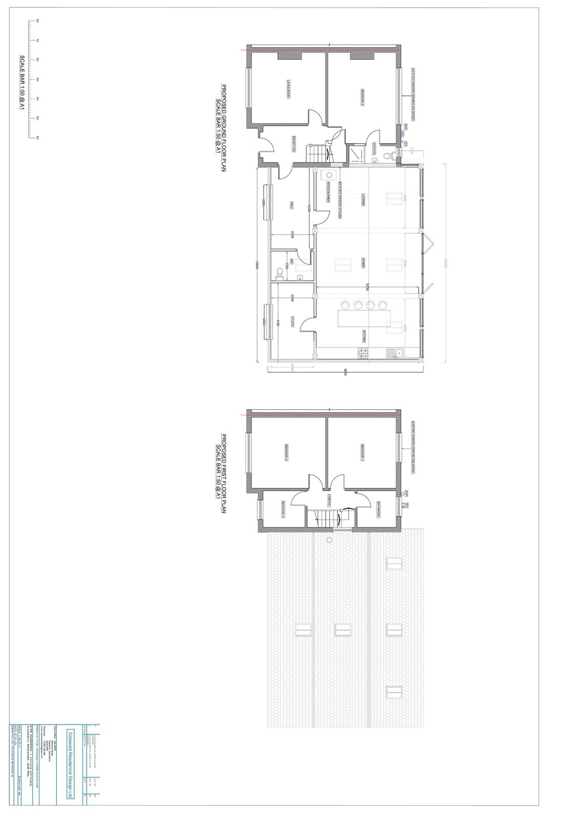
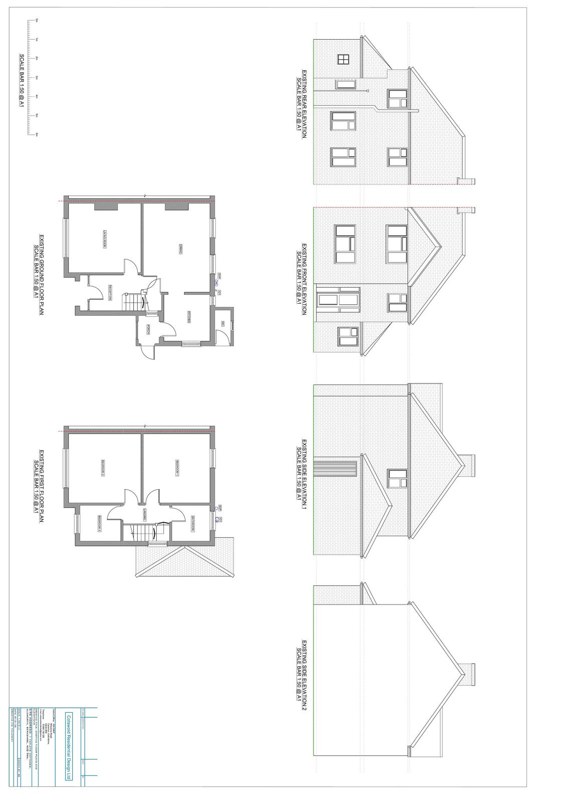
Demolition of existing garage and erection of a single storey side extension.

Documents

Plans, Drawings
Archived · Original link
Plans, Drawings
Archived · Original link
Plans, Drawings
Archived · Original link
Plans, Drawings
Archived · Original link
Plans, Drawings
Archived · Original link

Have your say

Your comment matters. Councils must consider every representation that raises material planning considerations.

Write a comment