26/00086/FUL
West Berkshire Council
Status
Awaiting decision
Change of use
Received
14 Jan 2026
New homes
0
Full proposal
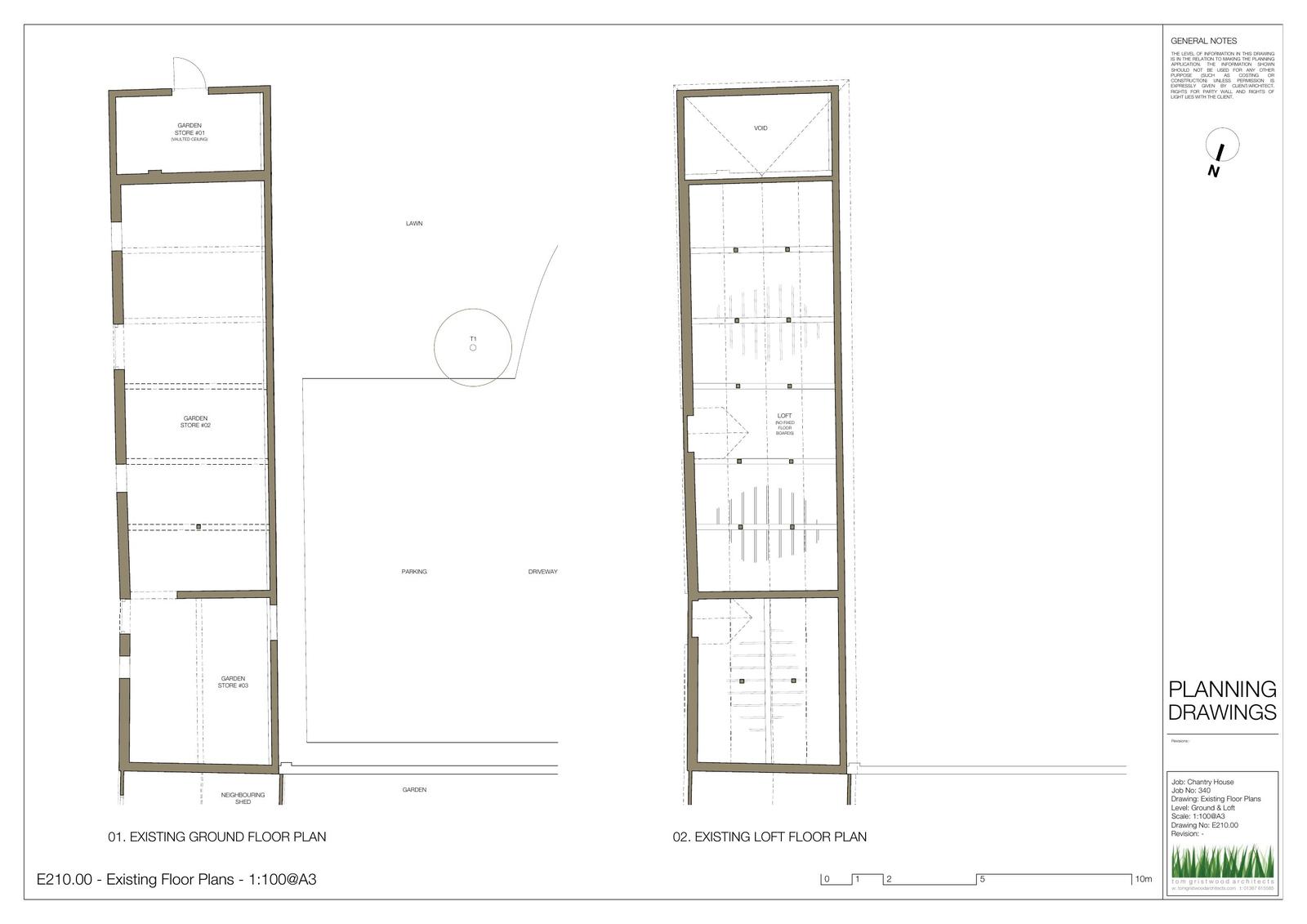
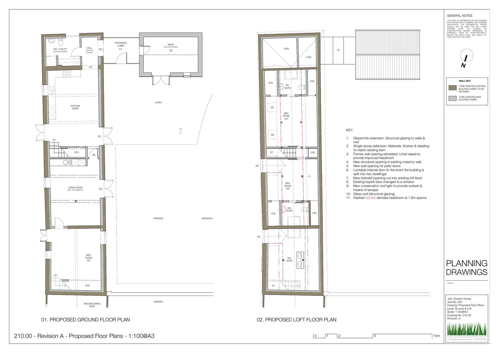
The conversion of (and extension to) a traditional brick-built barn to form ancillary residential accommodation to the main dwelling at Chantry House. Change of use from storage barn to ancillary accommodation. Total square metres of the extension (glazed link) = 27.5sqm.
Documents
Have your say
Your comment matters. Councils must consider every representation that raises material planning considerations.