← West Berkshire Council

Status

Awaiting decision House extension
Received
30 Jan 2026
New homes
0

Full proposal

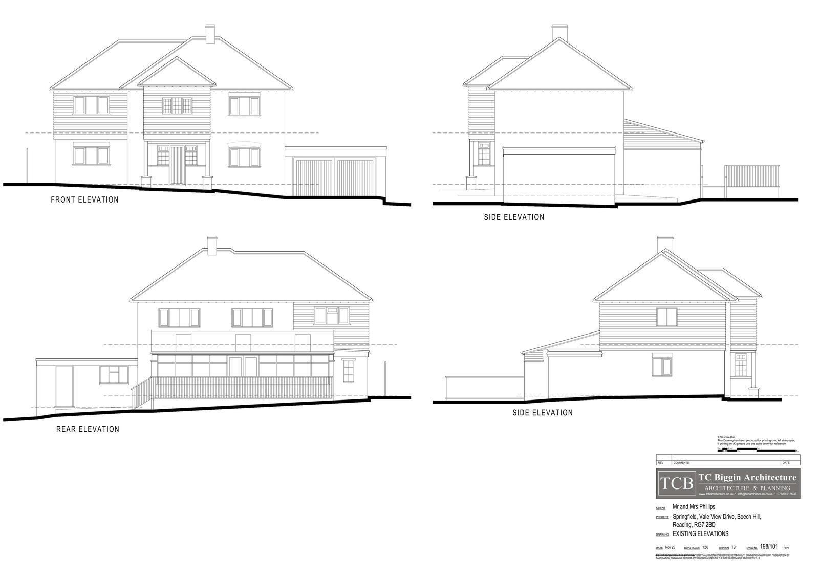
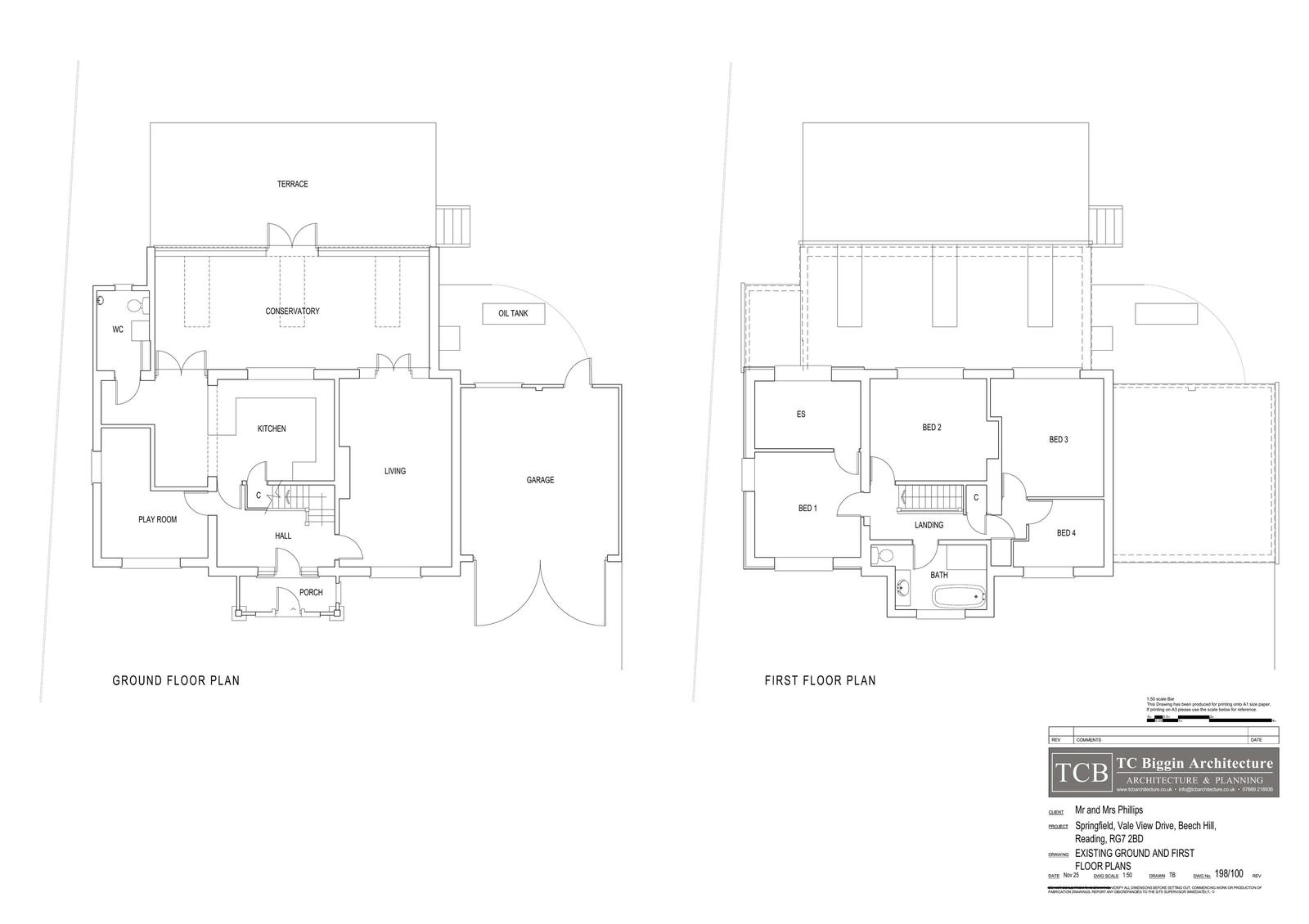
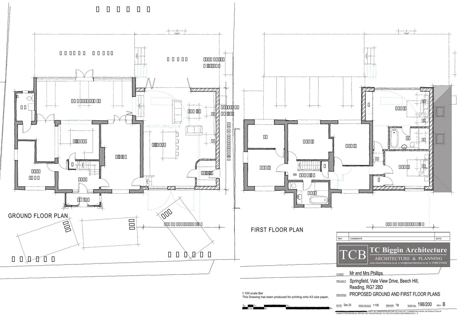
Proposed side and rear single and 2 storey extensions and alterations

Documents

Community Infrastructure Levy
Archived · Original link
Plans, Drawings
Archived · Original link
Plans, Drawings
Archived · Original link
Consultee Comment
Archived · Original link
Plans, Drawings
Archived · Original link
Application Correspondence
Archived · Original link
Plans, Drawings
Archived · Original link
Plans, Drawings
Archived · Original link
Application Correspondence
Archived · Original link

Have your say

Your comment matters. Councils must consider every representation that raises material planning considerations.

Write a comment