26/00292/HOUSE
West Berkshire Council
Status
Awaiting decision
House extension
Received
09 Feb 2026
New homes
0
Full proposal
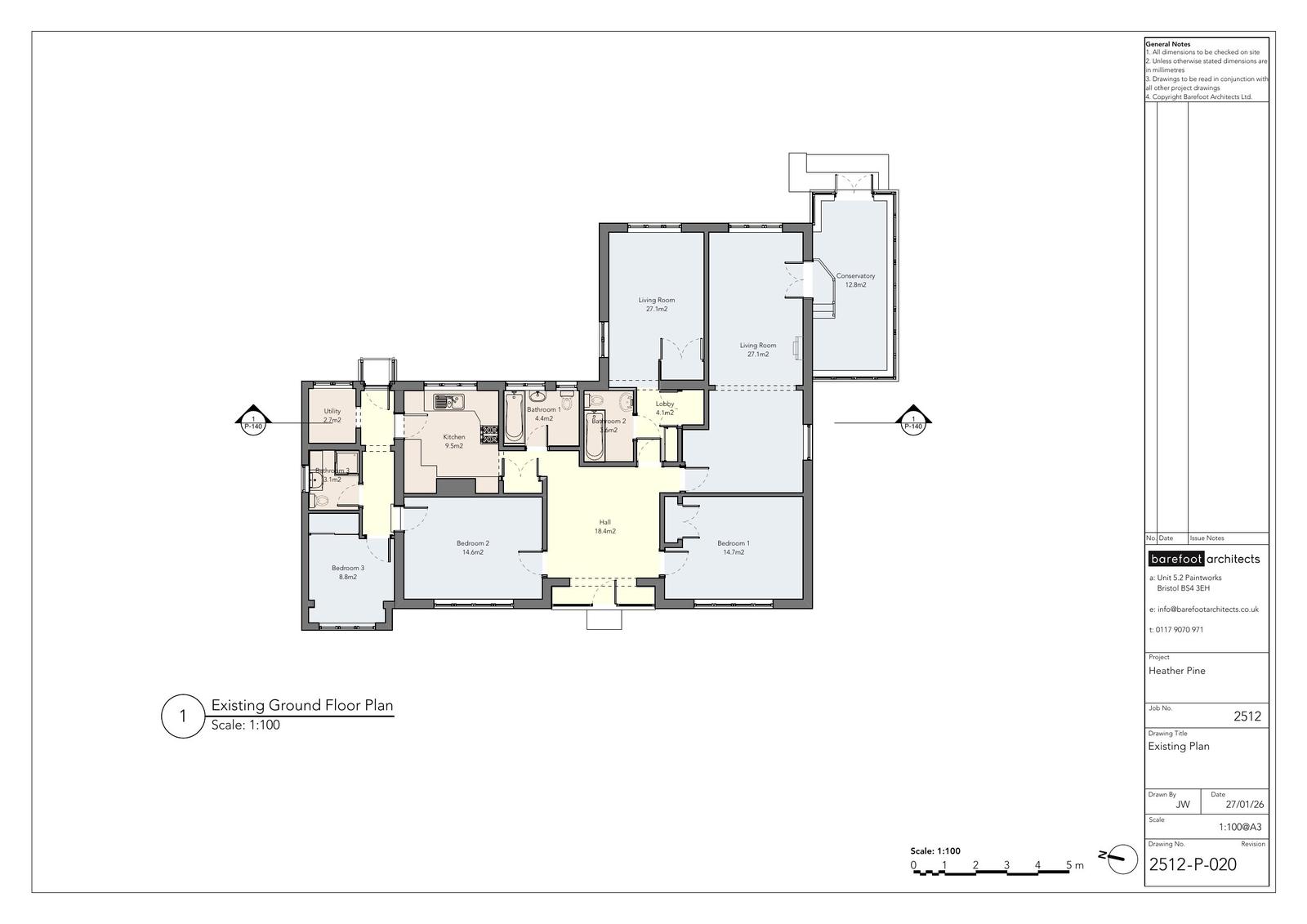
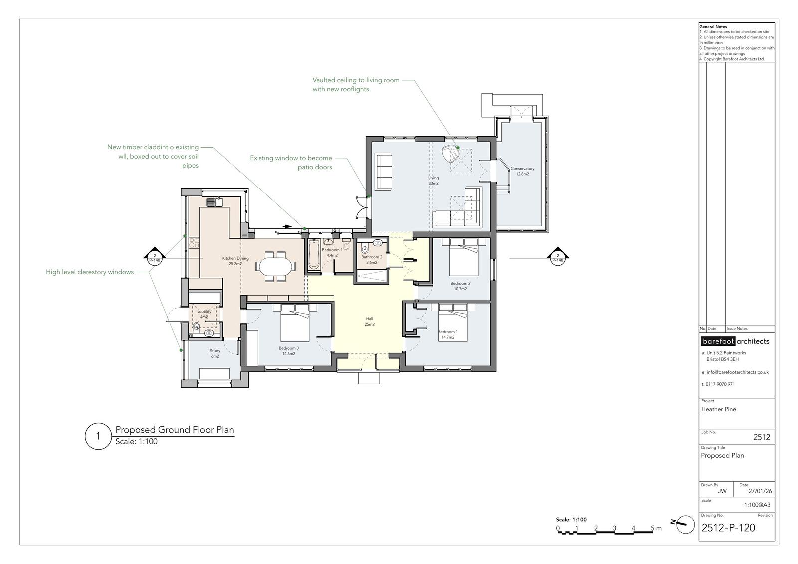
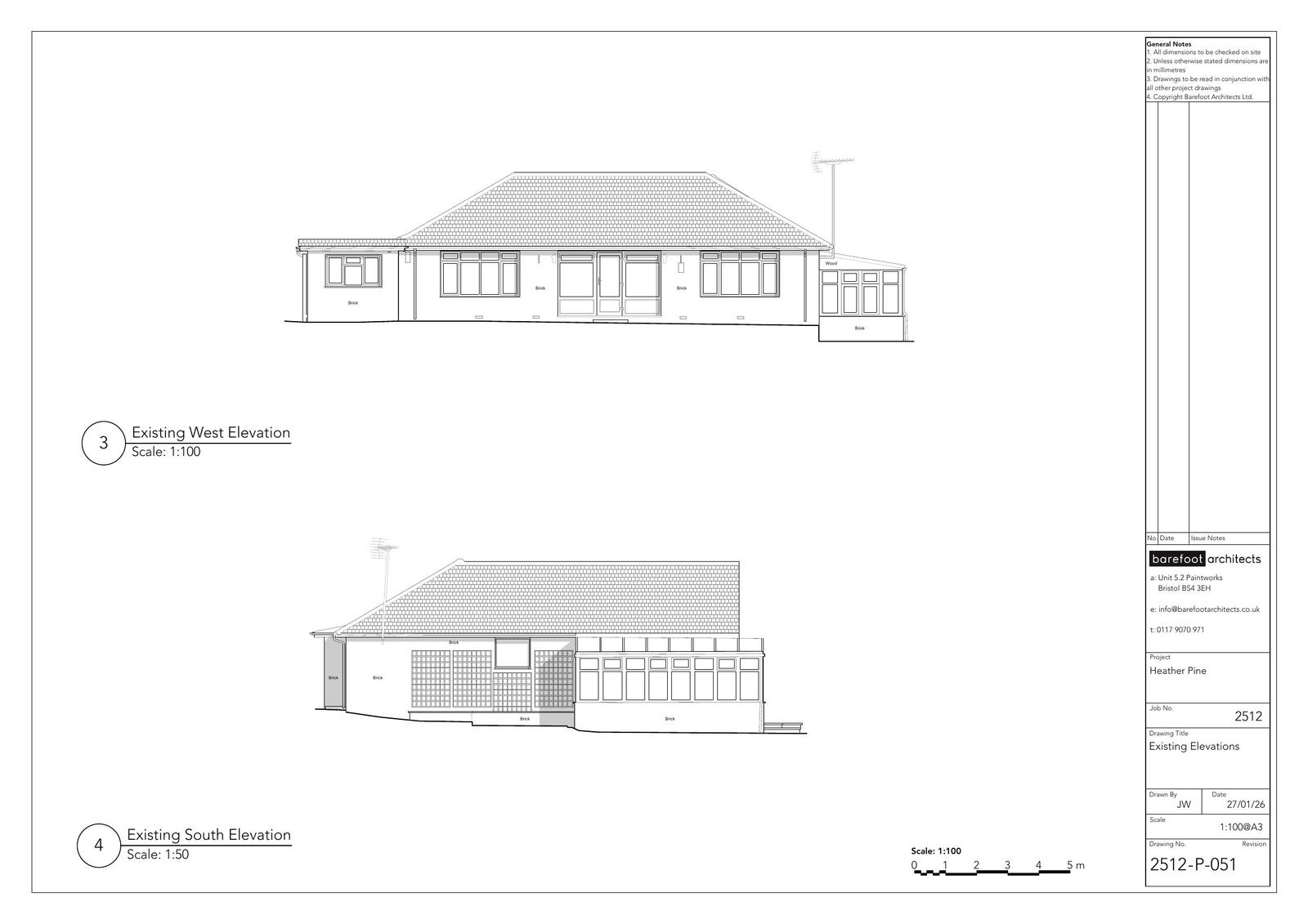
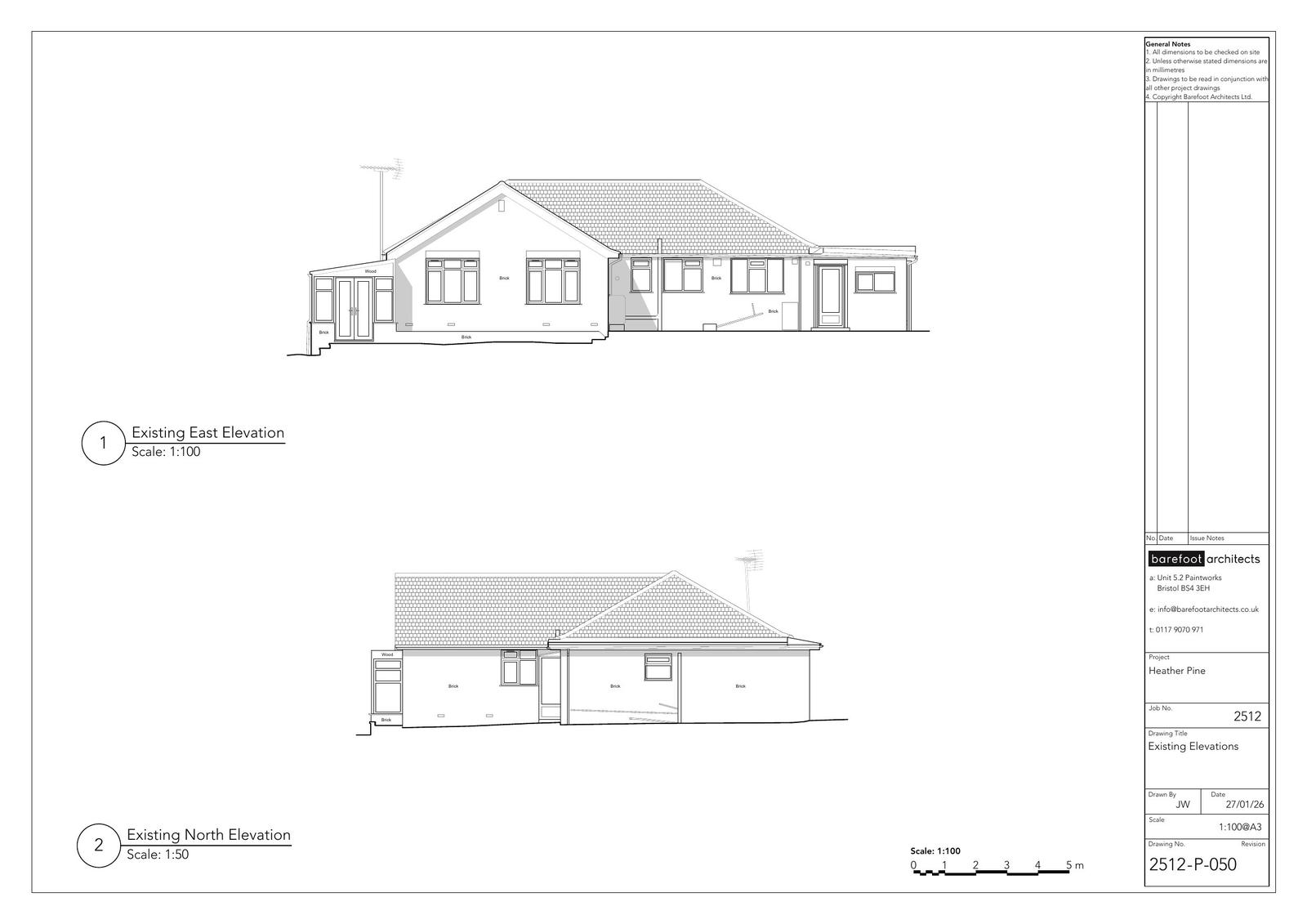
Rear extension, overcladding rear of existing building, new rooflights in existing roof
Documents
Have your say
Your comment matters. Councils must consider every representation that raises material planning considerations.