26/00296/FUL
West Berkshire Council
Status
Awaiting decision
New housing
Received
10 Feb 2026
New homes
1
Full proposal
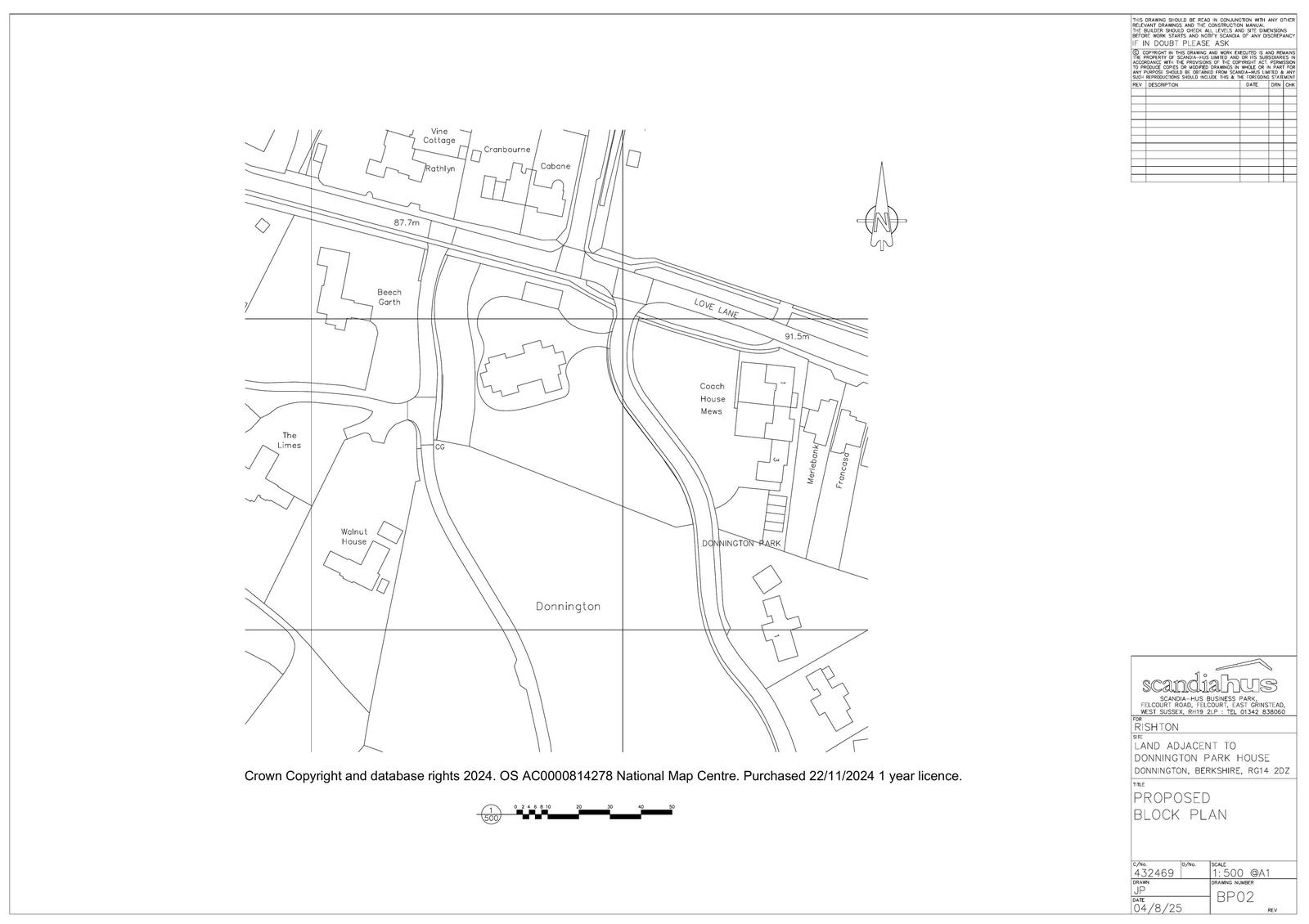
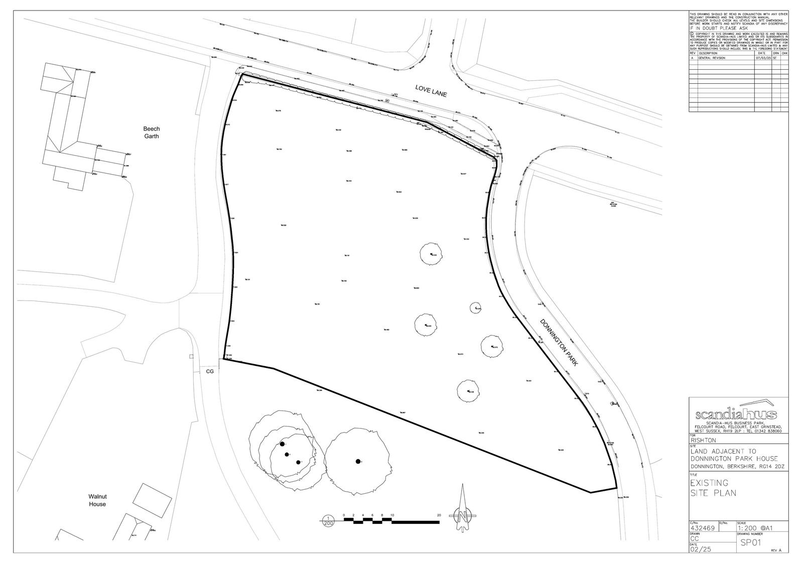
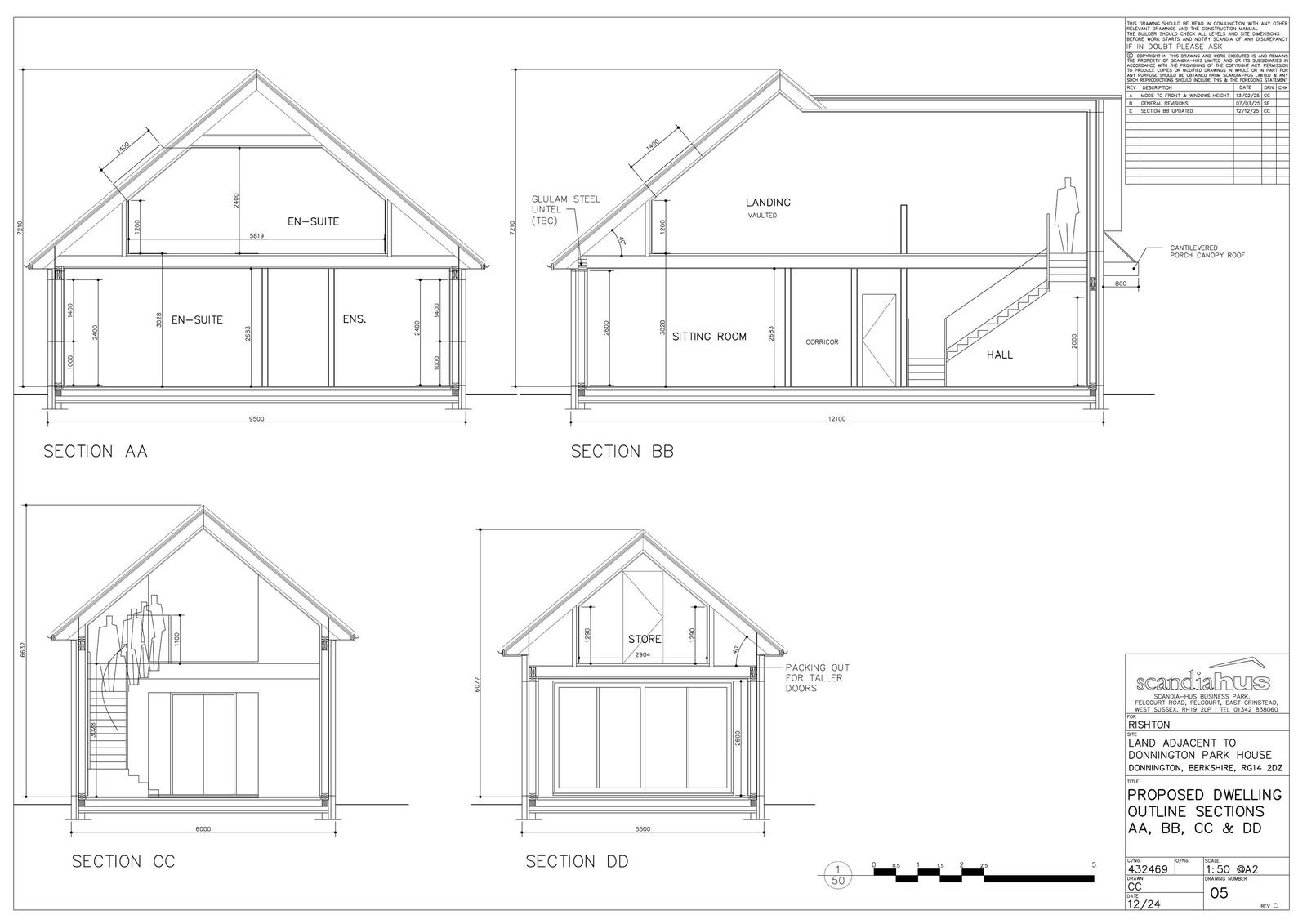
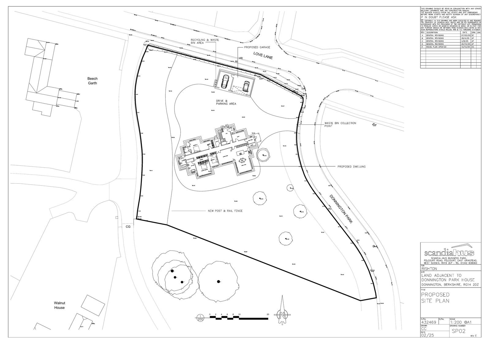
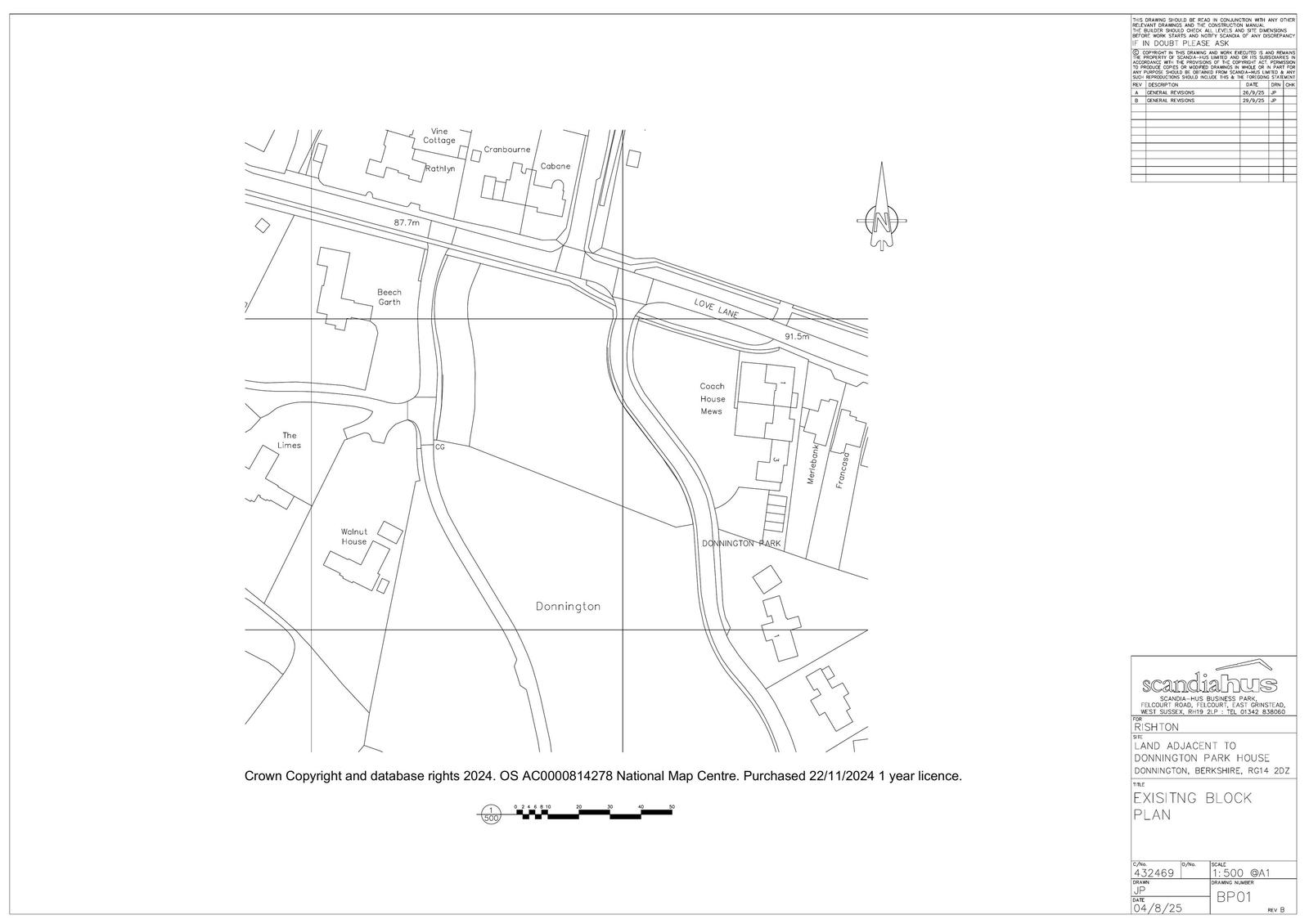
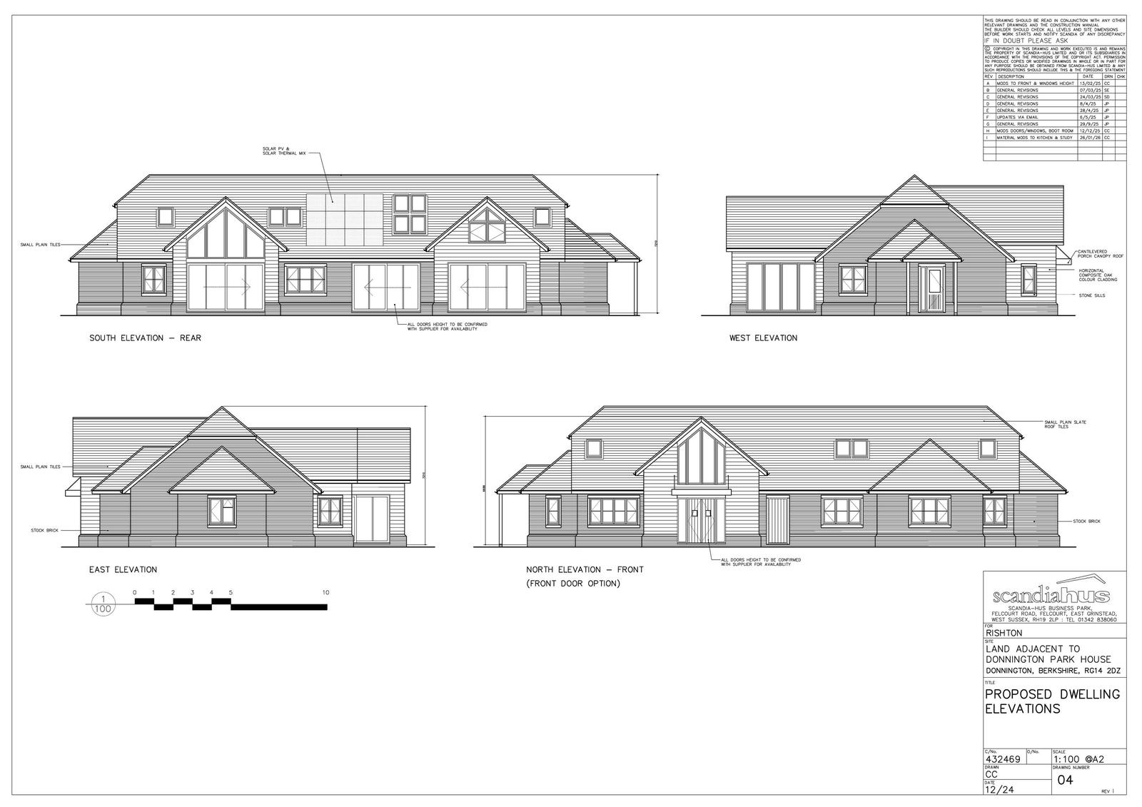
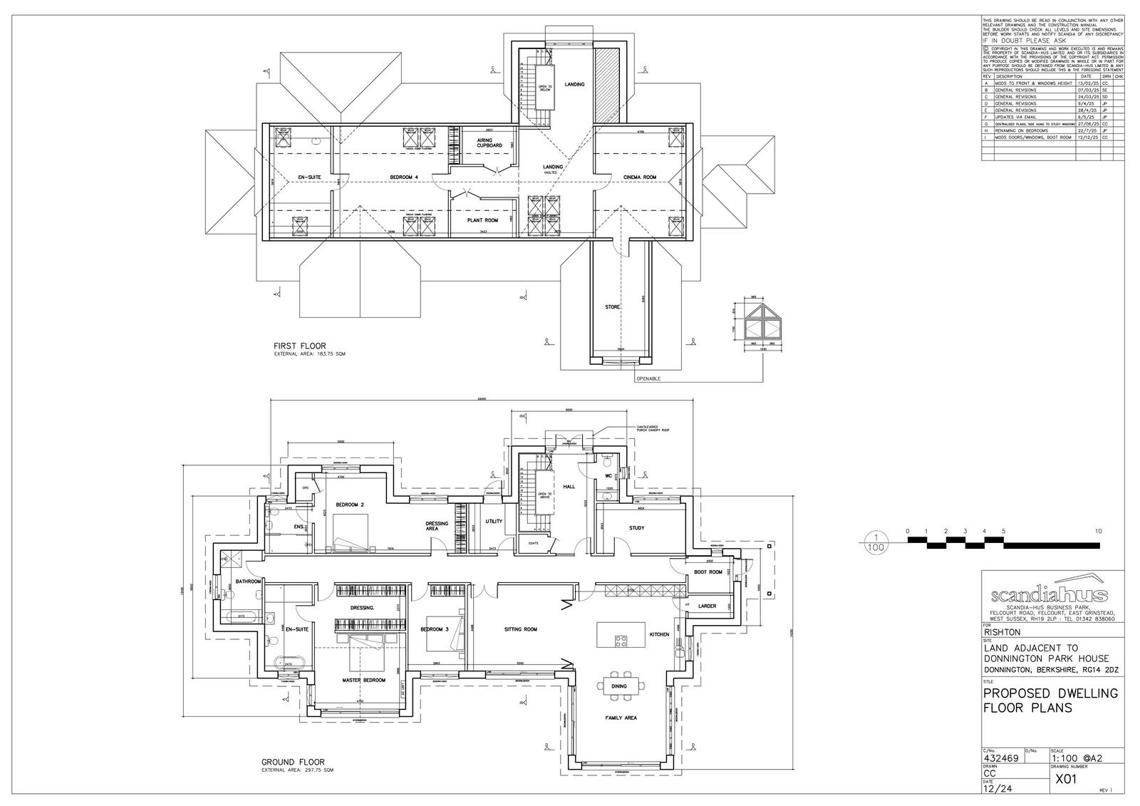
Construction of detached chalet style self-build dwelling along with detached garage.
Documents
Have your say
Your comment matters. Councils must consider every representation that raises material planning considerations.