26/00343/HOUSE
West Berkshire Council
Status
Awaiting decision
House extension
Received
Last month
New homes
0
Full proposal
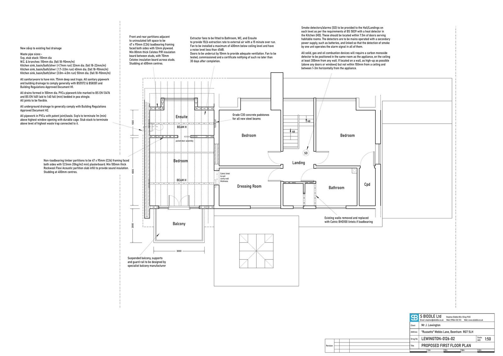
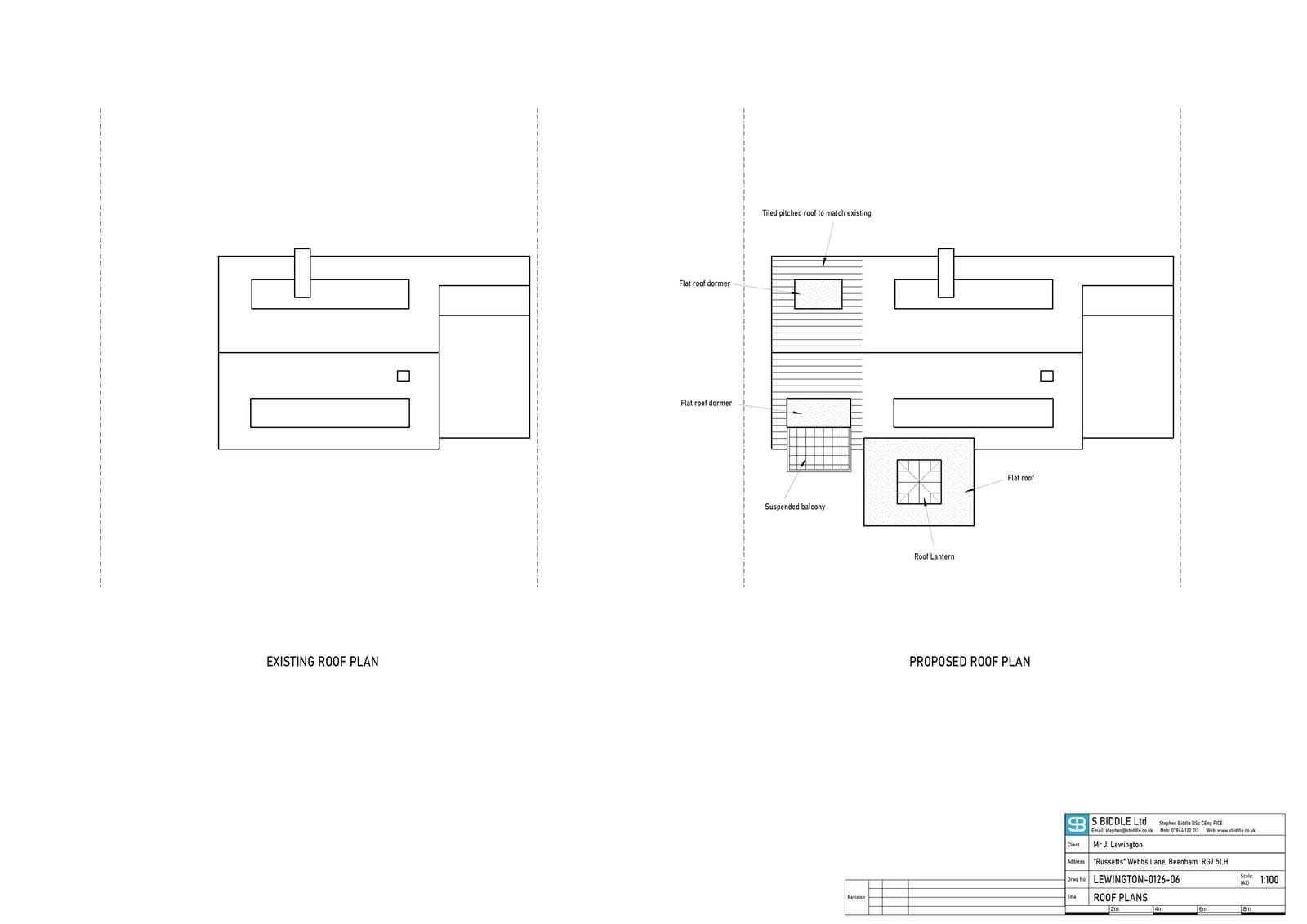
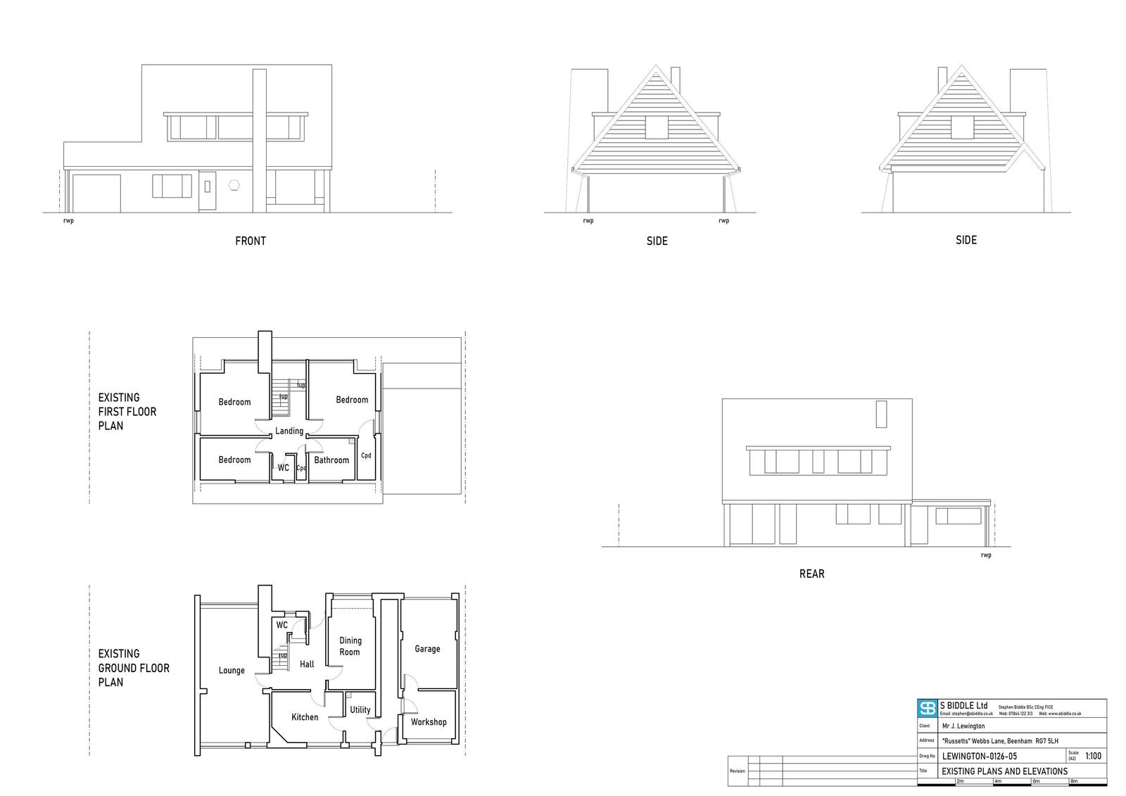
Proposed two storey side extension with dormers on front and rear elevations to match existing, suspended balcony on the rear elevation, and single storey rear extension with flat roof and roof lantern.
Documents
Have your say
Your comment matters. Councils must consider every representation that raises material planning considerations.