26/00345/FUL
West Berkshire Council
Status
Awaiting decision
Agricultural
Received
Last month
New homes
0
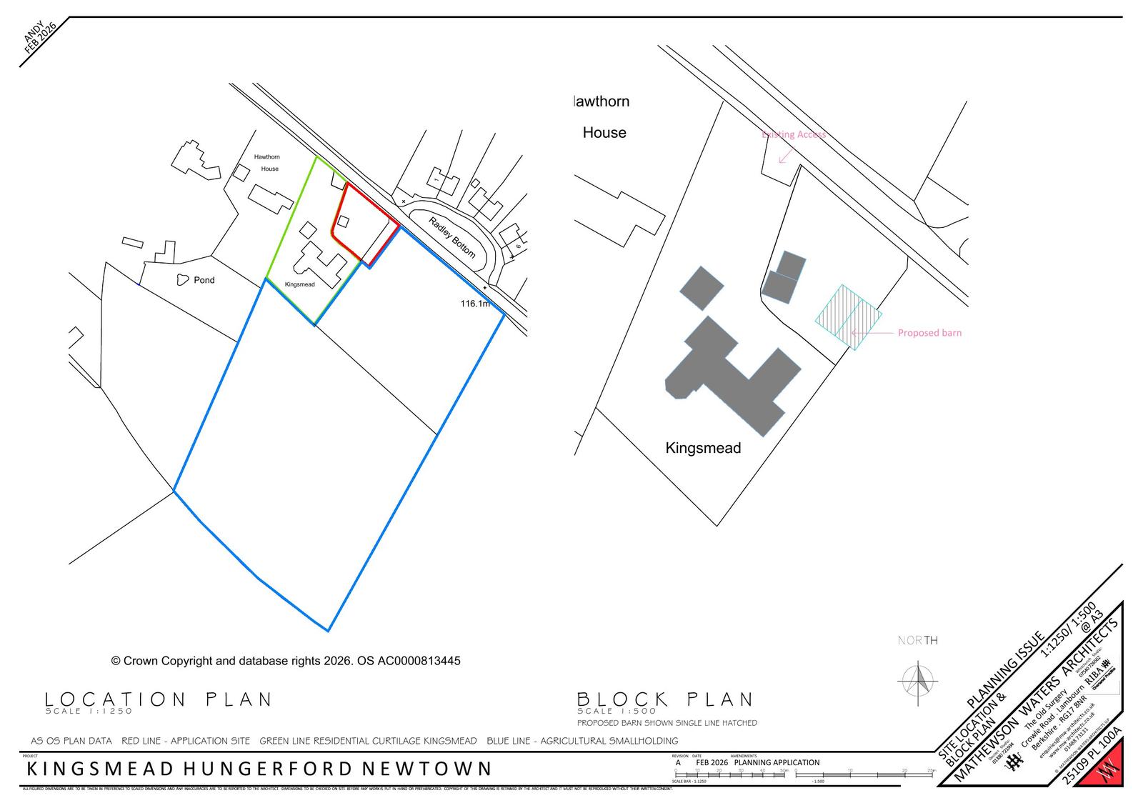
Full proposal
Construction of animal welfare barn on agricultural land to the north of the dwelling.
Documents
Have your say
Your comment matters. Councils must consider every representation that raises material planning considerations.