← West Berkshire Council

Status

Awaiting decision House extension
Received
Last month
New homes
0

Full proposal

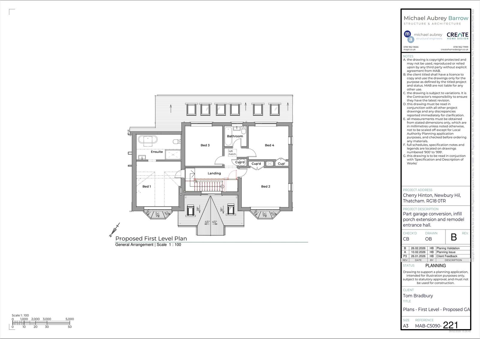
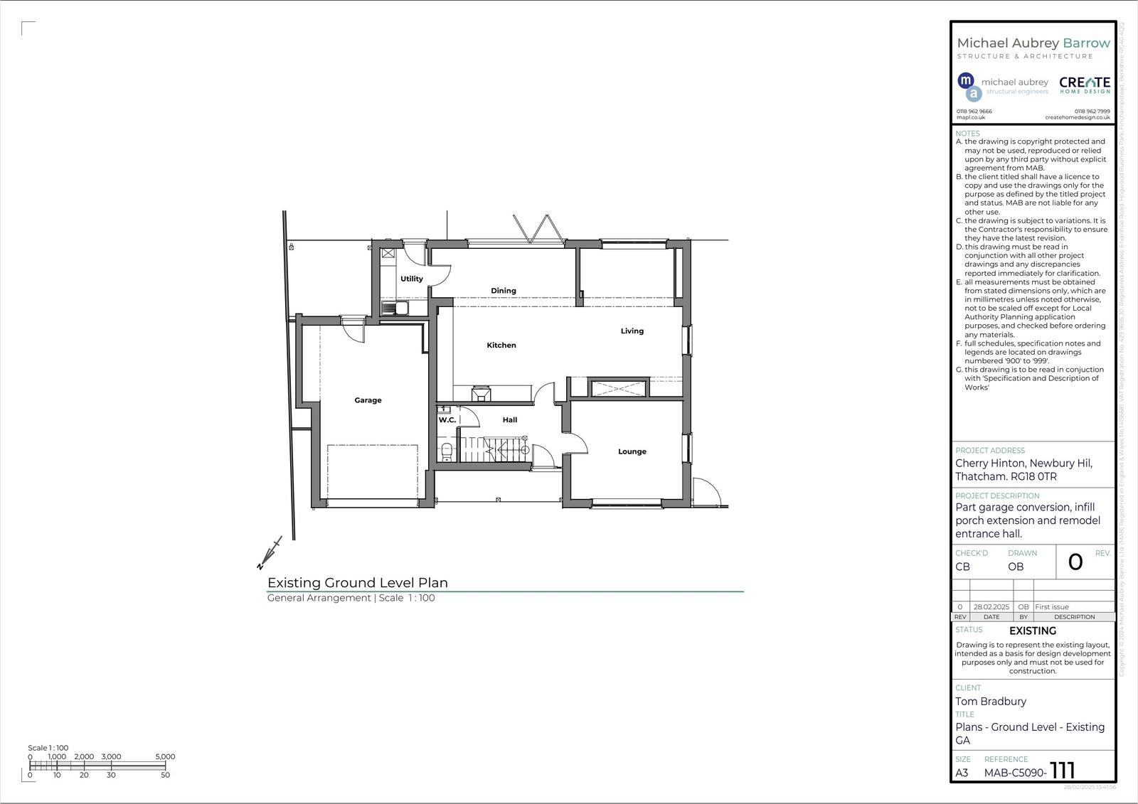
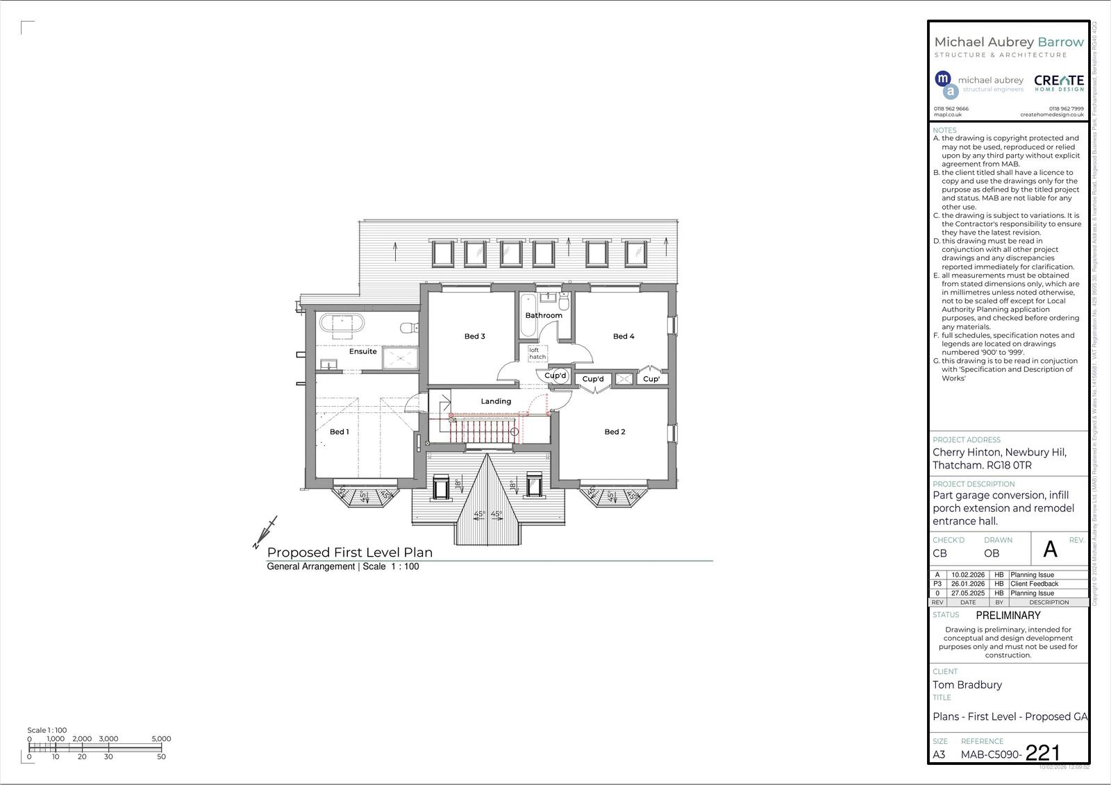
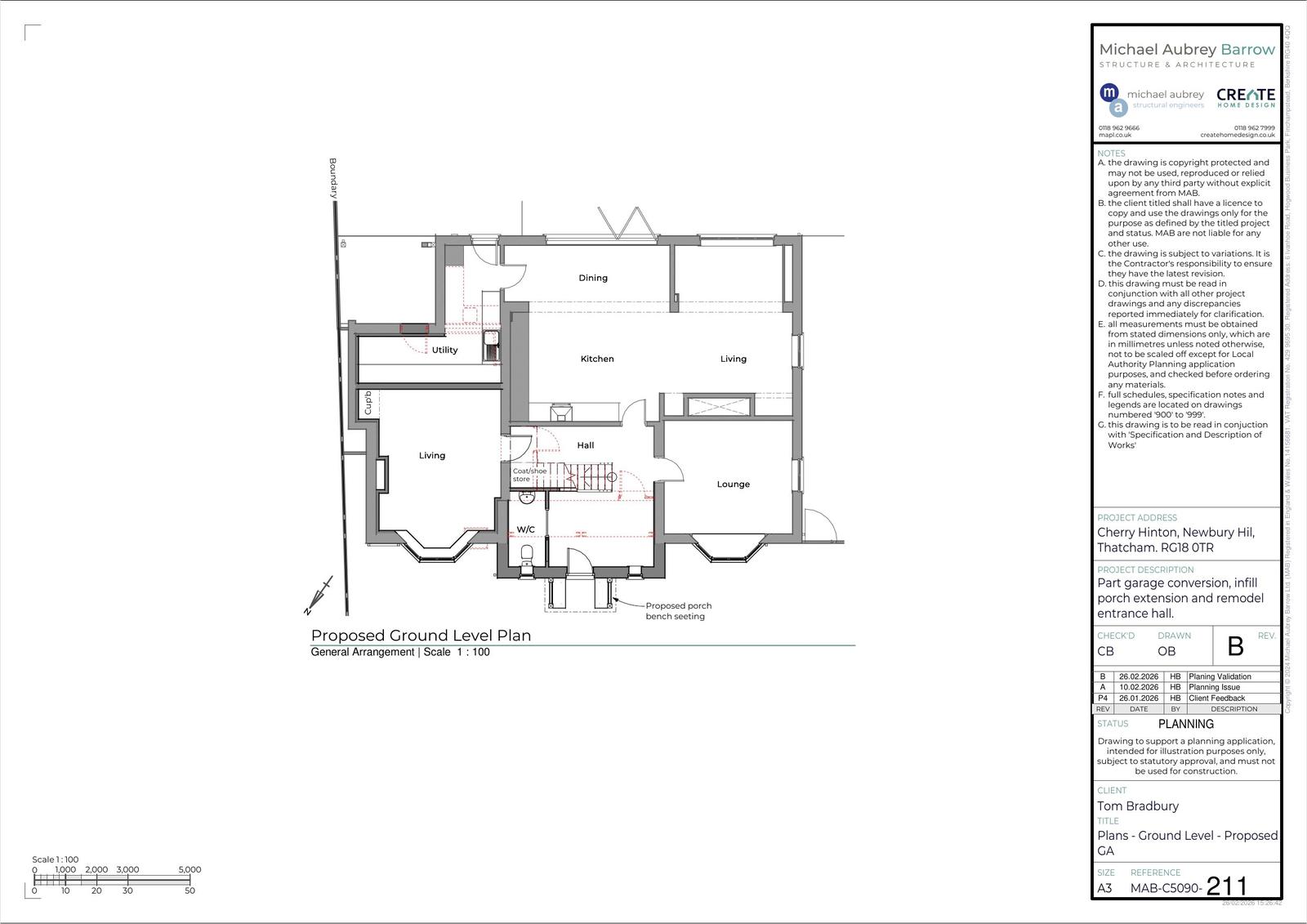
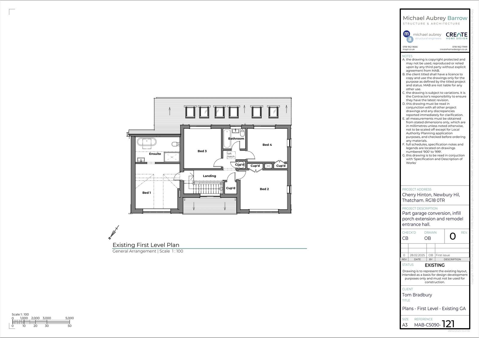
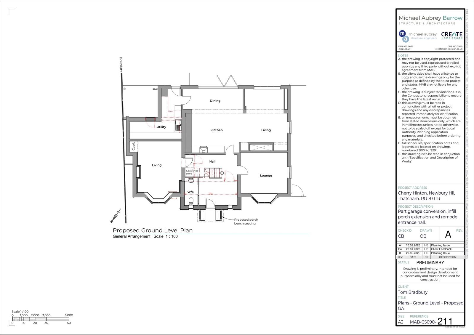
Part garage conversion, infill porch extension and remodel entrance hall.

Documents

Community Infrastructure Levy
Archived · Original link
Plans, Drawings
Archived · Original link
Plans, Drawings
Archived · Original link
Plans, Drawings
Archived · Original link
Plans, Drawings
Archived · Original link
Consultee Comment
Archived · Original link
Plans, Drawings
Archived · Original link
Plans, Drawings
Archived · Original link
Plans, Drawings
Archived · Original link
Plans, Drawings
Archived · Original link
Plans, Drawings
Archived · Original link
Plans, Drawings
Archived · Original link
Plans, Drawings
Archived · Original link
Plans, Drawings
Archived · Original link
Plans, Drawings
Archived · Original link
Plans, Drawings
Archived · Original link
Plans, Drawings
Archived · Original link
Sustainability Statement
Application Correspondence
Not yet archived · Original link

Have your say

Your comment matters. Councils must consider every representation that raises material planning considerations.

Write a comment