← West Berkshire Council

Status

Awaiting decision House extension
Received
Last month
New homes
0

Full proposal

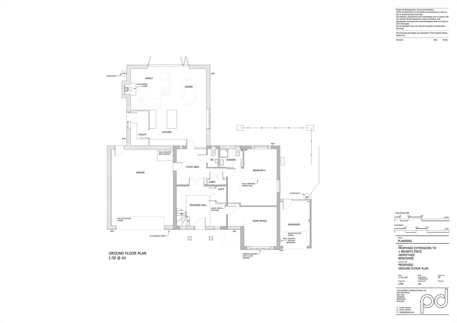
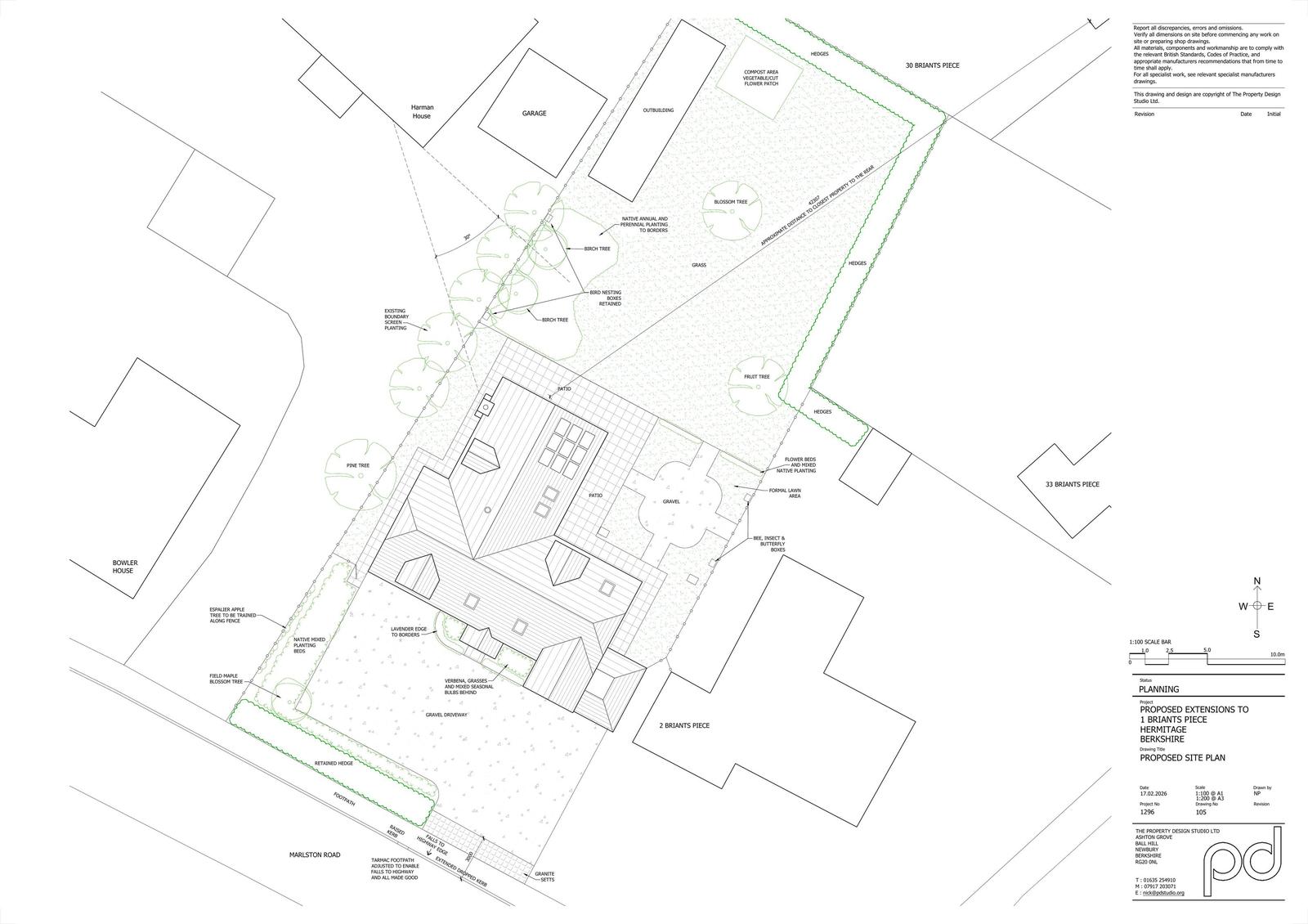
Proposed conversion of existing single-storey bungalow into a chalet-style two-storey dwelling, including side and rear extensions, alterations to roof form, external re-elevation with render finish to replace existing brickwork and landscaping.

Documents

Application Form
Archived · Original link
Community Infrastructure Levy
Archived · Original link
Plans, Drawings
Archived · Original link
Plans, Drawings
Archived · Original link
Supporting Document
Archived · Original link
Consultee Comment
Archived · Original link
Plans, Drawings
Archived · Original link
Plans, Drawings
Archived · Original link
Plans, Drawings
Archived · Original link
Plans, Drawings
Archived · Original link
Plans, Drawings
Archived · Original link
Supporting Document
Archived · Original link

Have your say

Your comment matters. Councils must consider every representation that raises material planning considerations.

Write a comment