26/00449/LBC
West Berkshire Council
Status
Awaiting decision
House extension
Received
Last month
New homes
0
Full proposal
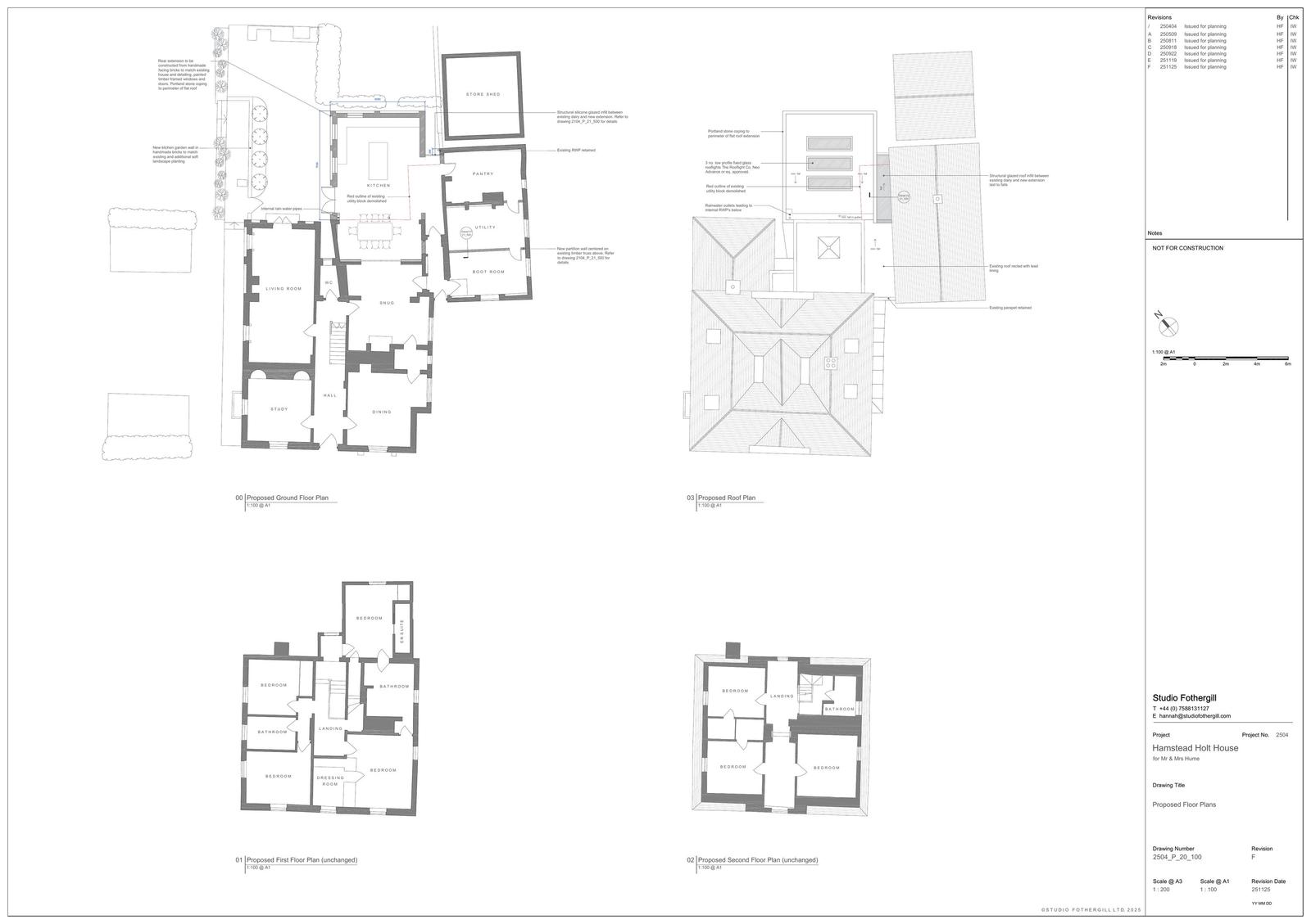
Erection of a single storey rear extension
Documents
Have your say
Your comment matters. Councils must consider every representation that raises material planning considerations.