← West Berkshire Council

Status

Awaiting decision Change of use
Received
Last month
New homes
0

Full proposal

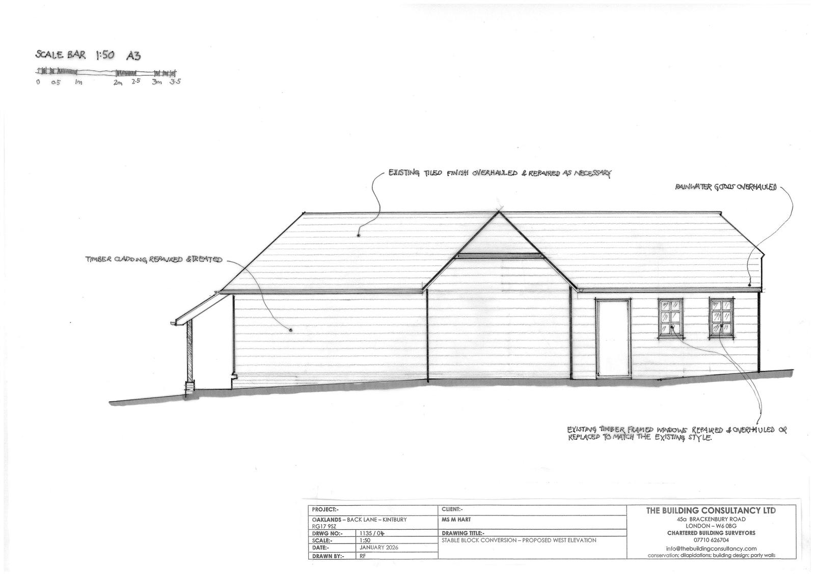
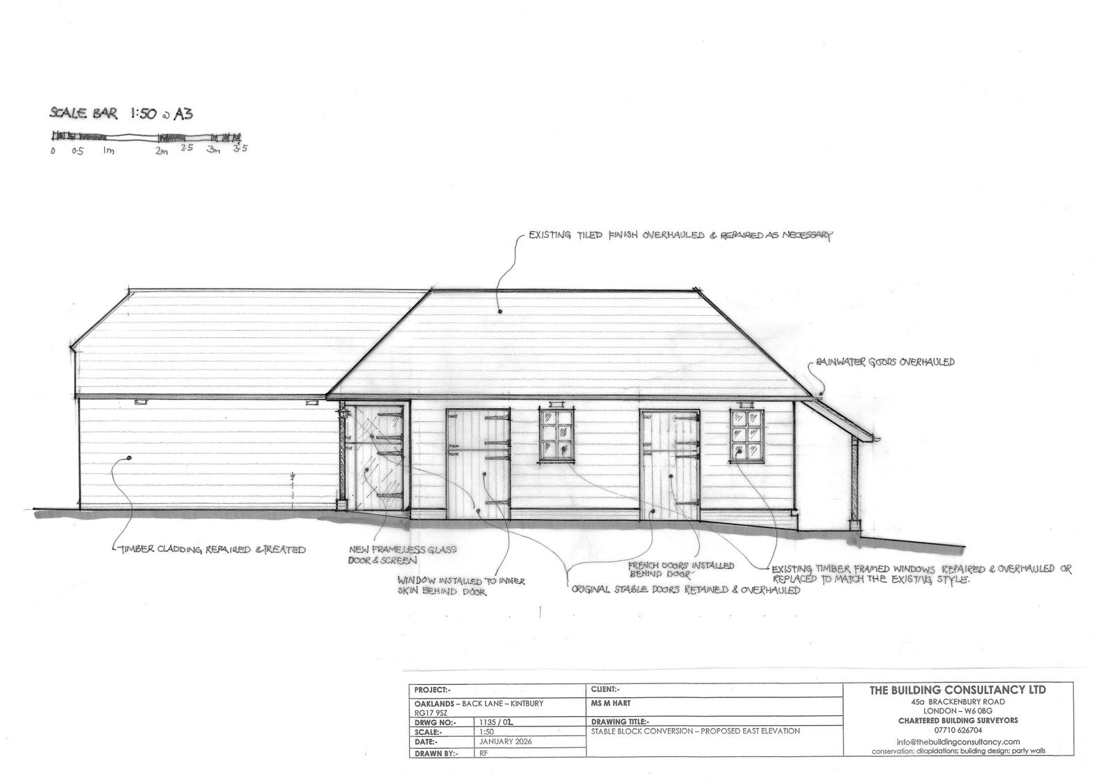
Conversion of stable block to home office, domestic storage and studio space.

Documents

DCPLANB - Block Plan
Archived · Original link
DCDESAC - Design and Access Statement
Archived · Original link
DCPLANF - Floor Plans
Archived · Original link
DCPLANL - Location Plan
Archived · Original link
DCPLANEE - Existing Elevations
Archived · Original link
DCPLANEP - Proposed Elevations
Archived · Original link
DCPLANF - Floor Plans
Archived · Original link
DCPLANEP - Proposed Elevations
Archived · Original link
DCPLANEP - Proposed Elevations
Archived · Original link
DCPLANEP - Proposed Elevations
Archived · Original link

Have your say

Your comment matters. Councils must consider every representation that raises material planning considerations.

Write a comment