← West Lancashire Borough Council

Status

Registered House extension
Received
14 Jan 2026
New homes
0

Full proposal

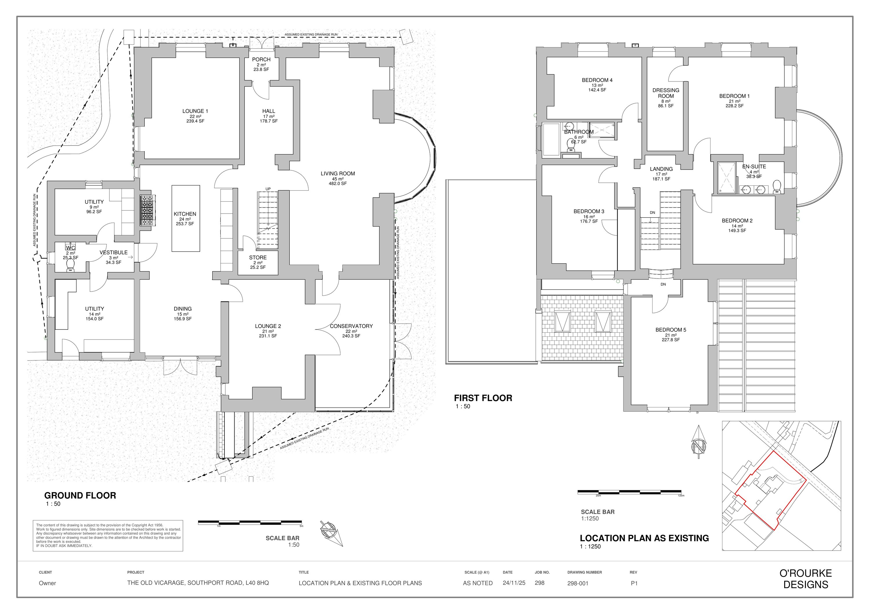
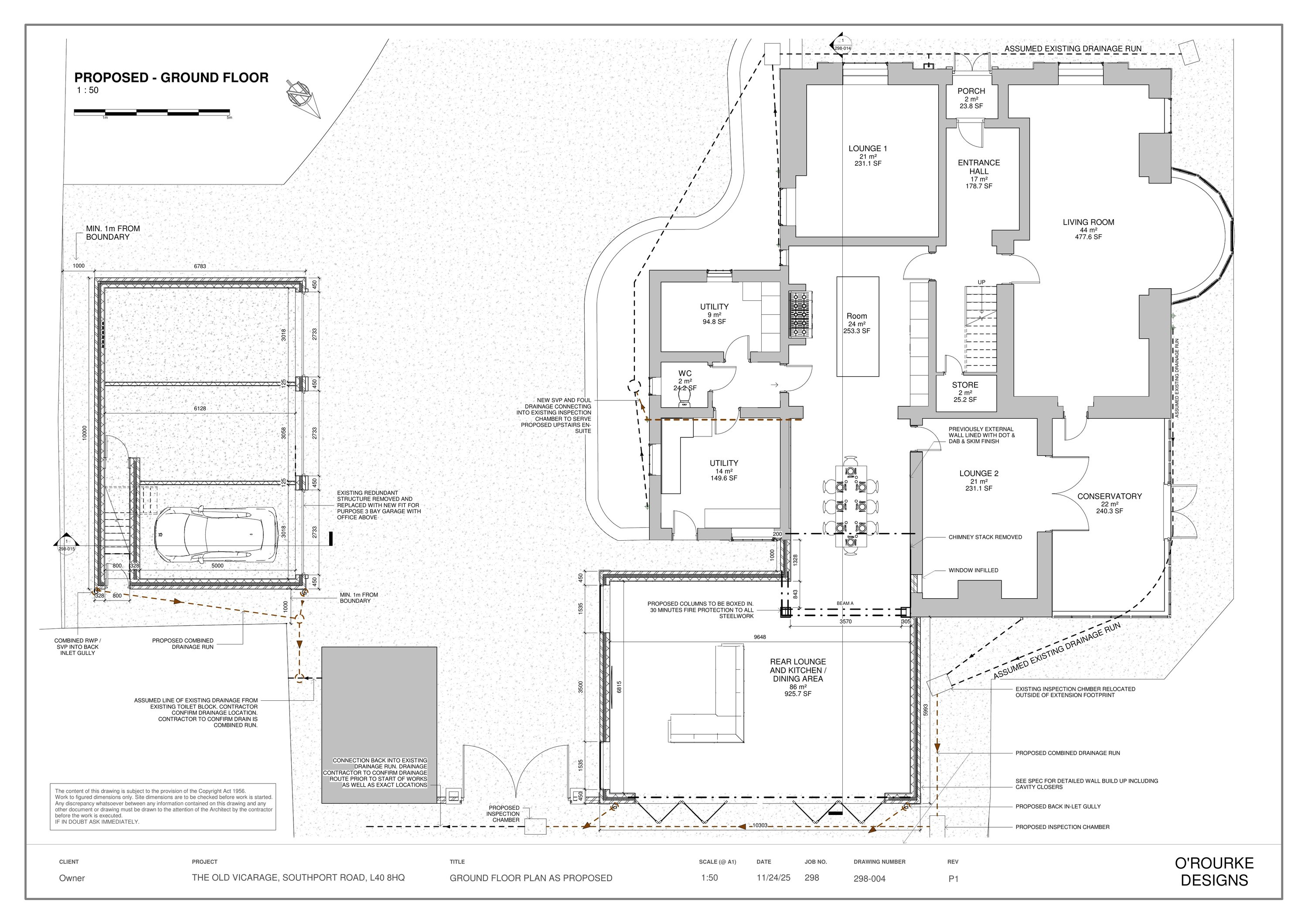
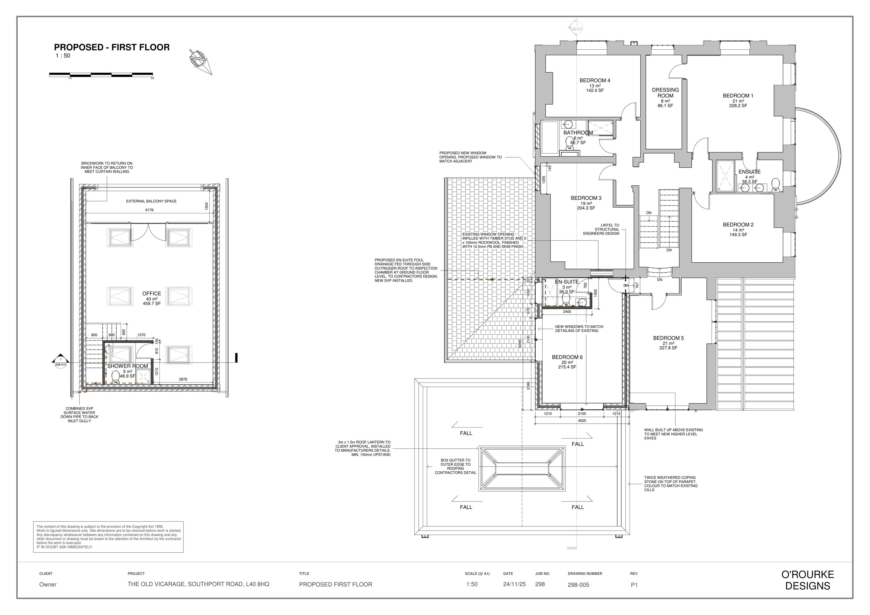
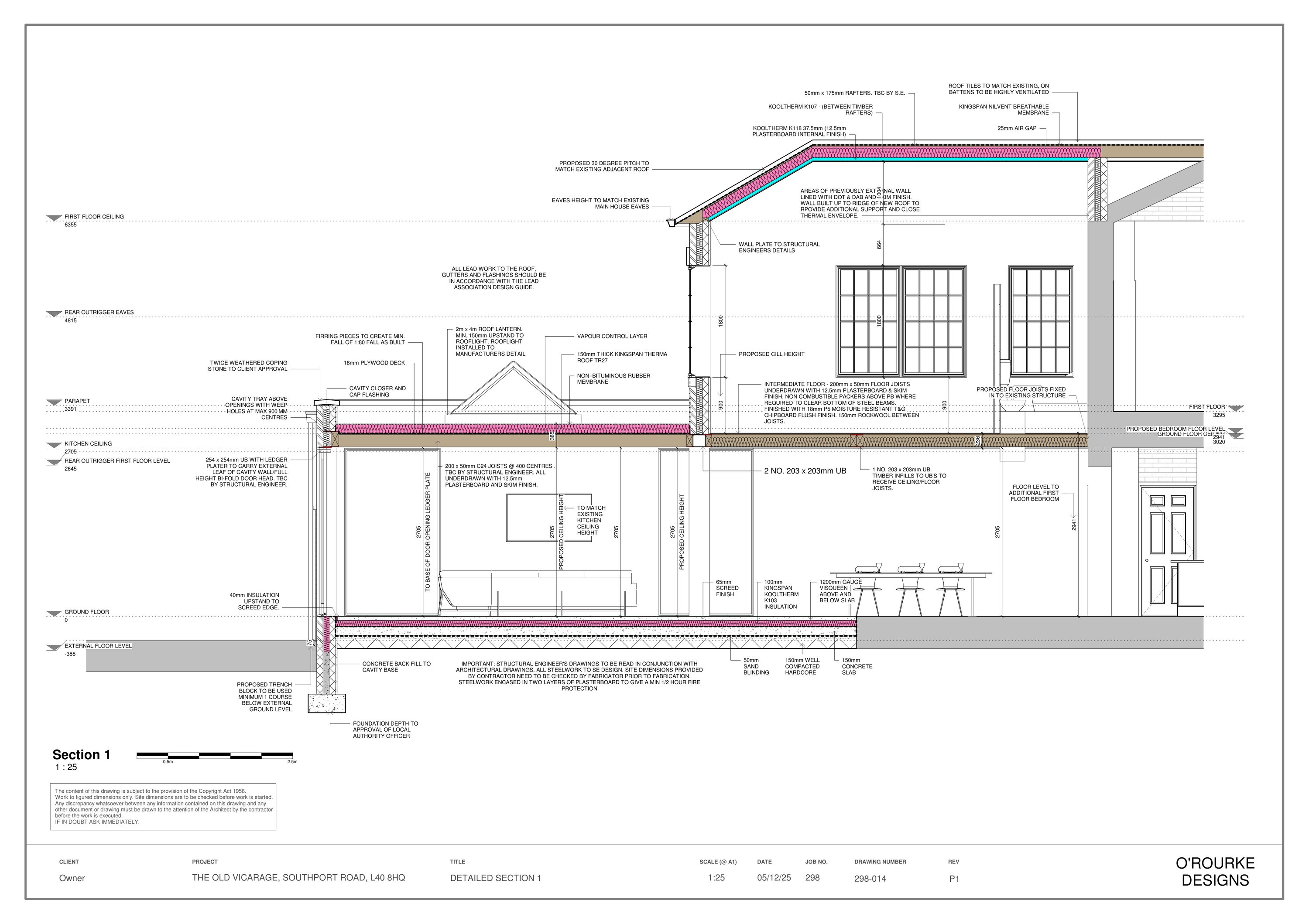
The proposed development comprises a rear ground-floor extension, together with a first-floor extension above the existing structure. This also includes the demolition of a redundant barn and the construction of a new, fit-for-purpose three-bay garage with office accommodation above. In addition, alterations to the site entrance are proposed, including the installation of two new brick gate piers and automated entrance gates.

Documents

Elevation Plan
Archived · Original link
Elevation Plan
Archived · Original link
Elevation Plan
Archived · Original link
Elevation Plan
Archived · Original link
Site Layout Plan
Archived · Original link
Floor Layout Plan
Archived · Original link
Floor Layout Plan
Archived · Original link
Floor Layout Plan
Archived · Original link
Miscellaneous
Archived · Original link
Miscellaneous
Archived · Original link
Floor Layout Plan
Archived · Original link
Floor Layout Plan
Archived · Original link
Elevation Plan
Archived · Original link
Plans
Archived · Original link
Site Location Plan
Archived · Original link

Have your say

Your comment matters. Councils must consider every representation that raises material planning considerations.

Write a comment