← Back to West Lancashire Borough Council
Application
2026/0028/LBC
West Lancashire Borough Council · IDOX
Status
Registered
Received
23 days ago
New dwellings
n/a
What you can do
Take Action
Make your voice heard. Authorities need to hear from people who support new homes.
Full Proposal
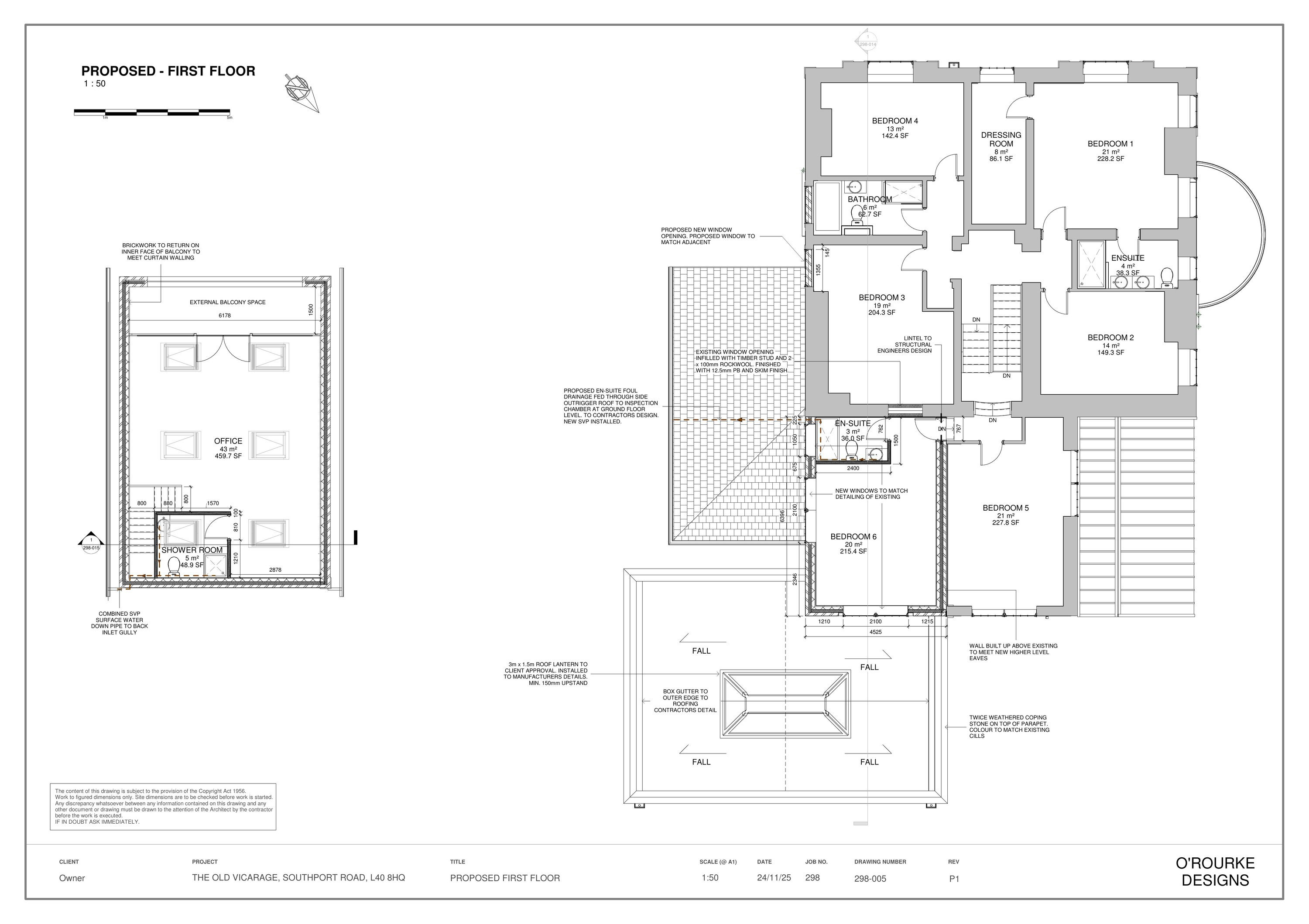
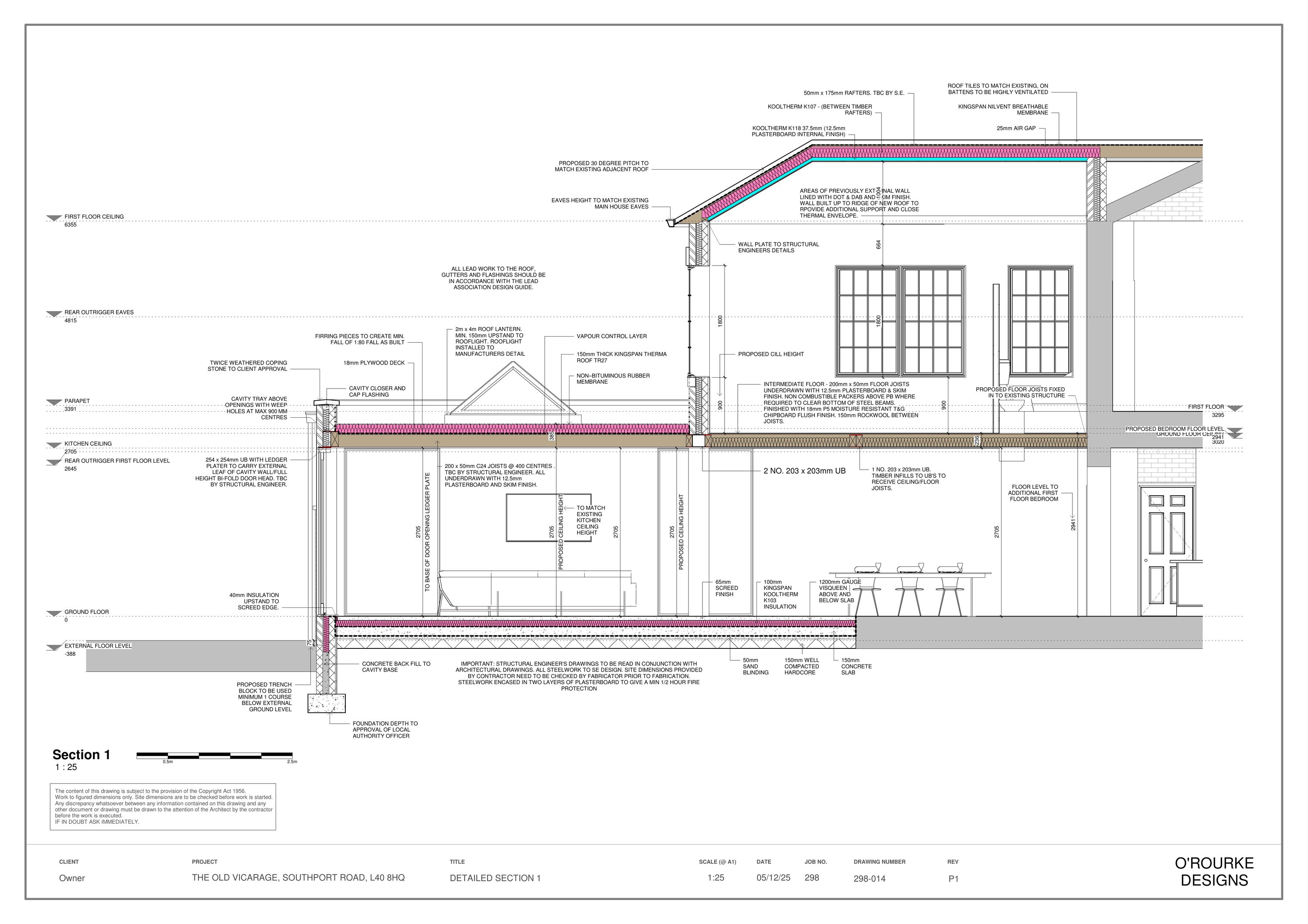
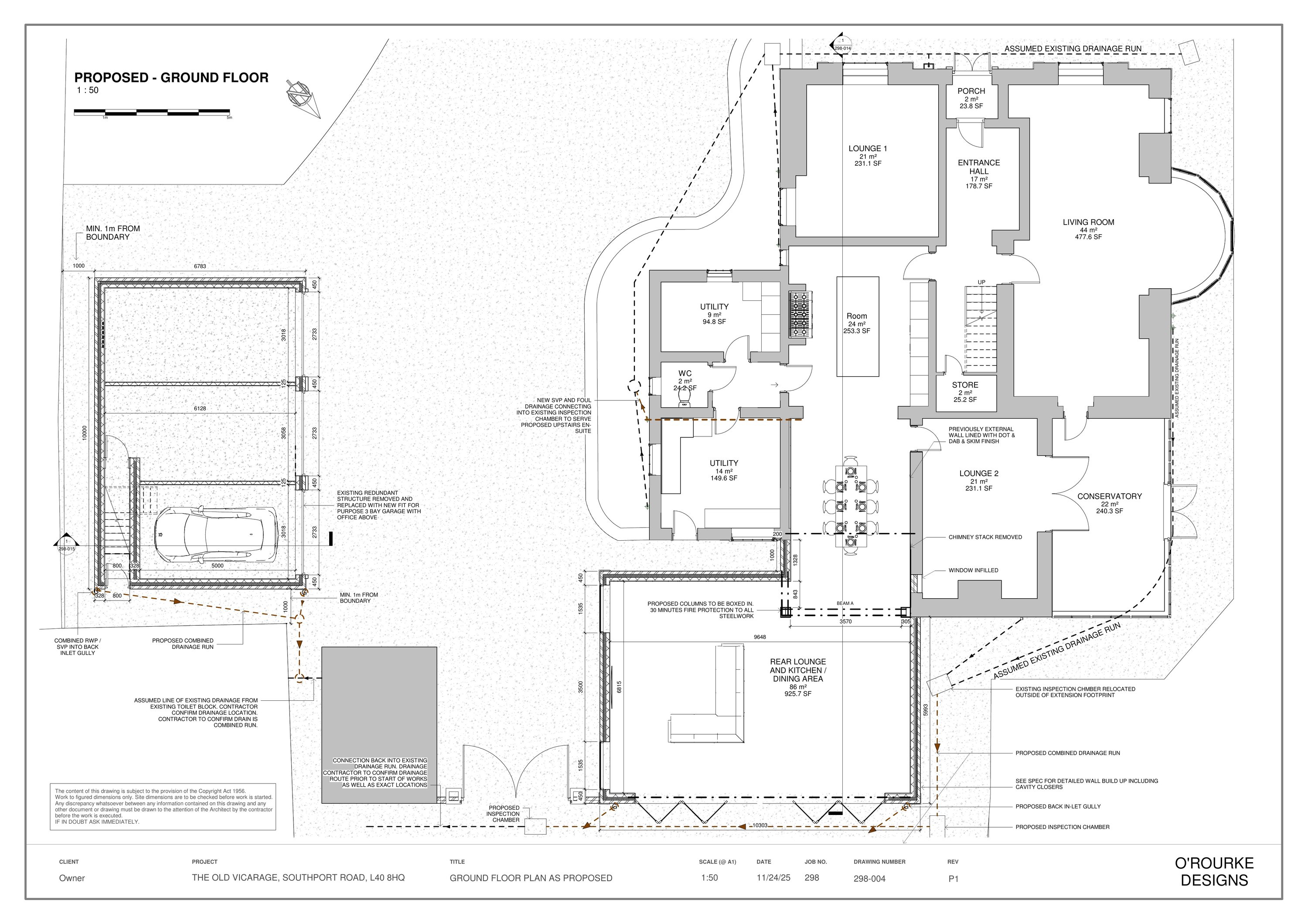
The proposed development comprises a rear ground-floor extension, together with a first-floor extension above the existing structure. This also includes the demolition of a redundant barn and the construction of a new, fit-for-purpose three-bay garage with office accommodation above. In addition, alterations to the site entrance are proposed, including the installation of two new brick gate piers and automated entrance gates.
Detail pages
- View live detail on council site
- No archived detail page available.
Documents
Application form - without personal data
Application Form
Not downloaded
· Council link
Consultation/neighbours notified
Consultations & Neighbours notified
Not downloaded
· Council link
Elevation (front) - existing
Elevation Plan
Not downloaded
· Council link
Elevation (front) - proposed
Elevation Plan
Not downloaded
· Council link
Elevation (rear) - existing
Elevation Plan
Not downloaded
· Council link
Elevation (rear) - proposed
Elevation Plan
Not downloaded
· Council link
Existing and proposed
Site Layout Plan
Not downloaded
· Council link
Existing and proposed aerial view
Plans
Not downloaded
· Council link
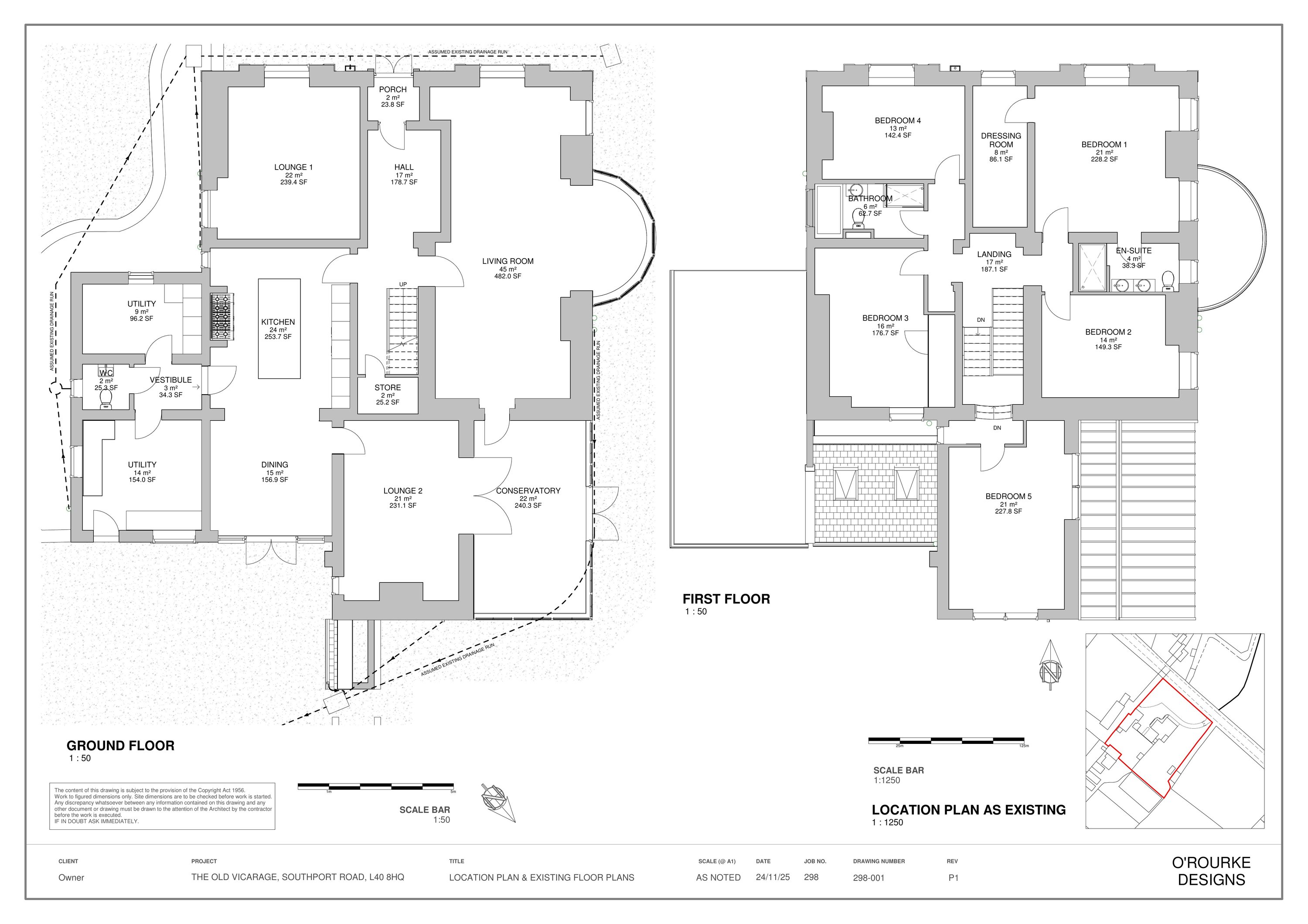
Existing ground and first floor plan
Floor Layout Plan
Not downloaded
· Council link
First floor plan - proposed
Floor Layout Plan
Not downloaded
· Council link
Ground floor plan - proposed
Floor Layout Plan
Not downloaded
· Council link
Planning statement
Miscellaneous
Not downloaded
· Council link
Planning statement 2
Miscellaneous
Not downloaded
· Council link
Proposed 3d first floor
Floor Layout Plan
Not downloaded
· Council link
Proposed 3d ground floor
Floor Layout Plan
Not downloaded
· Council link
Proposed and existing site entrance
Plans
Not downloaded
· Council link
Proposed garage elevations
Elevation Plan
Not downloaded
· Council link
Section - proposed
Plans
Not downloaded
· Council link
Section - proposed (garage)
Plans
Not downloaded
· Council link
Site notice
Site Notice
Not downloaded
· Council link
The location plan
Site Location Plan
Not downloaded
· Council link